EasyManua.ls Logo

Nice SLH400 - ELECTRICAL CONNECTIONS; Preliminary Checks; Wiring Diagram and Description of Connections

Nice SLH400
36 pages
Print Icon
To Next Page IconTo Next Page
To Next Page IconTo Next Page
To Previous Page IconTo Previous Page
To Previous Page IconTo Previous Page
Loading...
10 – ENGLISH
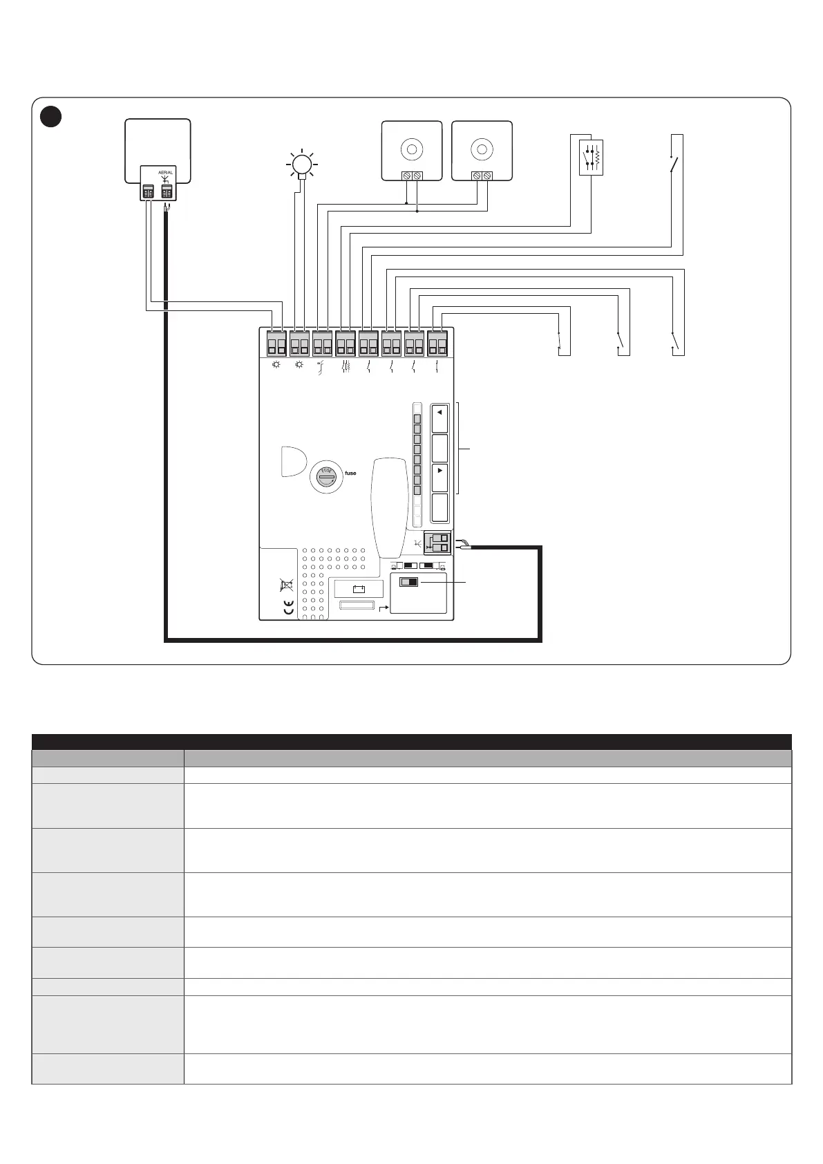
4.2 WIRING DIAGRAM AND DESCRIPTION OF CONNECTIONS
4.2.1 Wiring diagram
Receiver
KEYS
SELECTOR
LED
1.6AT
Flash
Bluebus
Stop
Sbs
Open
Aerial
Close
Aux In
L1L2L3L4L5L6L7L8
OpenStop/SetClose
OGI
FLASH
24V 4W
OGI
TX
Bluebus Bluebus
RX
CLOSE
OPEN
AUX IN
NO NO
NC
STOP
NO
NC
8K2
SBS
NO
IBT4N
17
4.2.2 Description of connections
Table 5
ELECTRICAL CONNECTIONS
Terminals Description
FLASH Output for one or two Nice or similar type warning lights with 12 V bulb only, maximum 21 W.
OGI
“Open Gate Indicator” output; a 24 V (max 4 W) signalling light can be connected.
It can also be programmed for other functions; see the “Level 2 programming (adjustable parameters)
paragraph.
BLUEBUS
This terminal can be used to connect compatible devices, which are all connected in parallel with only two
wires carrying both the electric power and communication signals.
For further information on the BlueBUS, refer to the “BlueBUS” paragraph.
STOP
NO-NC-8K2
Input for devices that suspend or even stop the current manoeuvre; “Normally Closed” and “Normally
Open” contacts or xed resistor devices can be connected by suitably conguring the input.
For further information on the STOP function, refer to the “STOP input” paragraph.
Sbs
Input for devices that control the movement in Step-by-Step mode; it is possible to connect “Normally
Open” contacts.
OPEN
Input for devices that control the opening movement only; it is possible to connect “Normally Open”
contacts.
CLOSE
Input for devices that control the closing movement only; it is possible to connect “Normally Open” contacts.
AUX_IN
(Auxiliary Input)
Input for devices that suspend or stop the current manoeuvre; “Normally Closed” contacts can be
connected to this input.
The Oview accessory can be used to modify the input’s functions; the input is factory-congured as a STOP
input.
ANTENNA
Antenna connection input for radio receiver; the antenna is incorporated in the warning light; alternatively,
an external antenna can be used.

Table of Contents

Related product manuals