EasyManua.ls Logo

Onkyo TX-SR876

Onkyo TX-SR876
285 pages
To Next Page IconTo Next Page
To Next Page IconTo Next Page
To Previous Page IconTo Previous Page
To Previous Page IconTo Previous Page
Loading...
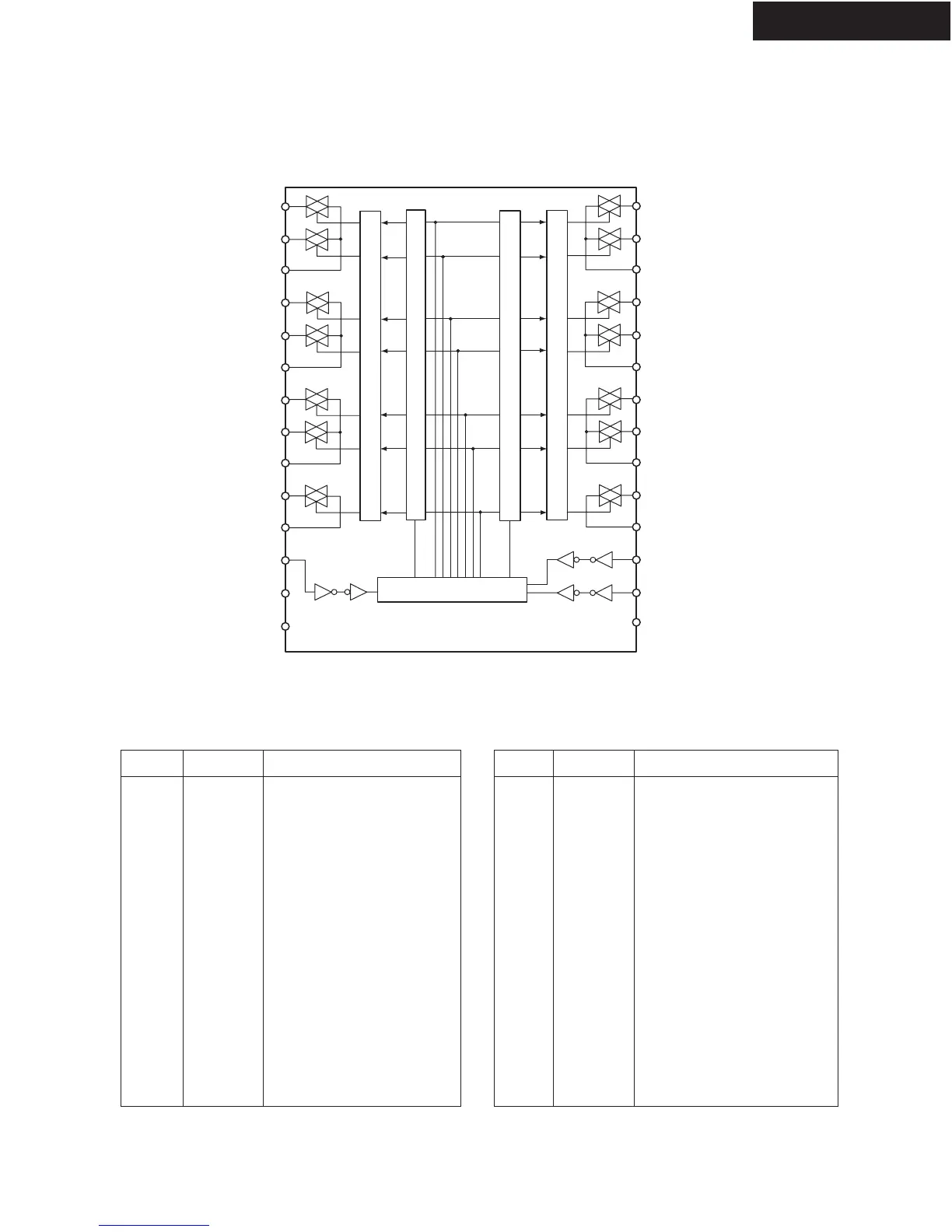
BLOCK DIAGRAM
TERMINAL DESCRIPTION
IC BLOCK DIAGRAMS AND TERMINAL DESCRIPTIONS -10
Q4306: NJU7311AM(Analog Function Switch)
TX-SR876/SA876
L1
L2
L-COM1
L3
L4
L-COM2
L5
L6
L-COM3
L7
L-COM4
ST
R1
R-COM1
R2
R3
R4
R-COM2
R5
R6
R-COM3
R7
R-COM4
CK
DATA
VSS
VDD
VEE
Latch Circuit
Level Shifter
Control Circuit
Latch Circuit
Level Shifter
1
2
3
4
5
6
7
8
9
10
11
12
14
15
16
17
19
20
21
22
23
24
25
26
27
28
29
30
VEE
L1
L2
L-COM1
L3
L4
L-COM2
L5
L6
L-COM3
L7
L-COM4
ST
VSS
CK
DATA
R-COM4
R7
R-COM3
R6
R5
R-COM2
R4
R3
R-COM1
R2
R1
VDD
Pin No. Pin Name Description
Pin No. Pin Name Description
Negative Voltage Supply
Analog switch input/output
Analog switch input/output
L1, L2, Common
Analog switch input/output
Analog switch input/output
L3, L4 common
Analog switch input/output
Analog switch input/output
L5, L6 Common
Analog switch input/output
L7 Common
Chip enable
GND
Clock input
Data input
R7 Common
Analog switch input/output
R5, R6 Common
Analog switch input/output
Analog switch input/output
R3, R4 Common
Analog switch input/output
Analog switch input/output
R1, R2, Common
Analog switch input/output
Analog switch input/output
Positive voltage supply

Table of Contents

Other manuals for Onkyo TX-SR876

Related product manuals