EasyManua.ls Logo

Ormazabal cpg.0 ENA Series

Ormazabal cpg.0 ENA Series
68 pages
To Next Page IconTo Next Page
To Next Page IconTo Next Page
To Previous Page IconTo Previous Page
To Previous Page IconTo Previous Page
Loading...
IG-273-EN version 03; 05/08/2020
34
Operations sequence General instructions
cpg.0 ENA range
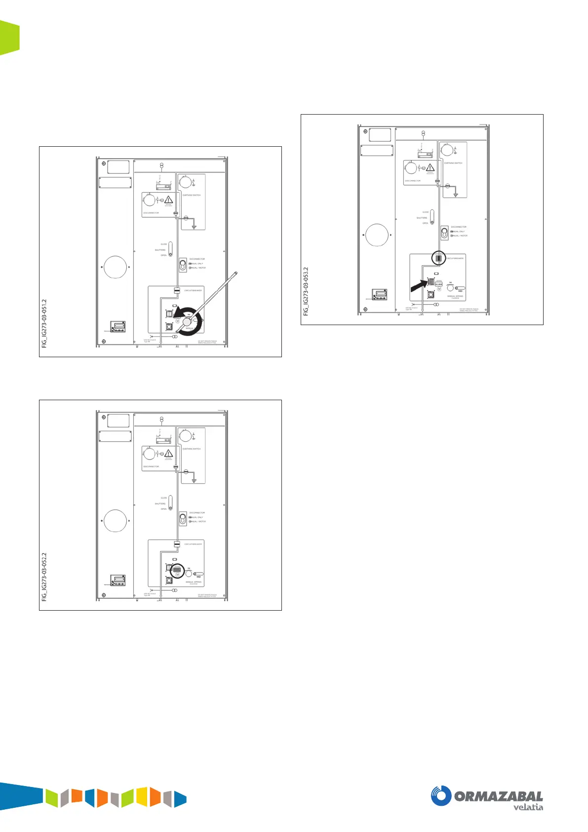
If the spring charge status indicator shows “SPRING
DISCHARGED”, slide the access interlocking cover to the
right and introduce the spring charging lever.
Turn ANTICLOCKWISE approximately one and a half turns to
charge the springs. (Clicks when charged).
Figure 7.15. Turn lever anticlockwise
The spring charge status indicator shows “SPRING CHARGED”.
Figure 7.16. “Spring charged” status
Operate the “I” pushbutton to close the circuit-breaker. The
circuit-breaker status indicator will show closed, and the
spring charge indicator show “SPRING DISCHARGED”.
Figure 7.17. Earthing connected
To open the earthing connection follow the sequence
described in reverse order. To open the circuit-breaker press
the pushbutton “0”.

Related product manuals