EasyManua.ls Logo

Ormazabal cpg.0 ENA Series

Ormazabal cpg.0 ENA Series
68 pages
To Next Page IconTo Next Page
To Next Page IconTo Next Page
To Previous Page IconTo Previous Page
To Previous Page IconTo Previous Page
Loading...
IG-273-EN version 03; 05/08/2020
35
General instructions
cpg.0 ENA range
Operations sequence
Cable test in circuit breaker functions
Once the medium-voltage cables have been earthed:
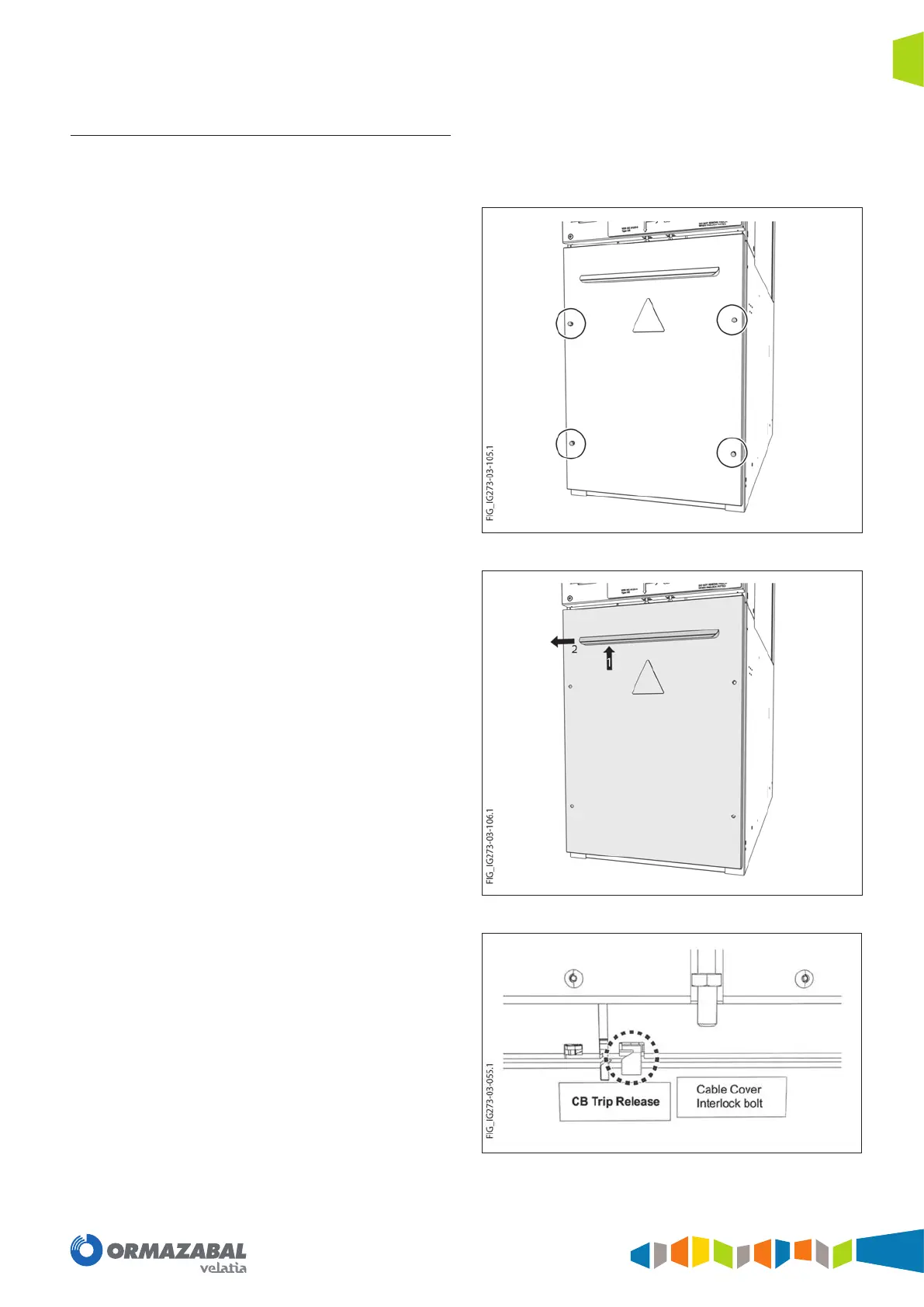
1. Remove the cable compartment cover.
a. Remove the 4 fixing screws on the front of the cover.
Figure 7.18. Fixing screws of the cable compartment cover
b. Lift the cover up (using the handle) and pull it
forward.
Figure 7.19. Removing the cable compartment cover
2. Operate the “CB Trip Release“ button located in the
top of the cable compartment, allowing the door
interlocking to come down and release the driving
pushbuttons. Open the circuit-breaker.
Figure 7.20. “CB Trip Release” button situation

Related product manuals