EasyManua.ls Logo

Palfinger ILP - Hydraulic Schematic

Palfinger ILP
31 pages
Print Icon
To Next Page IconTo Next Page
To Next Page IconTo Next Page
To Previous Page IconTo Previous Page
To Previous Page IconTo Previous Page
Loading...
Lubrication and Final Inspection
Revision 1.3 - 28 -
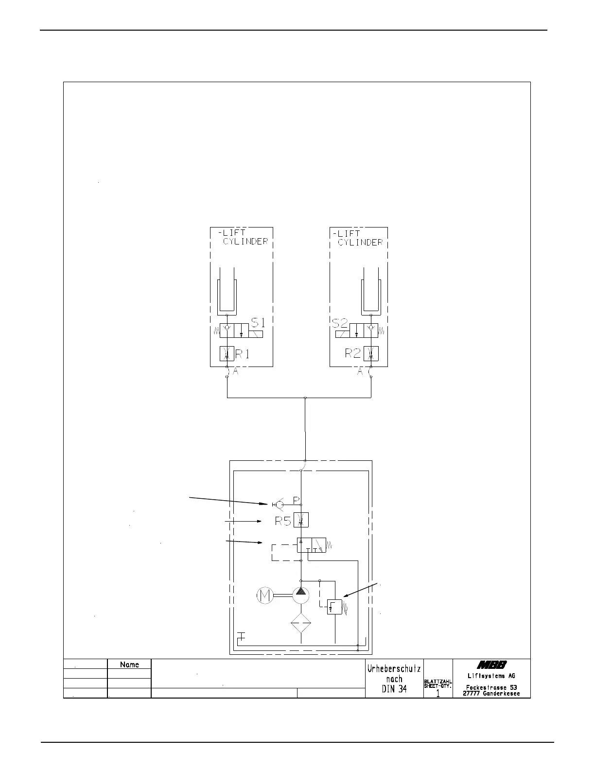
8.1 Hydraulic Schematic and Decal Placement
Functions:
Lift: M
Lower: S1+S2
Pressure Relief
2850 PSI
200 bar
Restrictor Valve R5
Flow Divider
Functions:
S1 and S2 = Release Valve for lowering function
R1 and R2 = Flow Restrictor located inside hose adaptor on lift cylinder
R5 = Restrictor Valve located in power pack
Flow Divider is not activated, when fluid is going back into the power pack
Access for
pressure gauge
Datum
01.08.08
Hydraulic Schematic
HACKBARTH
2 cylinder lift gate
Figure 29 Hydraulic schematic

Related product manuals