EasyManua.ls Logo

Panasonic DMR-ES40VP

Panasonic DMR-ES40VP
123 pages
To Next Page IconTo Next Page
To Next Page IconTo Next Page
To Previous Page IconTo Previous Page
To Previous Page IconTo Previous Page
Loading...
S-28
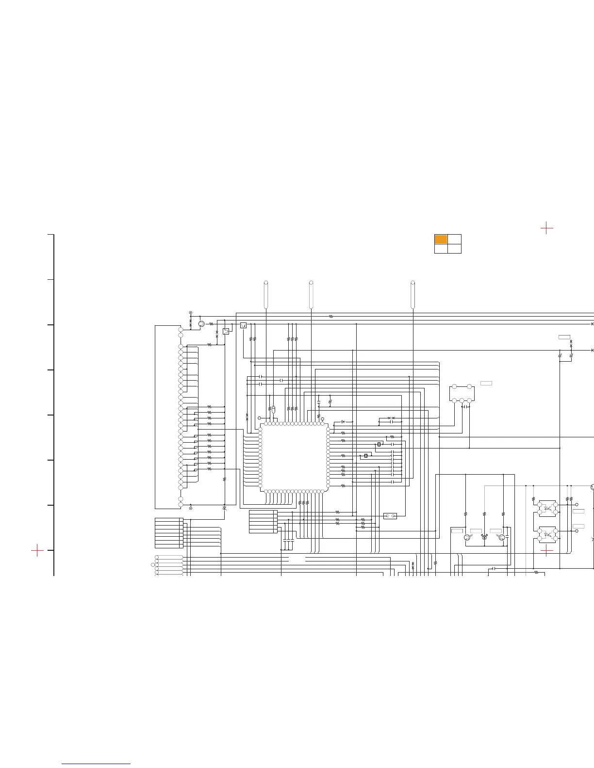
S4.5. SYSCON/Servo/Timer(S) Schematic Diagram
10
987654321
F
E
D
C
B
A
G
20191817161514131211
21
L
K
J
I
H
M
N
4/4
2/4
1/4
3/4
DMR-ES40VP/PC
SYSCON/Servo/Timer Section
(Main P.C.B.(4/4))
Schematic Diagram(S)
DMR-ES40VP/PC
SYSCON/Servo/Timer Section
(Main P.C.B.(4/4))
Schematic Diagram(S)
DMR-ES40VP/PC
SYSCON/Servo/Timer Section
(Main P.C.B.(4/4))
Schematic Diagram(S)
DMR-ES40VP/PC
SYSCON/Servo/Timer Section
(Main P.C.B.(4/4))
Schematic Diagram(S)
FSC
SYS_GND
OSD_GND
OSD_VIDEO_IN
VREG5V
OSD_V_OUT
COM_MUT_H
IIC_CLK
IIC_DATA
SVHS_PB_H
REF_GND
SCURVE_0
SCURVE_1
I2C5DT
I2C5CK
D5V
IECOUT
SYNC_DET
MUTE_L
ADC_R
ADC_L
D_GND
YOUT_DM
BPBOUT_DM
GPYOUT_DM
COUT_DM
RPROUT_DM
V_Y_IN_DM
CPNC_IN_DM
MIX_L_OUT_DM
AU_GND
MIX_R_OUT_DM
UNREG_38V
SYNC_DET
DVD_POFF_L
L2_IN_R
L2_IN_L
L2_V_IN
L2_DET
CPN_Y_IN2
CPN_C_IN2
CTL_HEAD_P
CTL_HEAD_M
TV_VCR
DVD_OUT_H
L123_SWIDE_B
TRK_ENV
ART_V_H_N
H_SW
A_H_SW
DREC_H
ABS_NORM_L
BIAS_H
FM_MUTE_H
CH_SW
AVR_L
REG12V
VTR_P_ON_H
X_SW12V
X_SW_5R8V
L123_SWIDE_A
1
8
6
4
2
3
5
7
9
11
12
10
K1KB12B00040
PS6002
R6802 $(0)
2700
R6309
R2564
100
8200R7512
100
R2565
R6015
100
R6007 18K
$(47K)
R7554
100R6018
220R6023
3300
R6201
R6801 $(100K)
R7514 100
27K
R1502
1800[D]
R2503
18KR6011
$(47K)R7503
150[D]
R1503
R7520 22K
180
R6103
R7519 10K
R6101
1M
R7505 100
R2520
18K
8200
R7513
R2501 1R2[22]
R2502 1R5[22]
10KR6019
R6006
18K
100R7528
1M
R2002
220R6013
R7507 8R2[D]
R7510 100
$(47K)R7522
27K
R1501
47KR7502
R1513
120[22]
47KR7561
1K
R6001
R6010 10K
220R6012
R7506 100
R6026 10K
1K
R2521
$(10K)
R7543
R6009 10K
220
R2515
R6803
470K
R6017
2200
100R7529
R6102
470
R7521 $(47K)
R6004
10K
220R6029
47KR7501
1KR2563
R1511
27K
R2552 10K
R7517 0
R6027 10K
R7526 100
1K
R2561
R6002 1K
R7508
VWJ0795=5
R2516
220 220
R2514
R7511 8200
R7556
10K
R6020 220
$R6014
R6024 220
R6028 10K
$(47K)R7509
220R6022
2200R6008
R7515 100
47KR2562
R1512 27K
R7516 100
330R7530
R7527
100K
3900
R2001
10KR2551
R7504 100
R7537
$(47K)
R7538
$(47K)
R7518
$(47K)
R7541
$(47K)
R7542
$(47K)
R7562
$(47K)
R7563
$(47K)
R7539
$(47K)
R7564
$(47K)
R7565
$(47K)
R7540
$(47K)
R7524 $(47K)
C6014 1000P
0.1C7510
C2003
1u
0.01
C6104
C6102
1u
0.01
C2519
C2054
3900P
[KB]
22PC7514
0.01C7508
C6018 0.01
C2501 0.1
C2507 1000P[KB]
22PC7513
C6008
470P
C2518
0.01
0.056
[KB]
C2562
C6015 0.033[KB]
C6103
560P
C2552
0.056
[KB]
22PC7512
C6301
$
0.01C7507
$(100P)
C7502
0.1[22]
C6019
C2515 0.01
0.01
C6101
0.056
[KB]
C2551
C7505
100P
C7506
100P
C7517
100P
22PC7511
C6009 0.01
C7503
$(100P)
C7516
0.1
0.1[KB]
C2510
C6302
0.01
C6010 12P
C2512
0.1[KB]
C2001 33P
1000P[KB]C6020
0.1C7515
C6002 22P
C2506
0.22[KB]
C6001 18P
C2505 0.022[KB]
C6007
82P
C6012 0.1
$(100P)
C7501
0.01C7518
0.01C7509
C6016 1000P
0.1[KB]
C2511
C6011 12P
1u
C2513
C2055
0.1
C7540
1u
1800PC2508
C6201
$(0.1)
C2504 0.022[KB]
C6006 100P
0.056
[KB]
C2561
TW7501
VWJ0795=5
K6098
VWJ0795=10
VWJ0795=5
K7501
VWJ0795=10
TW2001
K7503
VWJ0795=5
VWJ0795=12.5
K2098
VWJ0795=5
TW2002
K6099
VWJ0795=5
K2597
VWJ0795=5
VWJ0795=5
K7502
K7504
ERJ3GEY0R00V
LB7505
X6001
H0D120500009
H0A327200098
X7502
X7501
H0D800400020
TL7503
TL24
TL6010
TL7504
TL6001
TL6004
TL23
TL2502
TL2015
TL6002
1 4
32
IC1512
B3NAA0000049
1 4
32
B3NAA0000049
IC1511
CL6024
CL6025
CL6027
CL6012
CL6023
CL6011
CL6021
CL6022
CL6030
CL7506
CL7507
CL6028
CL6026
CL6031
CL6029
86421 5 7 9 32312825 262218 20 2119 2423 27 291613 141110 12 15 17
A2BD00000133
DP7501
1
2
K1KA02A00375
P1531
C6005
50V3R3
C6308
6V47
$[F2A0J102A581]
C7504
C2502 6V220
C7538
6V470[M]
C7539
$[KA](6V33)
16V22
C2509
C6303
6V47
16V10[KS]
C2053
C2571
35V220[M]
B3EA00000072
D1501
80 1
908581 83 8482 88 8986 87 9996 979391 92 9594 98
10
8
6
7
9
74
72
71
73
75
52 29
54 27
56
58
63
61
59
60
62
57
55
18
23
25
26
24
19
21
22
20
2853
40 38 36 3234 33 31353739
30
50 48 46 414345 44 424749
51
70
68
66
64
65
67
69 12
13
11
17
15
14
16
79
77
76
78
5
2
4
3
100
C2CBJG000591
IC6001
$[UNR511300L]
QR7501
$[UNR511300L]
QR6801
VWJ0795=5
L6101
G0C1R5JA0019
L6102
L6001 ELJFA5R6JF
D2002
D7501
D7751
D6001
D2001
5
43
2
1
IC7502
C0EBE0000457
5
43
2
1
C0EBH0000172
IC6201
1
2
3
4
5
S1532
K0ZZ00000598
QR7503
$[UNR521200L]
1
8
6
4
2
3
5
7
9
14
15
12
13
10
11
K1KB15AA0032
P6001
2
1
K5H5012A0010
IP6001
D7502
$[MAZ4056NHF]
MAZ4160NMF
D2502
D6306
MAZ4056NHF
148
58 5957 62 6360 61535149 50 52 55 5654
26 2528 27 23 21 19 1820222432 30 2931
3
64
2
15
11
13
12
10
14
16
17
9
5
4
8
6
7
46
44
42
40
38
36
34
33
35
37
39
41
43
45
47
IC7501
MN101C87ABC
1
6
7
4
2
3
5
P2501
K1MN07A00019
S1531
K0C111A00006
C2051 6V22[N]
1
7
8
5
3
2
4
6
P7502
K1KB08B00043
1
7
8
5
3
2
4
6
K1KA08A00290
P2571
4
1 2
3
IC6301
C0CBCDC00020
PNB2302MF
Q1501
PNB2302MF
Q1502
$[2SD132800L]
Q7501
Q6305
2SD0601A0L
1 2
PH7501
1
8
6
4
2
3
5
7
9
19
17
15
13
11
10
12
14
16
18
K1KB19AA0032
P6003
1
8
6
4
2
3
5
7
9
19
17
15
13
11
10
12
14
16
18
K1KB19AA0032
P6002
20
6
25242321 22
13 25 4
16 1714 15
12 11 1013
19 2718
269 78
IC2501
C1AB00001767
1
5
6
3
2
4
P7501
$[B6B-ZR-3R4]
1G
1G
2G
2G
4G
4G
S9
S9
S10
S10
S11
S11
S12
S12
S13
S13
3G
3G
S14
S14
S15
S15
S16
S16
S8
S8
S7
S7
S6
S6
S5
S5
S4
S4
S3
S3
S2
S2
S1
S1
S17
S17
S18
S18
XINTM
XINTM
XMPREQ
XMPREQ
KEY_IN1
KEY_IN1
KEY_IN3
KEY_IN3
FAN_LOCK
FAN_LOCK
FAN_PWM
FAN_PWM
S_REEL
S_REEL
T_REEL
T_REEL
XINTP
XINTP
KEY2
KEY2
KEY1
KEY1
IR
IR
LED2
LED2
VTR_S_IN
VTR_S_IN
VTR_S_OUT
VTR_S_OUT
VTR_S_CLK
VTR_S_CLK
LED3
LED3
KEY_IN2
KEY_IN2
LED1
LED1
DR_PON_H
DR_PON_H
XTMUTE
XTMUTE
SBMTP
SBMTP
SBPTM
SBPTM
SCLK
SCLK
DI_PON
DI_PON
SYS_PFAIL
SYS_PFAIL
RESET
RESET
IC.DATA.OUT
IC.DATA.IN
IC.DATA.CLOCK
FSC.LPF
NUB[GND]
LC.OSC OUT
CVIN
HLF
CVIN2
VHOLD
DVDLED
NUA[GND]
OSD[GND]
SVHS_PB(H)
OSD.FSC IN
TIMER_CS
REMOCON
ART.V/H/N
CURRENT_LIMIT
POS.SW3
AVR[L]
EP[H]
TEST2
TEST2
GND[OSC]
+5V[D]
12MHz.IN
12MHz.OUT
DUB_H
LC.OSC IN
SVHS[H]
POS.SW2
POS.SW1
32KHz.IN
32KHz.OUT
RESET[L]
ABS_NORM
AUDIO.H.SW
VIDEO.H.SW
D.REC[H]
BIAS[H]
32K.START[L]
S_TAB[L]
[29]LINE_H
[30]POS.SW4
[28]FM_MUTE
[53]OSD5V
[52]CVOUT
PB X5[H]/
FG.AMP.IN
GND[A]
VPP
VPP
CAP.ET
PON[H]
LOADING[H]
UNLOADING[H]
EX.FF/REW[L]
FG.AMP.OUT
[77]CYL.ET
[80]T.REEL.PULSE
[78]P.FAIL[L]
[79]S.REEL.PULSE
IIC.DATA
IIC.CLK
CAP R/F
CAP R/F
256HZ/ROMCORE/COM_MUTE
VHS_KEY2
OPEF
IREF
PFG
PFG
PB.CTL.OUT
CTL.AMP.REF
5V[AD]
5V[AD]
+5V[A]
S_CASE
CTL.HEAD[-]
CTL.HEAD[+]
VHS_KEY1
T-PHOTO
TRACKING_ENVE
MO/ST/BI
[2]CODE
[1]DVD_OUT_H
S-PHOTO
V
V
V
V
V
V
V
V
V
V
V
V
V
V
V
V
V
V
V
V
V
V
V
V
V
V
I
I
I
I
I
I
I
I
I
I
I
I
I
I
I
I
I
I
I
I
I
I
I
I
I
I
I
I
I
A
A
A
A
A
A
A
A
A
A
A
A
A
(MNS00650ZMB0)
MODE SW
CNF
CT1
RIN
VG
FIN
CST
GND
GND
GND
GND
GND
GND
GND
GND
GND
GND
GND
GND
GND
GND
GND
PCI
CT2
VM2
OUT1
OUT2
L GND
EC
EC
VCC
M1
M1
M2
M2
VM
RNF
COM
COMPG+
PG+
PG- PG-
PG OUT
M3
M3
or
(VJS3537E007G)
TL
GND[FG]
FG1
CAP VM
M GND
5V
I2C5_DT
MUTE_L
IECOUT
X_SW12V
X_SW12V
X_SW5R8V
X_SW5R8V
SYNC_DET
(TO DVD I/F)
(TO DVD I/F)
(TO DVD I/F)
I2C5_CK
DR_P_ON_H
SCURVE1
SCURVE0
DGND
ADC_L
ADC_R
GPYOUT_DM
RPROUT_DM
BPBOUT_DM
COUT_DM
AU_GND
AU_GND
CPNCIN_DM
MIXROUT_DM
MIXLOUT_DM
V_YIN_DM
YOUT_DM
-7V
MGND
38V
SCLK
XINTM
XINTM
XINTP
SBMTP
SBPTM
XMPREQ
XMPREQ
X_SW17V
P_OFF_L
FANLOCK
XTMUTE_L
FAN_PWM_OUT
2G
2G
P5
P6
P2
P3
NX
NX
1G
1G
1G
F+
F+
P1
P4
P8
P7
P9
P13
P11
P10
P12
4G
4G
3G
P15
P14
P16
F-
F-
P18
P17
[18]FANPWMOUT X1
[17]128HZ VSS
VSS
[32]SYNCDET
[33]FAN_LOCK
[19]DR_P_ON
X0[31]TEST2
[50]SEG10
[49]SEG9
[34]SYS_P_FAIL
SEG14
SEG16
[62]VT_RXD KEY1
KEY1
KEY2
KEY2
P_SAVE_H
XINTMOUT
S1/S2
KEY3
[63]VT_CLK
[64]XMUTE
VT_TXD
TBUS_RXD
TBUS_TXD
TBUS_CLK
SEG15
VREF
VDD
VDD
VDD
VDD
SEG13
OS2
OS1
SEG3
DIG1
DIG2
SEG1
SEG17
DIG3
DIG4
SEG2
SEG8
SEG6
SEG7
SEG4
SEG5
SEG12
SEG11
SEG18
DI_PON_H
IR
IR
JC_PON
MMOD
NRST
PFAIL_L
SYS/FL
VT_CS
XINTPOUT
L2SW
L2_RIN
L2_LIN
CPN_CIN2
CPN_Y_IN2
5V AD
L2_VIN2
LOADING M[-]LOADING M[-]
LOADING M[+]LOADING M[+]
M
MECHA
PB CTL
LED3
KEY_IN2
KEY_IN1
KEY_IN3
(TO FRONT)
(TO FRONT_JACK)
S PHOTOSENSORT PHOTO
CAP FG
CAP TL
NC NC
VOUT
VOUT
or C0EBE0000194
or C0EBE0000247
RESET
P_FAIL
(PST3142NR)
LED1
LED1
LED2
LED2
T REEL
S REEL
SAFETY
TAB SW
F
VIN ON
NSW5V
OP-CLK
XRESET
OP-START
GNDOP-CMD
TV/VCR
[3]DC_CH_H
[4]L123_SWIDE_B
F_WRITE
BACK_UP
SYS_PFAIL
(TO JIGU)
D5V
S-28

Table of Contents

Related product manuals