EasyManua.ls Logo

Panasonic PT-RZ990

Panasonic PT-RZ990
240 pages
To Next Page IconTo Next Page
To Next Page IconTo Next Page
To Previous Page IconTo Previous Page
To Previous Page IconTo Previous Page
Loading...
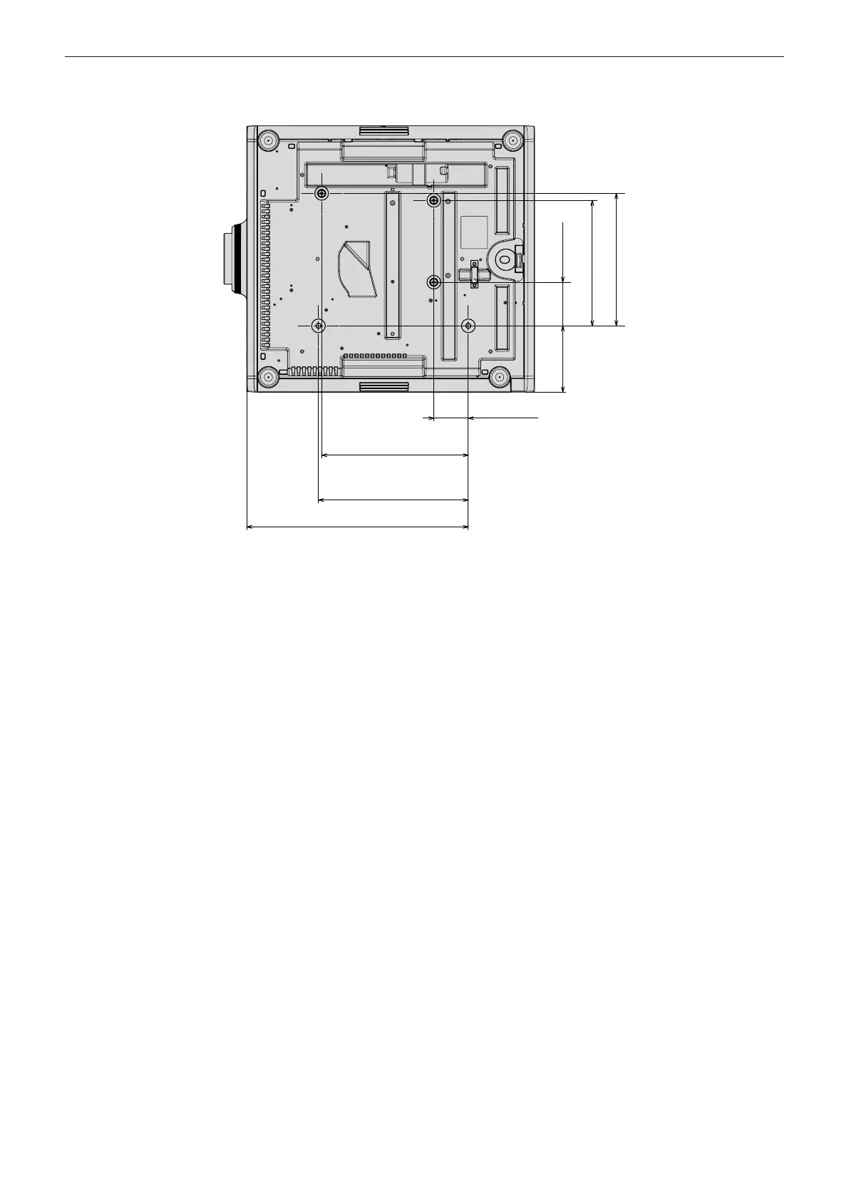
Chapter 7Appendix — Precautions for attaching the Ceiling Mount Bracket
ENGLISH - 237
r
Dimensions for the screw holes to x the projector (projector bottom view)
Unit: mm (inch)
247(9-23/32")
234(9-7/32")
82(3-7/32")
124(4-7/8")
64
(
2-17/32"
)
280
(
11-1/32"
)
414
(
16-5/16"
)
274
(
10-25/32"
)

Table of Contents

Related product manuals