EasyManua.ls Logo

Panasonic TH-42PV60H

Panasonic TH-42PV60H
149 pages
To Next Page IconTo Next Page
To Next Page IconTo Next Page
To Previous Page IconTo Previous Page
To Previous Page IconTo Previous Page
Loading...
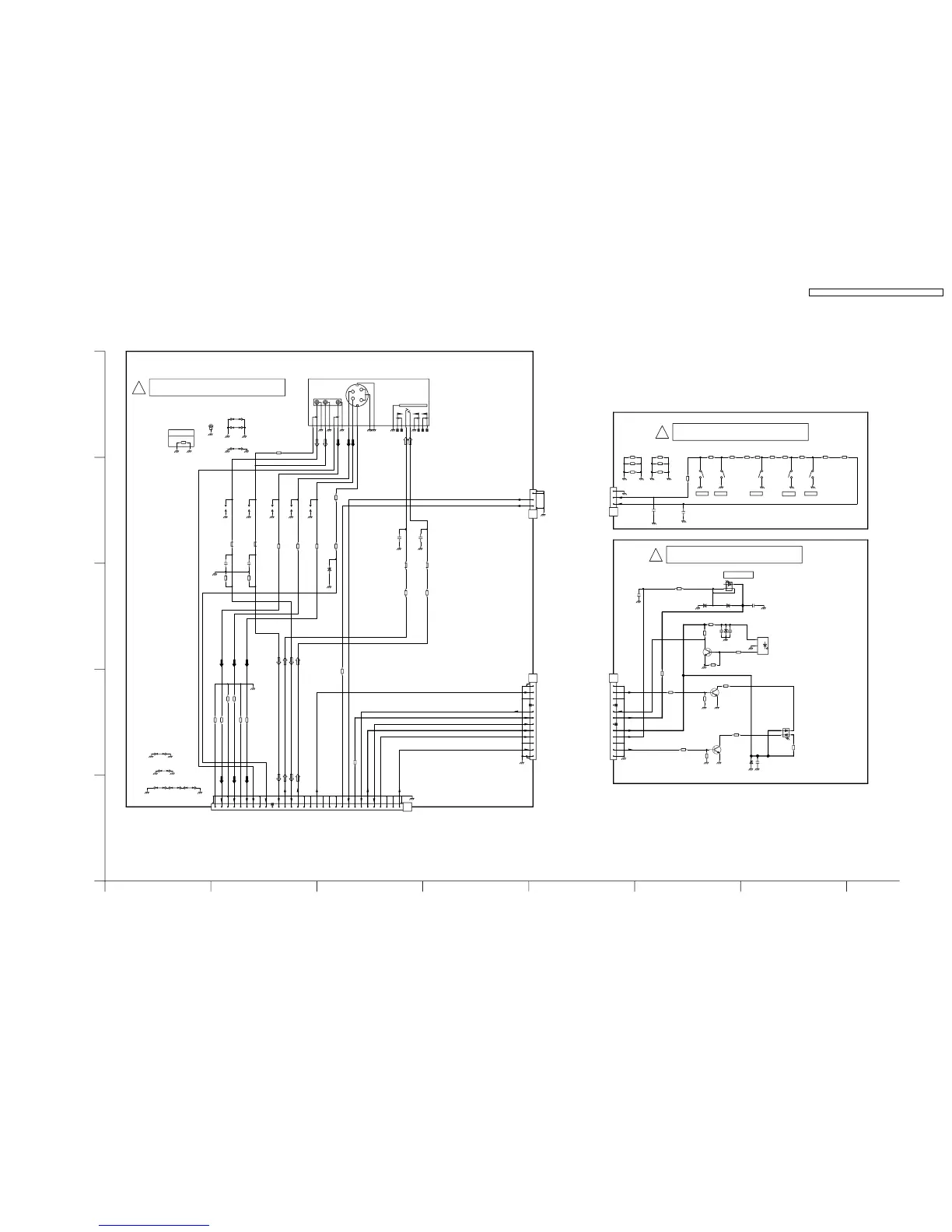
14.19. G, GK and K-Board Schematic Diagram
R
V
L
YC
R
G
*C3703
560p
50V
R3710
0
*L3708
J0JCC0000100
*R37400
*R3716
180k
*R3733
0
D3702
MAZ81400ML
*R3746
0
*JK3701C
K4AK22B00002
C
Y
G
CY-G
G
R2
R1
T
NC1
SW1
NC2
SW2
R-SW
R
R-G
L
L-G
V-SW
V
V-G
NC3
SW3
*L3707
J0JCC0000100
*JS3711
0
JS3705
0
*R3711
0
JS3708
0
*L3701
J0JCC0000364
R3721
10k
*JS3714
0
*R3717
180k
*R37380
*C3712
50V
0.033u
*C3711
50V
0.033u
*R37410
*C3701
560p
50V
G3
1
2
3
*R37370
ZA3701
K4CD01000013
*JS3716
0
JS3704
0
R3709
0
*R3748
0
JS3707
0
G1
1
2
3
4
5
6
7
8
9
10
11
12
*L3700
J0JCC0000364
*R3704
0
*JS3713
0
G51
1
2
3
4
5
6
7
8
9
10
11
12
13
14
15
16
17
18
19
20
21
22
23
24
25
26
27
28
29
30
*R3714
0
R3732
0
*R3736
0
*R37390
*JS3712
0
GK3
1
2
3
SW3754
EVQ11G05R
R3759
0
R3753
1.62k
R3760
0
SW3755
EVQ11G05R
SW3756
EVQ11G05R
R3750
14.3k
R3755
0
R3762
0
R3768
0
R3758
3.16k
C3751
1000p
50V
R3761
0
SW3757
EVQ11G05R
R3754
2.32k
R3763
0
R3751
6.65k
R3767
0
C3750
1000p
50V
SW3753
EVQ11G05R
R3764
0
1%
R3765
2.32k
R3757
1.74k
R2516
22k
*D2520
LNJ107W5PRW
C2521
0.01u
50V
R2517
47
C2515
50V
0.01u
D2524
MA8056MTX
D2512
MAZ80430LL
C2512
6.3V
10u
IC2511
B3L000000020
R2521
47
D2510
MA8056MTX
Q2510
B1ABCF000138
1%
*R2525
576
R2542
47k
C2511
16V
1u
R2520
220k
R2557
5.6k
RM2501
B3RAD0000127
VOUT
GND
VCC
R2512
47
1%
R2531
270
C2510
16V
1u
K1
1
2
3
4
5
6
7
8
9
10
11
12
R2558
0
R2556
5.6k
D2511
MA8056MTX
R2524
22k
Q2511
B1ABCF000138
Q2513
B1ABCF000138
R2530
22k
SUB5V
G_LED_ON
GND
GND
AI_SENSOR
G_LED_ON
AI_SENSOR
MODEM_LED/KEY3/Active_STBY_LED
STB3.3V
STB3.3V
SUB5V
RM_IN
RM_IN
GND
GND
R_LED_ON/STBY_LED
GND
PSM_LEDR
GND
KEY2/KEY_EDGE
KEY1
GND
KEY1
PSM_LEDR/KEY2/KEYEDGE
GND
GND
HP_DET
R_LED_ON/STNBY_LED
HP_GND
GND
MAIN_L
MAIN_R
SUB_MONO
HP_GND
AV4_C
AV4_R
AV4_L
AV4_S
V_DET
AV4_Y
AV4_V
GND
GND
GND
SUFFIX JW
AF
TV/AV -/
F
STR
+/
!
GK-BOARD TNPA3848AD
!
K-BOARD TNPA3762AE
56
D
E
C
A
71
B
342 8
G-BOARD TNPA3764AF
!
POWER LED
AI SENSOR
REMOTE RECEIVER
(H51)
H-BOARD
TO
<
TH-42PV60A/H/M/MT
G, GK, and K-Board Schematic Diagram
TH-42PV60A/H/M/MT
G, GK, and K-Board Schematic Diagram
TH-42PV60A / TH-42PV60H / TH-42PV60M / TH-42PV60MT
83

Table of Contents

Related product manuals