EasyManua.ls Logo

Panasonic TH-42PV60H

Panasonic TH-42PV60H
149 pages
To Next Page IconTo Next Page
To Next Page IconTo Next Page
To Previous Page IconTo Previous Page
To Previous Page IconTo Previous Page
Loading...
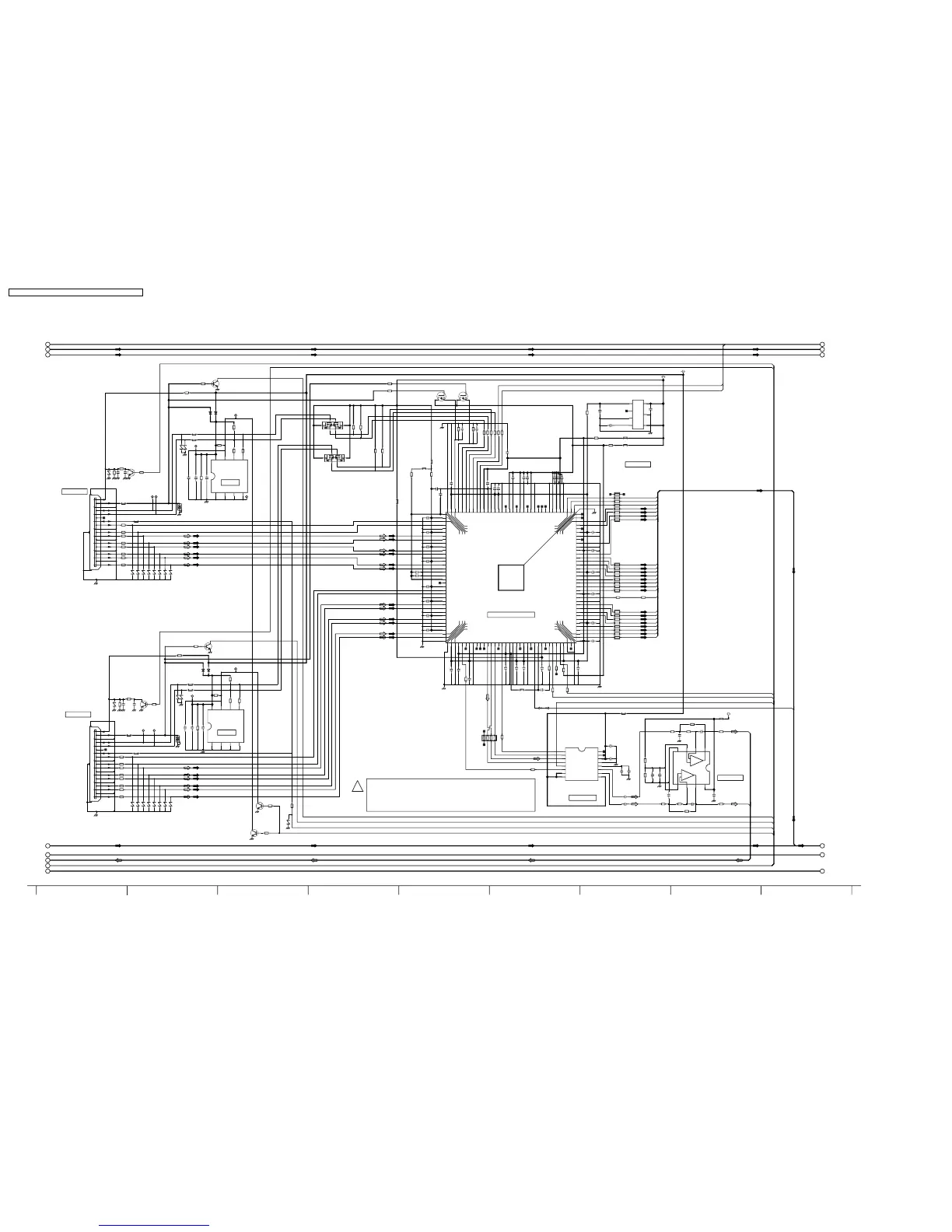
14.28. DG-Board (5 of 8) Schematic Diagram
Thermal
Pad
+
+
+
+
+
SCL1
HPD1
HDMI_DAC_PD
UBIN3
UBIN2
UBIN9
YBIN6
UBIN0
HDMI_RST
YBIN2
UBIN7
YBIN4
HDMI_5V_DET2
HDMI_5V_DET2
UBIN6
HDMI_5V_DET1
HDMI_5V_DET1
VSIB
AP_DE
SDA1
YBIN3
UBIN1
HSIB
YBIN7
YBIN0
UBIN5
YBIN9
UBIN4
UBIN8
REFCK_HDMI
YBIN5
HPD2
YBIN8
DDC_SDA0
DDC_SCL0
YBIN1
CLKINB2
MAIN1.8V
HDMI_R
HDMI_L
HDMI_WP
MAIN3.3V
HDMI_INT
HDMI_CEC
JS4025
100
C4332
1u
10V
C4305
1u
10V
C4327
0.1u
10V
R4677
18k
*D4021
EZJZ0V80008B
R4630
4.7k
L4046
J0JHC0000078
R4600
2.7
*L4076
J0JHC0000078
TP4032
C4317
0.1u
10V
*D4033
EZJZ0V80008B
C4347
1u
10V
R4642
22
C4342
0.1u
10V
C4306
1u
10V
D4036
EZJZ0V80008B
C4346
0.1u
10V
R4599
2.7
R4634
22
C0FBBK000047
IC4025
1
MCLK
2
BICK
3
SDTI
4
LRCK
5
PDN
6
SMUTE/CSN
7
ACKS/CCLK
8
DIF0/CDTI
9
P/S
10
AOUTR
11
AOUTL
12
VCOM
13
VSS
14
VDD
15
DZFR
16
DZFL
C1AB00002535
IC4026
SII9023CTU-L
1
DE
2
HSYNC
3
VSYNC
4
IOGND
5
IOVCC
6
NC
7
NC
8
NC
9
EVNODD
10
NC
11
NC
12
NC
13
NC
14
NC
15
IOGND
16
IOVCC
17
NC
18
NC
19
NC
20
NC
21
CGND
22
CVCC18
23
CVCC18
24
CGND
25
IOGND
26
IOVCC
27
CSDA
28
CSCL
29
DSDA1
30
DSCL1
31
DSDA0
32
DSCL0
33
R1PWR5V
34
R0PWR5V
35
CVCC18
36
CGND
37
PVCC0
38
AVCC
39
R0XC-
40
R0XC+
41
AGND
42
AVCC
43
R0X0-
44
R0X0+
45
AGND
46
AVCC
47
R0X1-
48
R0X1+
49
AGND
50
AVCC
51
R0X2-
52
R0X2+
53
AGND
54
TMDSPGND
55
PVCC1
56
RSVD_A
57
AVCC
58
R1XC-
59
R1XC+
60
AGND
61
AVCC
62
R1X0-
63
R1X0+
64
AGND
65
AVCC
66
R1X1-
67
R1X1+
68
AGND
69
AVCC
70
R1X2-
71
R1X2+
72
AGND
73
CGND
74
CVCC18
75
IOGND
76
IOVCC
77
MUTEOUT
78
SPDIF
79
CVCC18
80
CGND
81
NC
82
NC
83
NC
84
SD0
85
WS
86
SCK
87
NC
88
MCLK
89
IOVCC
90
IOGND
91
CGND
92
CVCC18
93
NC
94
AUDPVCC18
95
AUDPGND
96
XTALOUT
97
XTALIN
98
XTALVCC
99
REGVCC
100
NC
101
RSVDL
102
RESET#
103
SCDT
104
INT
105
CVCC18
106
CGND
107
CLK48B
108
IOGND
109
IOVCC
110
Q23
111
Q22
112
Q21
113
Q20
114
CVCC18
115
CGND
116
Q19
117
Q18
118
Q17
119
Q16
120
IOGND
121
ODCK
122
IOVCC
123
Q15
124
Q14
125
Q13
126
Q12
127
CGND
128
CVCC18
129
Q11
130
Q10
131
Q9
132
Q8
133
Q7
134
IOVCC
135
IOGND
136
Q6
137
Q5
138
CGND
139
CVCC18
140
Q4
141
Q3
142
Q2
143
Q1
144
Q0
C4314
0.1u
10V
C4311
0.1u
10V
*IC4023
1
E0
2
E1
3
E2
4
VSS
5
SDA
6
SCL
7
WC
8
VCC
*R4620
56
R4640
22
R4601
2.7
C4315
6.3V
10u
R4644
22
*TP4033
R4609
10k
R4675
18k
R4603
2.7
R4621
47k
R4606
10k
C4284
0.1u
10V
JS4026
100
R4637
33
C4331
6.3V
10u
*C4281
0.1u
10V
*Q4068
B1ABDF000034
C4349
16V
0.01u
*D4048
MAZ30560ML
L4048
J0JHC0000078
C0DBFFD00003
IC4027
1
2
3
45
6
7
D4028
EZJZ0V80008B
*D4041
EZJZ0V80008B
*Q4071
B1MBACA00008
G1
D1
S1
G2
D2
S2
D4026
EZJZ0V80008B
*L4043
J0JHC0000078
*R4624
56
*D4030
EZJZ0V80008B
*D4045
EZJZ0V80008B
*D4027
EZJZ0V80008B
R4641
EXB28V330JX
C4325
0.1u
10V
*D4052
B0HCMM000014
C4321
0.1u
10V
MAIN3.3V
C4337
0.1u
10V
D4050
B0HCMM000014
*TP4066
L4049
J0JBC0000080
L4075
J0JHC0000078
*L4040
J0JHC0000078
R4658
22
C4298
1u
10V
*R4617
4.7k
R4629
4.7k
C4334
0.1u
10V
C4302
1u
10V
C4292
0.1u
10V
*R4619
47k
C4322
0.1u
10V
C4282
0.1u
10V
R4286
0
*R4605
10k
*IC4022
1
E0
2
E1
3
E2
4
VSS
5
SDA
6
SCL
7
WC
8
VCC
R4584
39
L4052
J0JCC0000077
*TP4031
R4679
22k
D4047
MAZ30560ML
TP4034
*R4589
2.7
L4045
J0JHC0000078
*R4610
10k
R4645
22
*Q4084
B1ABDF000034
C4348
16V
47u
C4300
1u
10V
C4338
0.1u
10V
D4038
EZJZ0V80008B
*R4596
2.7
*R4595
2.7
D4044
EZJZ0V80008B
*R4593
2.7
R4662
22
R4628
10k
C4026
0.1u
10V
*R4027
1k
R4673
10k
R4636
10k
R4045
0
C4340
470p
50V
C4304
1u
10V
L4078
J0JHC0000078
C4333
0.1u
10V
C4318
0.1u
10V
*D4023
EZJZ0V80008B
C4335
0.1u
10V
R4672
10k
R4271
0
Q4069
B1ABDF000034
R4680
22k
*R4590
2.7
C4309
0.1u
10V
L4071
J0JBC0000080
*Q4083
2SK122800L
*D4019
EZJZ0V80008B
C4354
0.01u
16V
*C4287
0.1u
10V
R4602
2.7
R4622
56
*D4037
EZJZ0V80008B
R4681
33k
*R4101
10k
R4631
4.7k
C4339
2.2u
6.3V
JS4104
R4643
22
R4639
10k
*C4312
0.01u
16V
D4024
EZJZ0V80008B
D4031
EZJZ0V80008B
Q4066
B1ABDF000034
C4297
0.1u
10V
*D4025
EZJZ0V80008B
TP4065
C4336
0.1u
10V
R4665
EXB2HV220JV
C4345
10u
6.3V
R4607
22
C4288
0.1u
10V
D4032
EZJZ0V80008B
TP4036
C4310
0.01u
16V
33u6.3V
*C4289
R4604
2.7
C4307
0.1u
10V
D4035
EZJZ0V80008B
*D4034
EZJZ0V80008B
R4661
4.7k
R4618
4.7k
R4682
33k
C4343
16V
10u
R4667
EXB2HV220JV
C4541
0.1u
10V
R4613
4.7k
R4026
1k
Q4082
2SK122800L
C4352
50V
33p
*R4591
2.7
R4598
2.7
IC4028
C0ABBB000230
1
2
3
45
6
7
8
R4031
10k
R4010
0
L4044
J0JHC0000078
C4296
6.3V
10u
C4316
0.1u
10V
*R4594
2.7
R4626
56
DG9
1
2
3
4
5
6
7
8
9
10
11
12
13
14
15
16
17
18
19
C4313
0.1u
10V
TP4064
*D4029
EZJZ0V80008B
33u6.3V
C4290
*Q4065
B1ABDF000034
*R4592
2.7
MAIN5V
C4330
0.1u
10V
R4597
2.7
*C4283
0.1u
10V
R4668
68
L4041
J0JHC0000078
R4648
33
R4657
1.8k
L4050
J0JHC0000078
R4655
33
C4329
0.1u
10V
R4040
0
C4350
50V
180p
L4051
J0JHC0000078
*R4583
39
C4344
10u
6.3V
R4647
22
C4353
50V
33p
*L4042
J0JHC0000078
C4351
50V
180p
R4669
EXB2HV220JV
C4303
1u
10V
D4020
EZJZ0V80008B
TP4035
*R4633
22
Q4067
B1ABDF000034
C4301
1u
10V
R4632
4.7k
*D4051
B0HCMM000014
MAIN9V
C4308
0.1u
10V
*R4612
4.7k
Q4070
B1MBACA00008
G1
D1
S1
G2
D2
S2
*C4291
0.1u
10V
C4320
0.1u
10V
R4660
22
D4022
EZJZ0V80008B
D4049
B0HCMM000014
C4299
1u
10V
C4341
16V
47u
*DG8
1
2
3
4
5
6
7
8
9
10
11
12
13
14
15
16
17
18
19
*R4032
10k
R4272
0
DDCG
CEC
D0+
CLKG
D2-
DDCG
CEC
D2+
GND
+5V
Cn
D0+
CLK+
D0G
D1-
HDMI_SCL
D1+
D2G
L
CLKG
HDMI_SDA
HDMI_Y0
HDMI_Y1
-
HDMI_Y2
N.C.
R
D2-
HPDT
D1G
HDMI_Y3
D0-
HDMI_Y4
+5V
HDMI_Y5
+
-
SDA
SCL
CLK-
HDMI_UV0
HDMI_UV2
NC
HDMI_Y6
D1G
HDMI_UV6
HDMI_Y7
HDMI_CLK
RX_MCLK
RX_SCK
R
AUDIO DAC
RX_WS
HDMI_L_AUDIO
+VIL < 0.8V
HDMI_R_AUDIO
SDA
Vin
sub
L
SCL
HDMI_UV4
CLK-
HDMI_UV3
CONT
RX_SD0#
HDMI_UV5
DIGITAL VIDEO SIGNAL (HDMI)
Vo
VIH > 2.2V
HDMI_UV1
HDMI_UV7
D0- HIGH:MUTE
HDMI_VS
HDMI_DE
HDMI_HS
D2+
N.C.
CLK+
HPDT
D0G
D1-
D1+
D2G
G
D
S
D
TVRN917
TVRN916
43 4438 4237 41 4539 40
G
S
HDMI I/F RECEIVER
EEPROM
EEPROM
AUDIO AMP
HDMI IN 1
HDMI IN 2
MAIN 1.8V
92
93
94
95
96
73
75
72
77
79
76
78
71 91
DG-BOARD (5/8)
!
TNPA3756CP (TH-42PV60A)
TNPA3756CS (TH-42PV60H/M/MT)
TH-42PV60A/H/M/MT DG-Board (5 of 8) Schematic Diagram TH-42PV60A/H/M/MT DG-Board (5 of 8) Schematic Diagram
TH-42PV60A / TH-42PV60H / TH-42PV60M / TH-42PV60MT
92

Table of Contents

Related product manuals