EasyManua.ls Logo

Panasonic TH-42PV60H

Panasonic TH-42PV60H
149 pages
To Next Page IconTo Next Page
To Next Page IconTo Next Page
To Previous Page IconTo Previous Page
To Previous Page IconTo Previous Page
Loading...
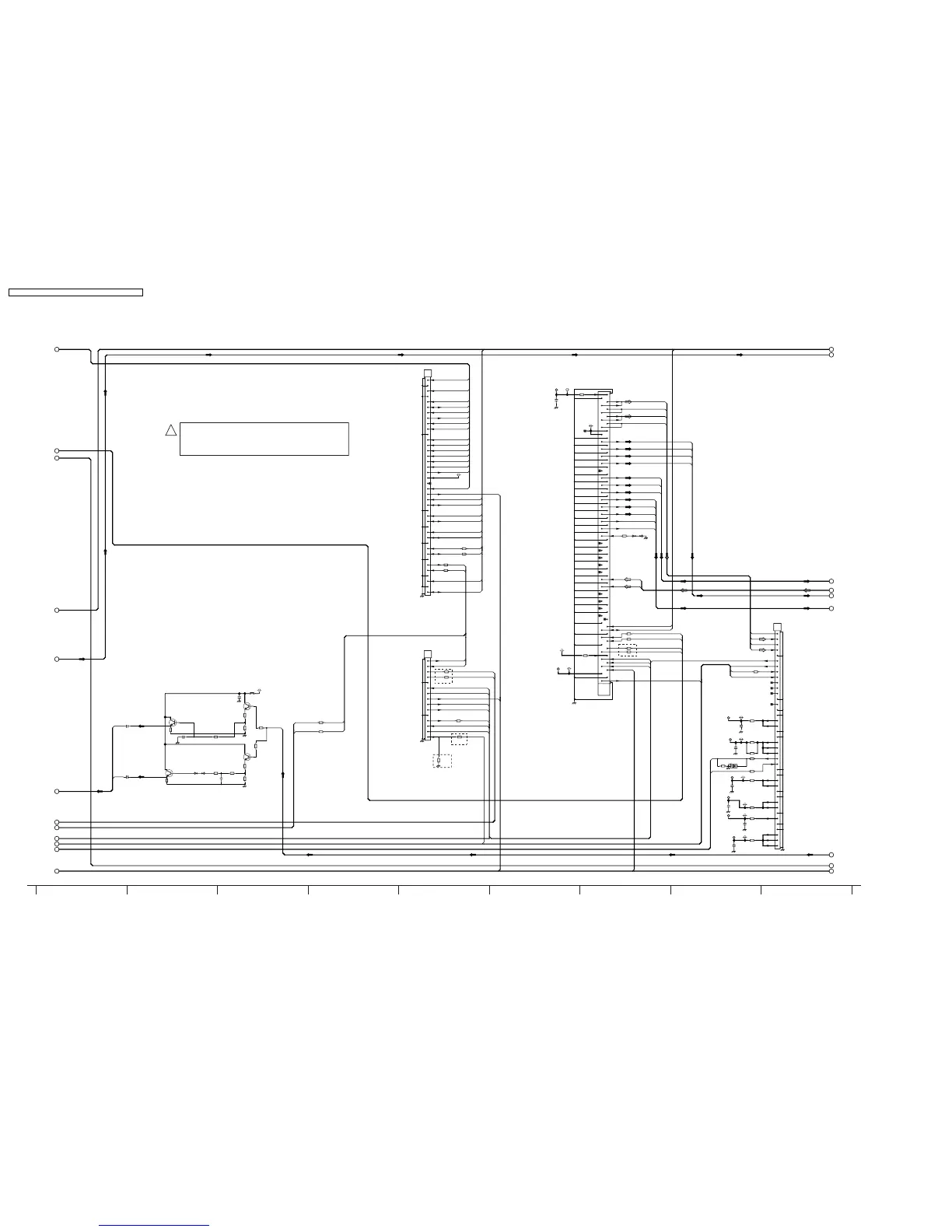
14.26. DG-Board (3 of 8) Schematic Diagram
+
+
+
+
+
+
NP
NP
+
CVBS0
CVBS1
SD_IRQ
SD_RST
AGC1_SD_TXD
AGC2_SD_RXD
AUDIO_MUTE
RST
A_MON_MUTE_MSP_RESET
SDA0B
SCL0B
HDMI_L
HDMI_R
PC_R
PC_G
PC_B
PC_HS
PC_VS
SUB_PR
SUB_PB
SUB_Y
RGB_CVBS
MAIN_PR
MAIN_Y/CVBS
MAIN_PB/C
SP_MUTE
TV_MAIN_ON
TV_SUB_ON
SOS
SOUND_SOS
SL
SL_GND
SR
SR_GND
SL
SL_GND
SR
SR_GND
SOS
D_STB3R3V
D_IIC_CONT
D_SCL2
D_SDA2
D_TXD
D_RXD
D_IIC_INT
AGC1_SD_TXD
AGC2_SD_RXD
SCL0A
SDA0A
SDA2
SCL0B
SDA0B
SCL1
SDA1
SRQ
AFC2_AFT2_SUB-MUTE
PSM_LEDR_AFC1_KEY2
AI_SENSOR
KEY1
RM_IN
G_LED_POWER
R_LED_STBY_LED
AGC2_SD_RXD
AGC1_SD_TXD
DTV_SCL0B
DTV_SDA0B
KEY3_KEY_EDGE
QLINK_IN1_(MAIN_SW1)
QLINK_IN2_(MAIN_SW2)
QLINK_SEL_(SUB_SW2)
FAN_SOS
R_LED
G_LED
RIMOCON
D_PSTB
D_PBUSY
D_PDB0
D_PSLCT
D_PDB1
D_15V
ODU_ON_ACTIVE_STB_LED
QLINK_OUT_(SUB_SW1)
SCL2
EURO_TEXT
FAN_MAX
*D1117
B0BC3R5A0163
MAIN1.8V
C1230
47u
16V
STBY3.3V
C1234
47u
16V
*R1441
0
TP1118
DG20
1
2
3
4
5
6
7
8
9
10
11
12
13
14
15
16
17
18
19
20
21
22
23
24
25
26
27
28
29
30
31
32
33
34
35
36
37
38
39
40
*R1254
0
SUB9V
TP1117
TP1120
*R1179
100
DG1
1
2
3
4
5
6
7
8
9
10
11
12
13
14
15
16
17
18
19
20
21
22
23
24
25
26
27
28
29
30
31
32
33
34
35
36
37
38
39
40
41
42
43
44
45
46
47
48
49
50
51
52
53
54
55
56
57
58
59
60
61
62
63
64
65
66
67
68
69
70
71
72
73
74
75
76
77
78
79
80
STBY5V
*L1109
J0JHC0000078
*Q1135
B1ABDF000034
*R1178
100
TP1116
SUB5V
R1428
0
*R1475
270
*R1193
100
C1233
47u
16V
*C1212
50V
150p
MAIN9V
DG2
1
2
3
4
5
6
7
8
9
10
11
12
13
14
15
R1212
0
*R1382
0
Q1130
B1ABDF000034
R1352
47k
*C1209
10V
1u
R1426
0
R1432
0
R1474
0
*R1194
100
*R1379
330
TP1113
R1427
0
C1231
47u
16V
SUB3.3V
R1429
0
R1554
0
*R1556
330
*JS1117
R1555
0
C1232
47u
16V
*R1351
100
R1333
100
C1229
47u
16V
R1431
0
STBY5V
R1377
0
*C1219
16V
10u
*R1447
470
*C1220
16V
10u
*R1383
0
TP1119
DG15
1
2
3
4
5
6
7
8
9
10
11
12
13
14
15
16
17
18
19
20
21
22
23
24
25
26
27
28
29
30
31
32
33
34
35
36
37
38
39
40
*R1213
0
C1228
47u
16V
R1461
0
R1462
0
*R1491
0
*R1439
270
*R1472
300
*R1436
560
*JS4103
R1430
0
*C1294
50V
33p
*Q1131
B1ABDF000034
MAIN3.3V
*R1437
560
SUB9V
*R1473
300
*R1354
100
TP1115
Q1134
B1ABDF000034
*R1446
470
MAIN5V
TP1114
*R4891
0
BT30V
*R1490
0
MAIN1.8V
SOUND_SOS
MAIN9V
SUB5V
BT30V
MAIN1.8V
ODU_ON/OFF
SUB9V
SUB9V
TV_MAIN_ON
SUB3.3V
SOS
MAIN5V
MAIN3.3V
TUNER_SUB_ON
SCL1(Main3.3V)
SDA1(Main3.3V)
2019 23 24 262522 2721
MAIN5V
SUB5V
SUB9V
BT30V
(HC15)
HC-BOARD
TO
D_PSLCT
D_PDB1
D_IIC_CONT
D_TXD
REMOCON
D_STB3R3V
D_PSTB
D_BUSY
G_LED
D_RXD
D_SCL2
D_PDB0
D_SDA2
R_LED
D_IIC_INT
STBY5V
SDA2
SCL2
SDA1
SCL1
SCL0B
SDA0B
SDA0A
SRQ
D_15V
SCL0A
DTV_SDA0B
DTV_SCL0B
SD_RX
SD_TX
SD_TX
SD_RX
SD_IRQ
SD_RST
STBY_LED
G_LED
RM_IN
KEY1
AI_SENSOR
KEY3_KEY_EDGE
AFC1
AFC2
ACTIVE_STB_LED
H-BOARD
TO
(H2)
(PA20)
PA-BOARD
TO
(H1)
H-BOARD
TO
SUB3.3V
SR
SR
SL
SL
MAIN_Y
SR
SL
SUB_PR
SUB_PB
SUB_Y
HDMI_L
HDMI_R
BS_Y(V)
BS_SR
BS_SL
MAIN_R
MAIN_L
PC_VS
PC_HS
PC_B
PC_G
PC_R
MAIN_PB/C
MAIN_Y/CVBS
MAIN_PR
RGB_CVBS
RGB_FB
AUDIO_MUTE
QLINK_AV2
SP_MUTE
RST
QLINK_AV3
SCL0B
A_MON_MUTE_
SOS
SDA0B
AD_DAT
AD_LRCK
AD_BICK
MSP_RESET
FAN_SOS
FAN_MAX
MAIN3.3V
MAIN3.3V
51
52
54
55
56
57
58
59
60
PV60H/M/MT ONLY
PV60H/M/MT ONLY
PV60H/M/MT ONLY
PV60A ONLY
21
22
23
24
25
26
27
28
29
30
31
32
DG-BOARD (3/8)
!
TNPA3756CP (TH-42PV60A)
TNPA3756CS (TH-42PV60H/M/MT)
TH-42PV60A/H/M/MT DG-Board (3 of 8) Schematic Diagram TH-42PV60A/H/M/MT DG-Board (3 of 8) Schematic Diagram
TH-42PV60A / TH-42PV60H / TH-42PV60M / TH-42PV60MT
90

Table of Contents

Related product manuals