EasyManua.ls Logo

PEERLESS PUREFIRE PF-850 - Page 65

PEERLESS PUREFIRE PF-850
100 pages
Print Icon
To Next Page IconTo Next Page
To Next Page IconTo Next Page
To Previous Page IconTo Previous Page
To Previous Page IconTo Previous Page
Loading...
63
TROUBLESHOOTING
2. If a temporary jumper between terminals #11 & #12
allows the boiler to proceed to “Trial for Ignition” then
one of the external interlocks (LWCO, etc.) may be
open. Do not leave a jumper installed if there are
interlocks attached to these terminals.
3. Pressing the reset buttons on both high and low gas
pressure switches may reset the error. However, if this
doesn't reset the error, check the incoming gas
pressure. If it is between 3.5" and 21" of water then
the switches should reset. If the error is occurring at or
after ignition, check the gas pressure when the boiler
lights off. It may be that the gas pressure drops
significantly when the gas valve opens. In this case,
contact the gas supplier to increase the available gas
pressure.
Do not leave a jumper between terminals #11 & #12 if
interlocks are attached to these terminals. Failure to
comply may lead to severe personal injury, death or
major property damage.
CAUTION
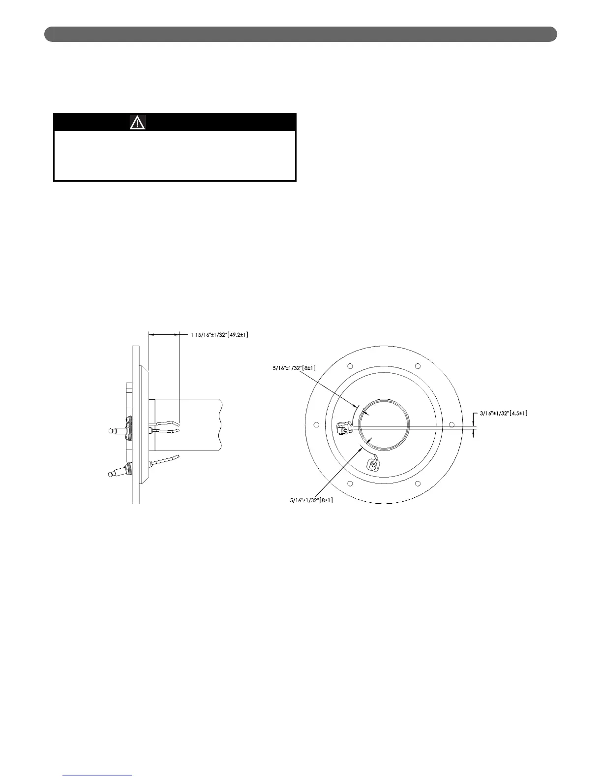
Figure 10.10: Correct Flame Rod and Ignition Electrode Position

Table of Contents

Related product manuals