EasyManua.ls Logo

Perlick BBS60 - Page 33

Perlick BBS60
81 pages
Print Icon
To Next Page IconTo Next Page
To Next Page IconTo Next Page
To Previous Page IconTo Previous Page
To Previous Page IconTo Previous Page
Loading...
Back Bar Service Manual
Return to Table of Contents Electrical System Repair Instructions Page 7-9
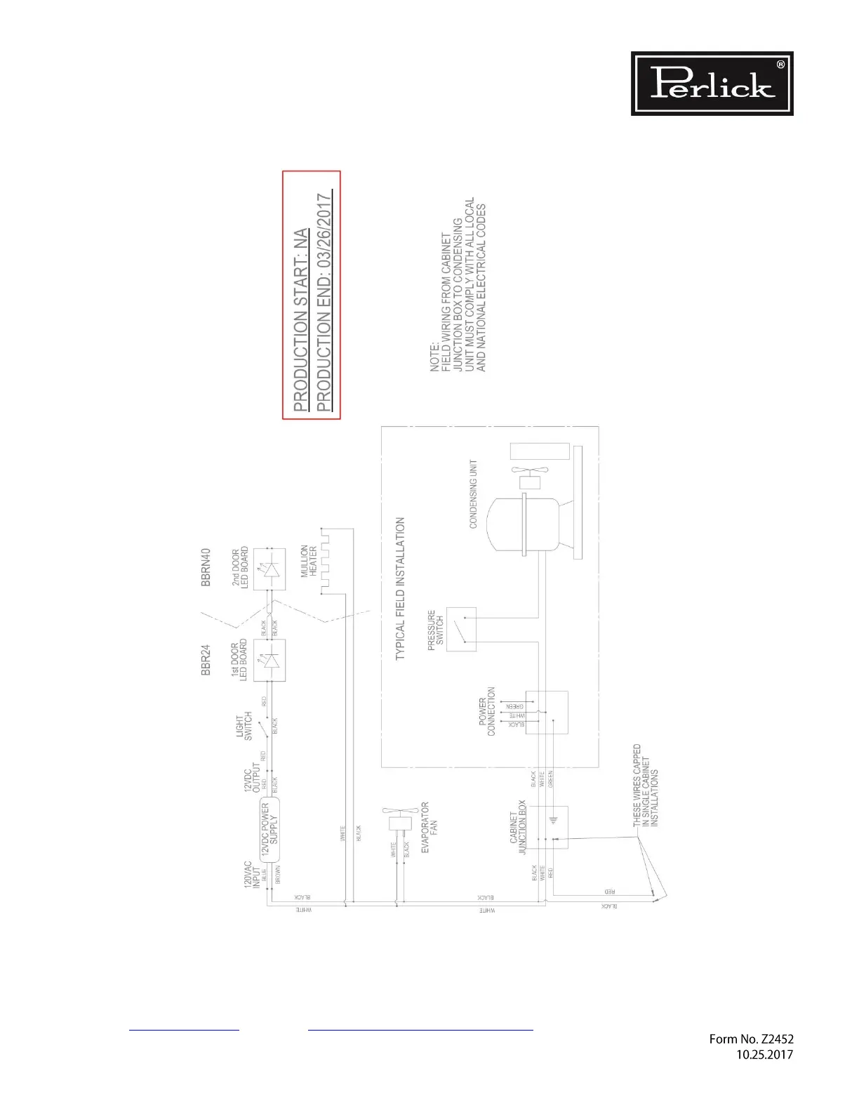
Figure 7-4. BBR24, BBRN40 Wiring Diagram

Table of Contents

Related product manuals