EasyManua.ls Logo

Planar EP5024K - Ep5024 K-T

Planar EP5024K
85 pages
Print Icon
To Next Page IconTo Next Page
To Next Page IconTo Next Page
To Previous Page IconTo Previous Page
To Previous Page IconTo Previous Page
Loading...
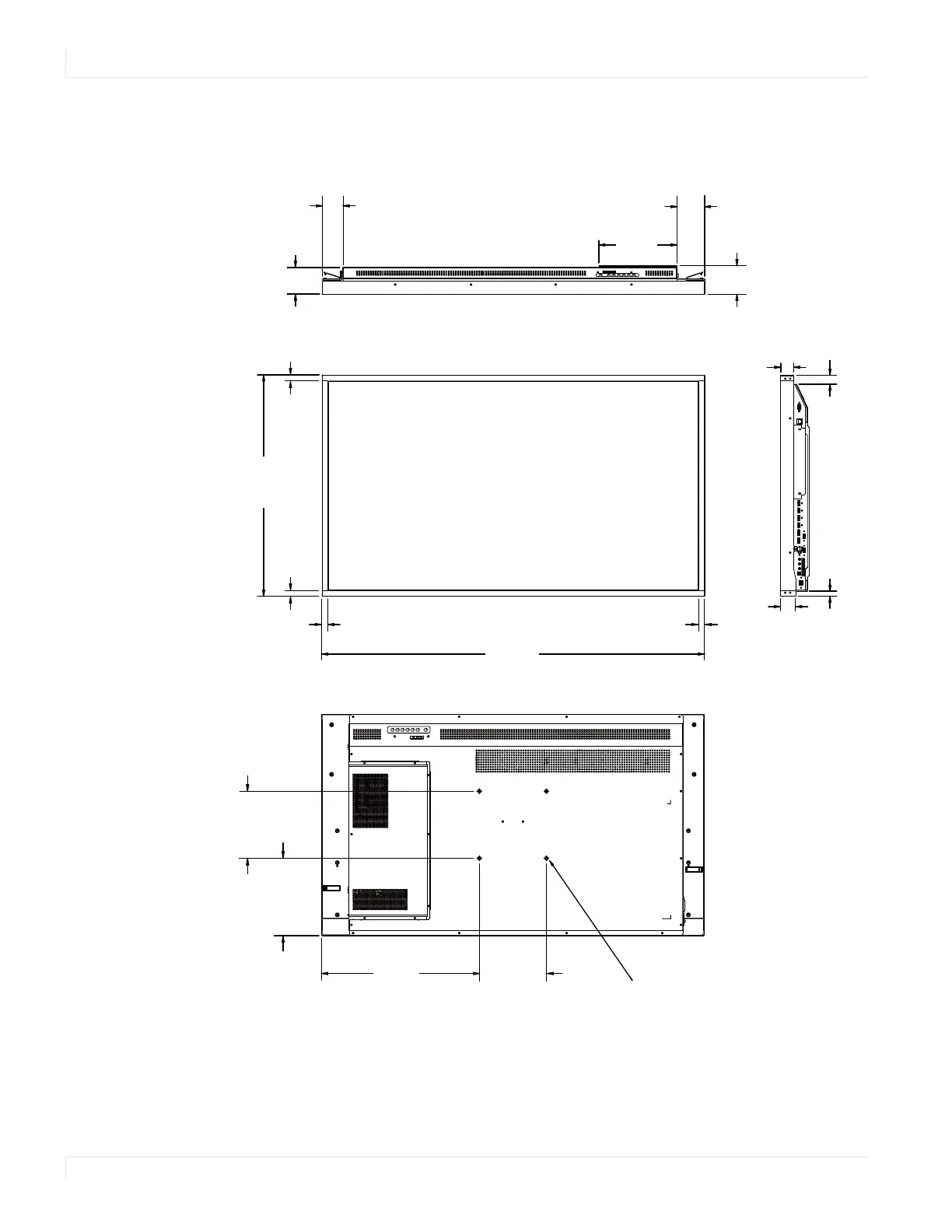
EP5024K-T
72 EP Series Ultra HD LCD Displays User Guide
EP5024K-T
17.1mm
[ 0.7in ]
659.6mm
[ 26.0in ]
17.1mm
[ 0.7in ]
1140.2mm
[ 44.9in ]
17.7mm
[ 0.7in ]
17.7mm
[ 0.7in ]
15mm
[ 0.6in ]
45.4mm
[ 1.8in ]
27.3mm
[ 1.1in ]
39.4mm
[ 1.6in ]
4x M8 VESA
MOUNTING HOLES
200mm
[ 7.9in ]
470.1mm
[ 18.5in ]
200mm
[ 7.9in ]
230.3mm
[ 9.1in ]
84.4mm
[ 3.3in ]
82.2mm
[ 3.2in ]
232.8mm
[ 9.2in ]
79.8mm
[ 3.1in ]
62.2mm
[ 2.4in ]

Related product manuals