EasyManua.ls Logo

R2Sonic 2024 - Acoustic Centre; Figure 2: Sonic 2024 Acoustic Centre; Figure 3: Sonic 2024 Acoustic Centre, as Mounted

Default Icon
254 pages
Print Icon
To Next Page IconTo Next Page
To Next Page IconTo Next Page
To Previous Page IconTo Previous Page
To Previous Page IconTo Previous Page
Loading...
Page 29 of 254
Version
6.3
Rev
r012
Date
05-11-2022
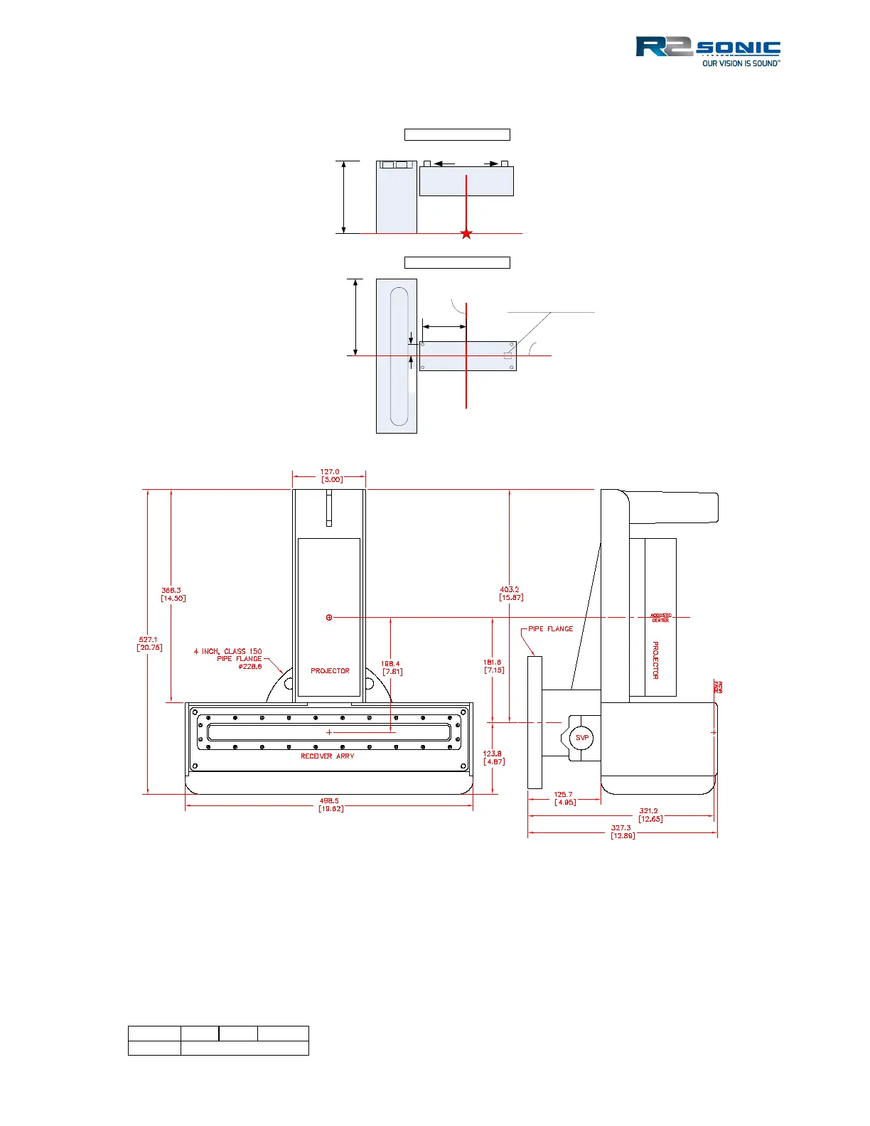
2.9 Acoustic Centre
Figure 2: Sonic 2024 Acoustic Centre
Figure 3: Sonic 2024 Acoustic Centre, as Mounted
Centre of Flange to Alongship offset = 0.182m (0.597ft)
Top of Flange to Z reference = 0.318m (1.043ft)
Alongship ref
Athwartship
ref
Z
Reference
FOREAFT
SONIC 2024 Side View
SONIC 2024 Plan View
120mm
39mm
187mm
240mm
Connector under
35mm
standoffs
Acoustic Centre

Table of Contents

Related product manuals