EasyManua.ls Logo

R2Sonic 2024 - Figure 4: Sonic 2022 Acoustic Centre; Figure 5: Sonic 2022 Acoustic Centre, as Mounted

Default Icon
254 pages
Print Icon
To Next Page IconTo Next Page
To Next Page IconTo Next Page
To Previous Page IconTo Previous Page
To Previous Page IconTo Previous Page
Loading...
Page 30 of 254
Version
6.3
Rev
r012
Date
05-11-2022
Part No. 96000001
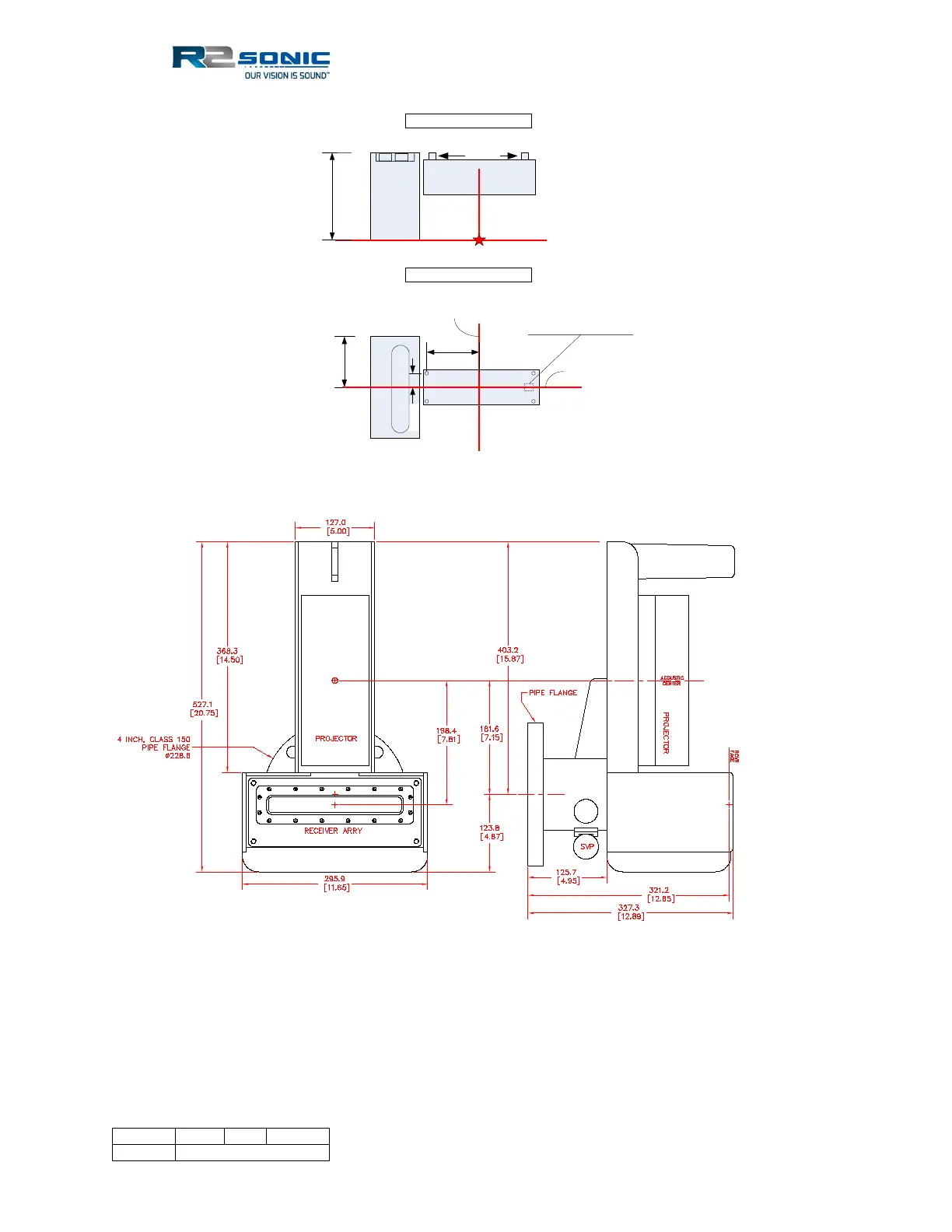
Figure 4: Sonic 2022 Acoustic Centre
Figure 5: Sonic 2022 Acoustic Centre, as Mounted
Centre of Flange to Alongship offset = 0.182m (0.597ft)
Top of Flange to Z reference = 0.318m (1.043ft)
Alongship ref
Athwartship
ref
Z
Reference
FORE
AFT
SONIC 2022 Side View
SONIC 2022 Plan View
120mm
39mm
187mm
138mm
Connector under
35mm
standoffs
Acoustic Centre

Table of Contents

Related product manuals