EasyManua.ls Logo

Renishaw MP10 - Typical Probe Systems

Renishaw MP10
48 pages
Print Icon
To Next Page IconTo Next Page
To Next Page IconTo Next Page
To Previous Page IconTo Previous Page
To Previous Page IconTo Previous Page
Loading...
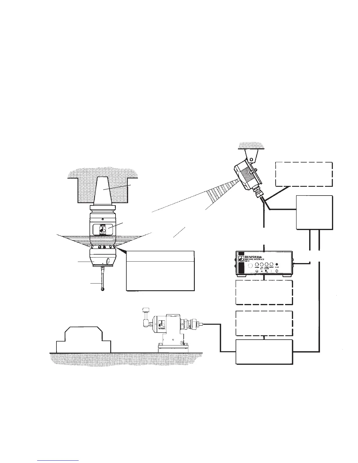
A workpiece set-up and inspection probe is in effect another
tool in the system. A probe cycle may be included at any
stage of the machining process.
Signals are transmitted between the probe and the machine
control, via the OMP and OMM + MI 12 or alternatively the
OMP and OMI.
TYPICAL PROBE SYSTEMS
1-2
Workpiece
Probe head
Stylus
Machine spindle
Typical tool
setting probe
CNC
machine
control
Cable
Battery cover
Shank (size 25 - 50)
Optional - PSU3
power supply unit
Optional - PSU3
power supply unit
OMP - LEDs
Mounting bracket
OMI (one only)
+ CNC control
Optional - PSU3
power supply unit
MP10
inspection
probe
3 x Receive diodes
6 x Transmit LEDs
1 x Probe status LED
MI 12 interface unit
or MI 12 board
OMM (one or two)
+ MI 12
+ CNC control
MI 5, MI 8 or
MI 8-4
interface
unit
SEE PAGES 1-38, 1-39 & 1-40
OMM - Optical module machine
OMP - Optical module probe
OMI - Optical machine interface

Related product manuals