EasyManua.ls Logo

Reznor RPB - Control Wiring

Reznor RPB
48 pages
Print Icon
To Next Page IconTo Next Page
To Next Page IconTo Next Page
To Previous Page IconTo Previous Page
To Previous Page IconTo Previous Page
Loading...
20
RPB-IOM (06-22) 131782-B
INSTALLATION—CONTINUED
Electrical Connections—Continued
Table 11. Field-Supplied Wiring Sizes
Voltage/Phase Motor HP Wire Gauge BX Cable
208–230/1 1–1-1/2 14
3/8-inch
208–230/3
1/4–3 14
5 12
460/3 1/4–5 14
575/3 1/2–5 14
Control Wiring
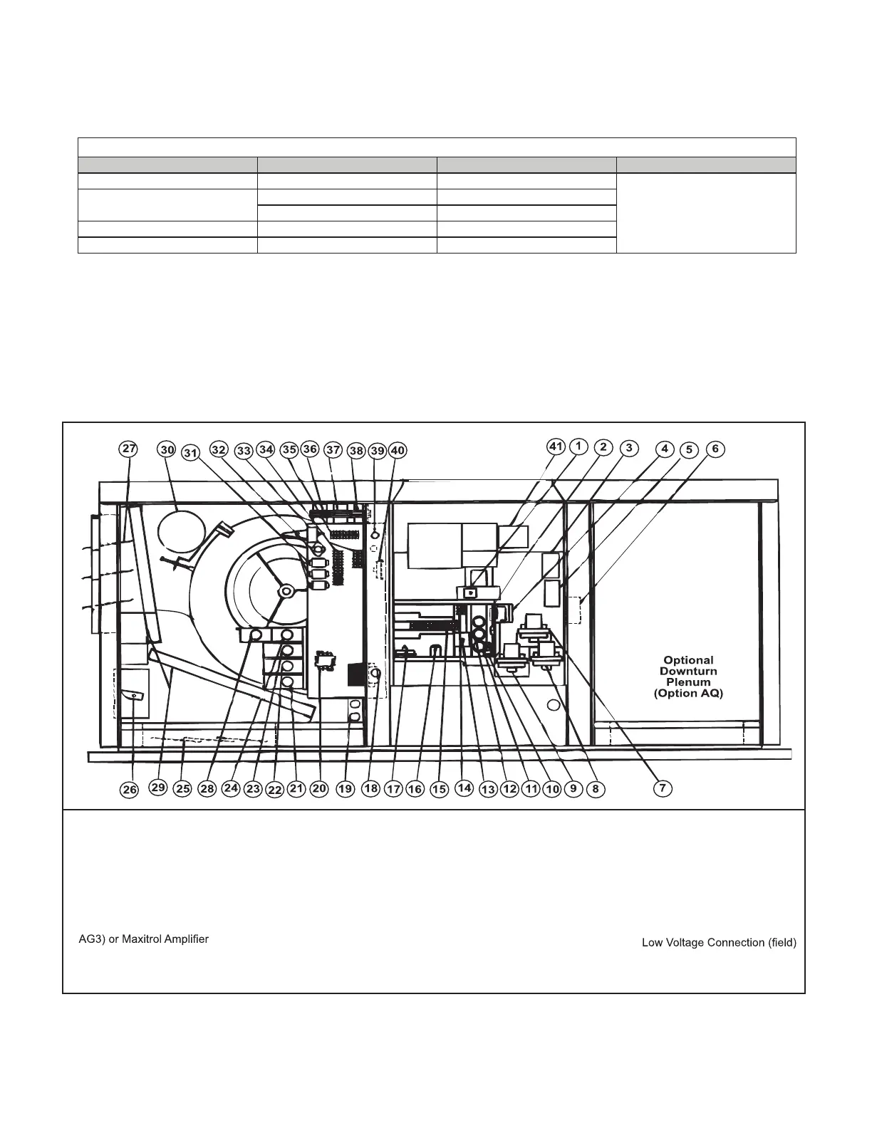
There are a variety of optional controls (see Figure 10) available as part of the gas and air control options.
Optional shipped-separate heating and makeup air controls could include a single or two-stage thermostat, system
switches, Selectrastat, discharge temperature low limit, an automatic night setback device, a Maxitrol temperature
selector, a potentiometer, a pressure null switch, or a combination of these controls. Install controls according to
the manufacturer’s instructions packaged with the heater. Refer to Table 12 for amp ratings of optional controls.
Refer to Table 13 for the recommended maximum length and minimum gauge of control wiring.
Figure 10. Control Locations
1. Auto-Reset Discharge
Temperature Low Limit
2. Combustion Air Pressure
Switch
3. Discharge Air Firestat
4. Ignition Controller
5. Maxitrol Discharge Air Sensor
(Option AG8 or AG9)
6. Two-Stage Controller (Option
(Option AG7, AG8, or AG9)
7. Main Low Gas Pressure Switch
8. Pilot High Gas Pressure Switch
9. Main High Gas Pressure Switch
10. Time Delay Relay
11. Limit Control
12. Fan Control
13. Discharge Temperature Low
Limit Time Delay Relay
14. Line Voltage Terminal Block
15. Low Voltage Terminal Block
16. Discharge Temperature Low
Limit Relay
17. Dirty Filter Pressure Switch
18. Line Voltage Connection
19. Convenience Outlet
20. Blower Motor Contactor or
Starter
21. High Ambient Limit Control
22. Outside Air or Return Air
Controller
23. Mixed Air Controller
24. Potentiometer
25. Return Air Dampers
26. Two Position or Modulating
Damper Motor
27. Outside Air Damper
28. Potentiometer
29. Filters
30. Blower Motor
31. Control Relays
32. Auto Reset Reverse Flow Limit
33. Return Air Firestat
34. Low Voltage Terminal Strip
35. Line Voltage Terminal Strip
36. Control Transformer
37. Control Transformer
38. Damper Motor Transformer
39.
40. Air Proving switch
41. Venter Assembly

Table of Contents

Other manuals for Reznor RPB

Related product manuals