EasyManua.ls Logo

Riello 464T2 - Instalaciones Hidráulicas; Cebado de la Bomba

Riello 464T2
Print Icon
To Next Page IconTo Next Page
To Next Page IconTo Next Page
To Previous Page IconTo Previous Page
To Previous Page IconTo Previous Page
Loading...
20025319
4
E
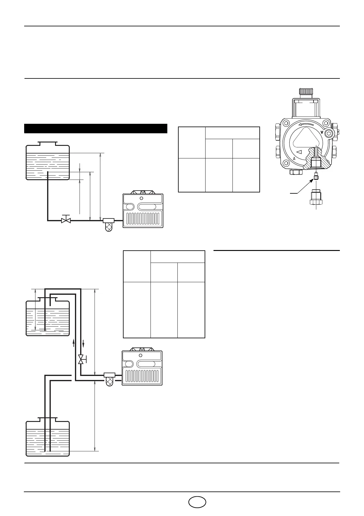
INSTALACIONES HIDRÁULICAS
Atención: antes de poner en funcionamiento el quemador hay que asegurarse de que el tubo de
retorno del combustible no esté obstruido. Una contrapresión excesiva causaría la rotura
del órgano de estanquidad de la bomba.
No hay que sobrepasar la depresión
máx. de 0,4 bar (30 cm Hg). Por encima
de este valor se produce la gasificación
del combustible.
Las tuberías deben ser perfecta-
mente estancas. En las instalacio-
nes por depresión, la tubería de
retorno debe llegar a la misma altura
que la de aspiración. En este caso
nose necesita válvula de pie.
En cambio, si la tubería de retorno llega
por encima del nivel del combustible, la
válvula de pie es indispensable. Esta
segunda solución es menos segura que
la precedente debido a la eventual falta
de estanquidad de esta válvula.
CEBADO DE LA BOMBA
Encienda el quemador y espere el ceba-
do. Si el bloqueo del quemador se produ-
ce antes de la llegada del combustible,
esperar como mínimo 20 segundos e ini-
ciar de nuevo esta operación.
Es necesario instalar un filtro en la línea de alimentación del combustible.
H
metros
Lmetros
ø i
8 mm
ø i
10 mm
0,5
1
1,5
2
10
20
40
60
20
40
80
100
ATENCIÓN
La bomba está prevista para funcionar en bitubo.
Para el funcionamiento monotubo se debe quitar el tornillo de by-
pass (A), (ver la figura).
A
H
metros
Lmetros
ø i
8 mm
ø i
10 mm
0
0,5
1
1,5
2
3
3,5
35
30
25
20
15
8
6
100
100
100
90
70
30
20
D5199
CEBADO DE LA BOMBA
Desenrosque el tapón de la conexión del
vacuómetro (5, fig. 1) y espere que salga
combustible.
H = Diferencia del nivel.
L = Longitud máx. del tubo
de aspiración.
ø i = Diámetro interior del
tubo
.
H máx. 4 m
H
H
máx. 4 m
mín. 0.1 m
D5219
D5220
INSTALACN NO PERMITIDA EN ALEMANIA

Related product manuals