EasyManua.ls Logo

Rosemount Analytical 54C - Panel Mounting Dimensions

Rosemount Analytical 54C
53 pages
Print Icon
To Next Page IconTo Next Page
To Next Page IconTo Next Page
To Previous Page IconTo Previous Page
To Previous Page IconTo Previous Page
Loading...
1-2
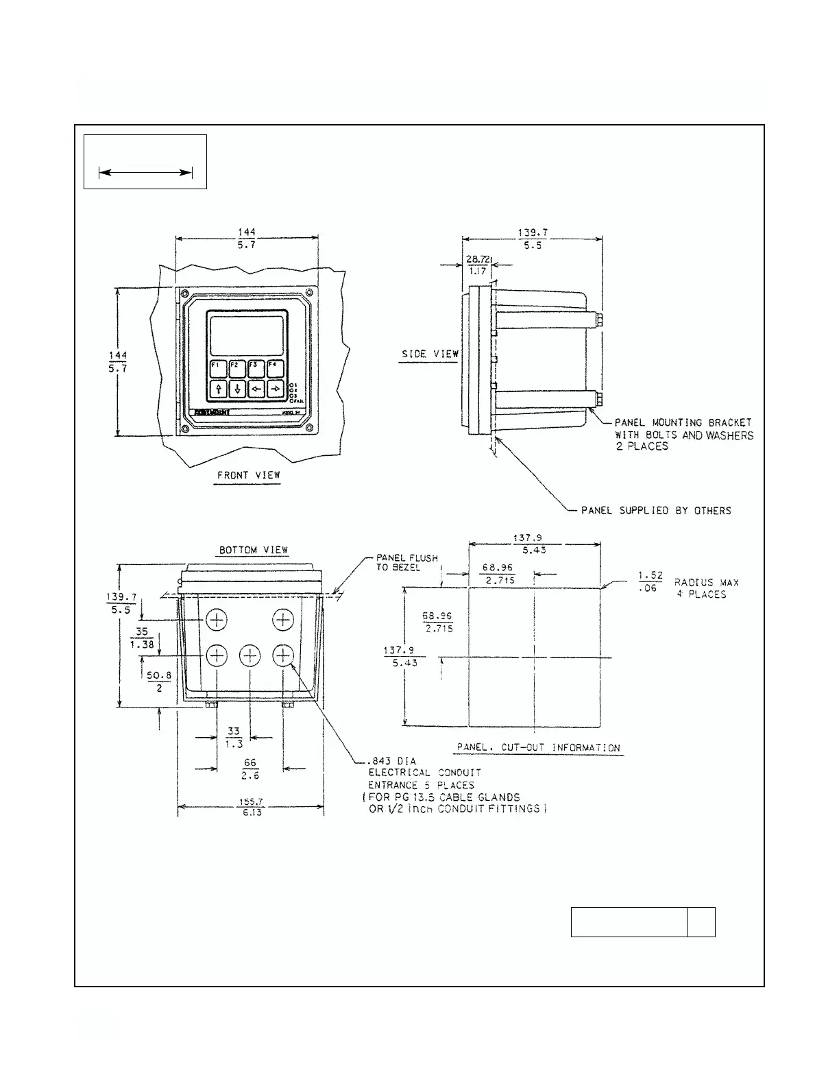
MODEL 54 C SECTION 1
INSTALLATION
FIGURE 1-2. Panel Mounting Dimensions
DWG. NO. REV.
40005401 D
WHEN INCH AND METRIC DIMS
ARE GIVEN
MILLIMETER
INCH