EasyManua.ls Logo

Rosemount Analytical 54C - Two-Inch Pipe and Wall Mounting Dimensions; Wall Mounting; Pipe Mounting

Rosemount Analytical 54C
53 pages
Print Icon
To Next Page IconTo Next Page
To Next Page IconTo Next Page
To Previous Page IconTo Previous Page
To Previous Page IconTo Previous Page
Loading...
1-3
MODEL 54 C SECTION 1
INSTALLATION
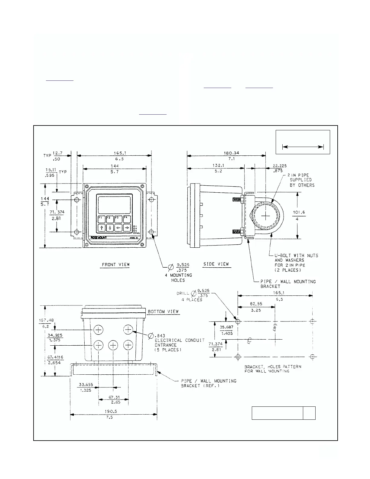
1.2.2 Wall or Surface Mounting (P/N 2002577)
1. Mount the bracket to the analyzer as shown in
Figur
e 1-3.
2. Mount the analyzer to the pipe/wall mounting
bracket using the four screws provided.
3. Mount analyzer mounting bracket to wall using
customer supplied hardware (see Figur
e 1-4).
1.2.3 Pipe Mounting (P/N 2002577)
1. Attach the mounting bracket to the rear of the
analyzer and tighten the four screws as shown in
Figur
e 1-3 and Figure 1-5.
2. Place supplied U bolts around the mounting pipe
and through the pipe mounting bracket and
mounting bracket. Tighten the U bolt nuts until the
analyzer is securely mounted to the pipe.
FIGURE 1-3. Two-inch Pipe and Wall Mounting Dimensions
DWG. NO. REV.
40005402 C
WHEN INCH AND METRIC DIMS
ARE GIVEN
MILLIMETER
INCH