EasyManua.ls Logo

Rosemount 1054B - Wall Mount Enclosure Details

Rosemount 1054B
55 pages
Print Icon
To Next Page IconTo Next Page
To Next Page IconTo Next Page
To Previous Page IconTo Previous Page
To Previous Page IconTo Previous Page
Loading...
12
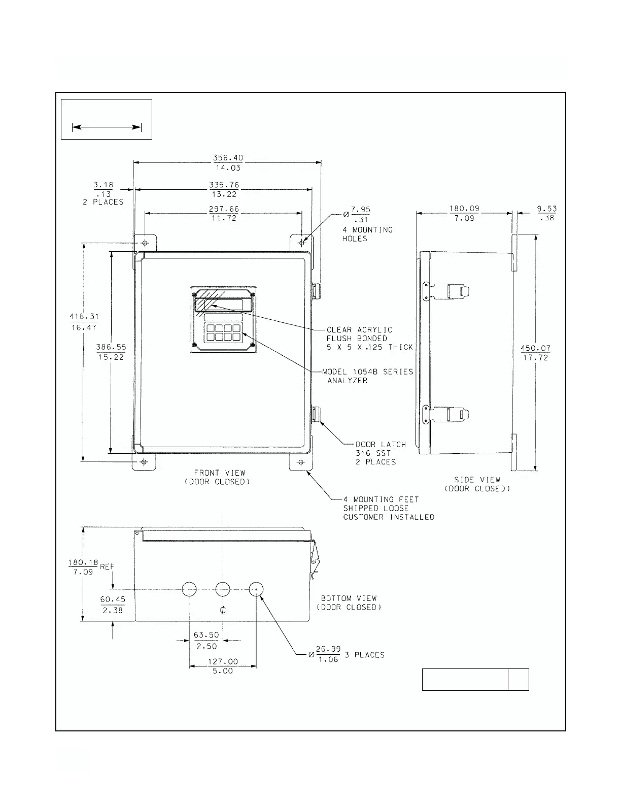
MODEL 1054B pH/ORP SECTION 2.0
INSTALLATION
FIGURE 2-8. Wall Mount Enclosure (Option -20)
DWG. NO. REV.
41054B43 A
WHEN INCH AND METRIC DIMS
ARE GIVEN
MILLIMETER
INCH

Related product manuals