EasyManua.ls Logo

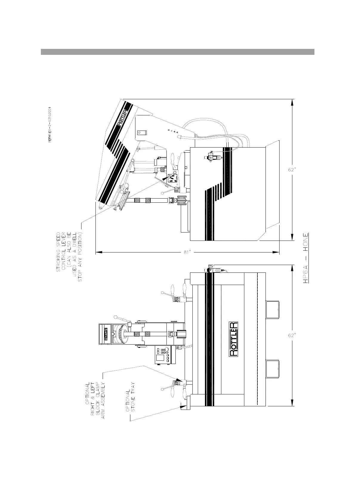
Rottler HP6A - Chapter 6 Machine Parts; Front; Right Side View

Default Icon
150 pages
Print Icon
To Next Page IconTo Next Page
To Next Page IconTo Next Page
To Previous Page IconTo Previous Page
To Previous Page IconTo Previous Page
Loading...
Machine Parts
6-1
P6A Manual
Chapter 6 Machine Parts
Front / Right Side View:
HP6A

Table of Contents