EasyManua.ls Logo

Sanyo SUPER BL PY - Page 153

Sanyo SUPER BL PY
354 pages
Print Icon
To Next Page IconTo Next Page
To Next Page IconTo Next Page
To Previous Page IconTo Previous Page
To Previous Page IconTo Previous Page
Loading...
7. EXPLANATION OF PARAMETERS
758
Mode Page
Abbre-
viation
Name and description Standard value
Setting
range
Remarks
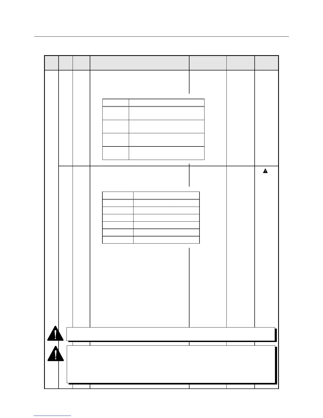
4 2 Func Servo function select
Selectable enabled/ disabled of gain switch
and real time automatic tuning functions.
Normal 4 choices
3 TYPE Control mode
You can choose a desired control mode from
position, velocity and torque control.
For the switch type, you can specify a desired
control mode from CN1-36 pin or 35 pin.
When
Func3, bit 7 is 0 : 36 pin is enabled.
1 : 35 pin is enabled.
$$$$ : The standard value varies according to
the specifications employed at the time
of shipment.
$$$$ 6 choices ( )
Indication Contents
Normal Gain switching disabled
Real time automatic tuning disabled
Gain_Sel. Gain switching enabled
Real time automatic tuning disabled
Gain_Tun. Gain switching disabled
Real time automatic tuning enabled
Gsel&Gtun Gain switching enabled
Real time automatic tuning enabled
Indication Contents
Position Position control type
Velocity Velocity control type
Torque Torque control type
Velo Torq Velocity-to-torque switch type
Posi Torq Position-to-torque switch type
Posi Velo Position-to-velocity switch type
Note the following for changes to be conducted on Pages 3 to 6 and 8 (system
parameters):
1 Turn off the control power before change.
2 Change is effective only after Func6 bit7 is set at "1" from Screen Mode 2.
3 If the above operation (Func6 bit7 to "1") is ignored, the parameter change is invalid
Changing Func allows switching the servo gain during operation.

Table of Contents

Related product manuals