EasyManua.ls Logo

Sensor SMT-200 - Docking Station Schematics; Docking Station; Charger

Sensor SMT-200
152 pages
Print Icon
To Next Page IconTo Next Page
To Next Page IconTo Next Page
To Previous Page IconTo Previous Page
To Previous Page IconTo Previous Page
Loading...
Appendix D Schematics & Layouts Io
SENSOR
124
SMT-200 Operations and Technical Manual 2.00/R1
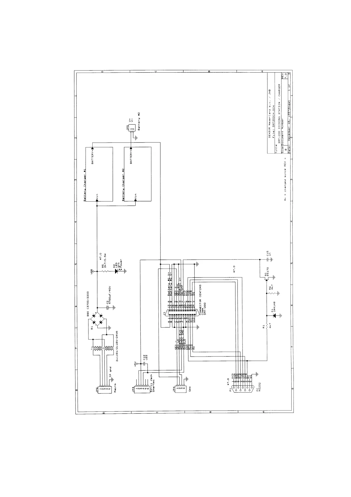
D.3 SMT-200 Docking Station Schematics
D.3.1 SMT-200 Docking Station / Charger

Table of Contents