EasyManua.ls Logo

SICK CLV61 Series - Page 30

SICK CLV61 Series
52 pages
To Next Page IconTo Next Page
To Next Page IconTo Next Page
To Previous Page IconTo Previous Page
To Previous Page IconTo Previous Page
Loading...
Chapter 4 Technical Information
CLV61x bar code scanner
30 © SICK AG · Germany · All rights reserved · Subject to change without notice 8015592/ZNI9/2017-06-13
Electrical installation
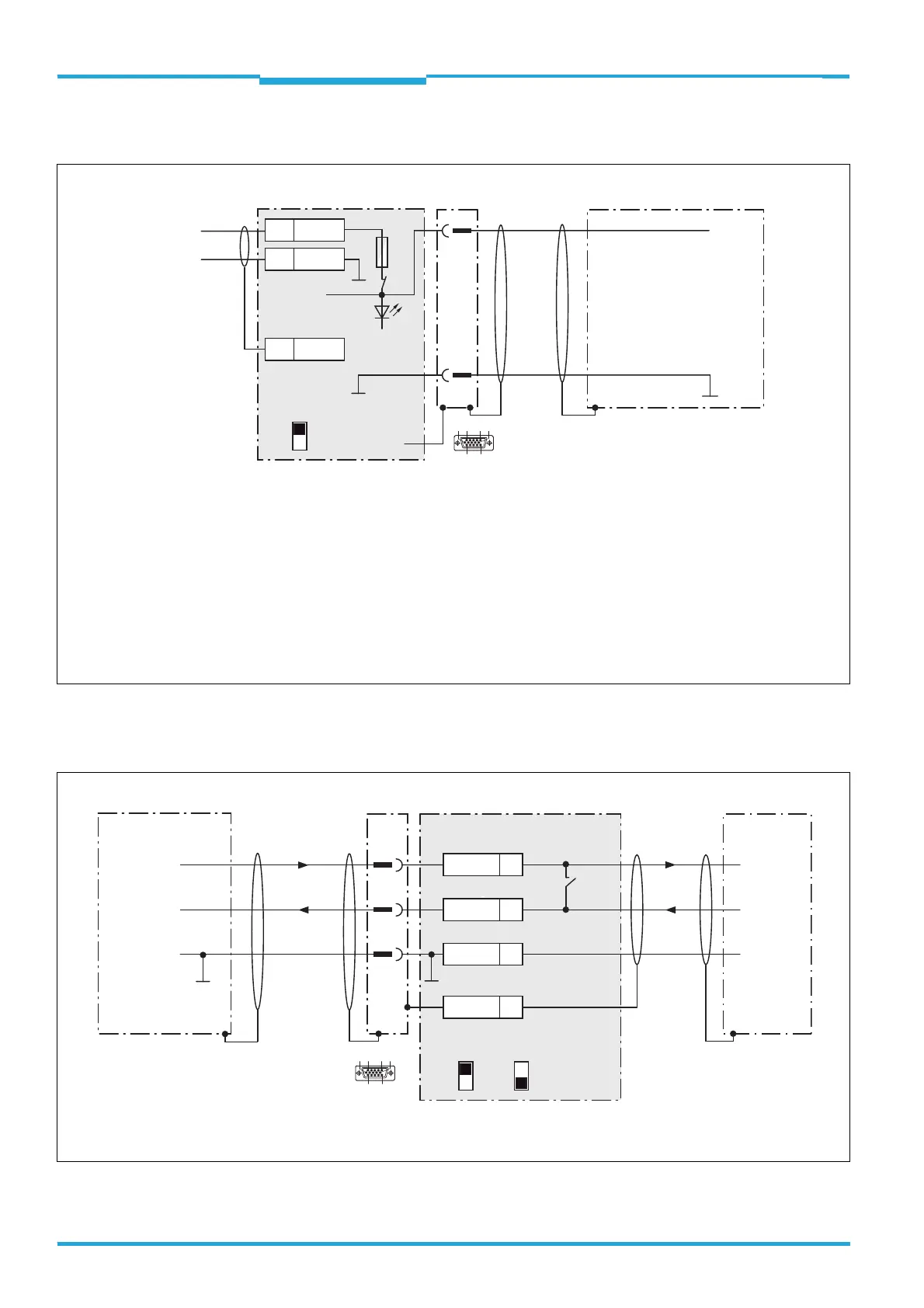
4.7.2 Wiring the Supply Voltage in the CDB620-001 Connection Module
4.7.3 Wiring the RS-232 serial Host Data Interface in the CDB620-001 Connection
Module
6
1
10
5
11
15
CLV61x
CDB620
V
S
V
S
1
5
5
Shield
1U
IN
2 GND
U
IN
*
GND
S1
F
Shield
D-Sub HD plug,
15-pin
GND
.
.
.
.
.
.
ON
OFF
S1 : POWER
DC 10 V to 30 V
U
IN
*
Switch S1:
ON:
Power supply voltage U
IN
switched to U
IN
*
via fuse to CDB620 and CLV61x.
Power supply voltage U
IN
* additionally available on terminals 11 and 14.
OFF:
CDB620 and CLV61x disconnected from power supply voltage.
Recommended position during all electrical installation work.
POWER
V
S
= DC 10 V to 30 V on terminal U
IN
= U
IN
* after fuse F and switch S1
6
1
10
5
11
15
CLV61x CDB620 Host
D-Sub
HD plug,
15-pin
5
.
.
.
TxD
RxD
RxD
TxD
GND
GND
GND
9
7
43
T/TxD
44
R
/RxD
42
GND
6
Shield
RS-232 RS-232
422
485
S6 : RS
ON
OFF
S7: Term 485
S6
422485

Other manuals for SICK CLV61 Series

Related product manuals