EasyManua.ls Logo

SICK CLV61 Series - 6.3 Pin assignments for electrical connections

SICK CLV61 Series
52 pages
To Next Page IconTo Next Page
To Next Page IconTo Next Page
To Previous Page IconTo Previous Page
To Previous Page IconTo Previous Page
Loading...
Technical Information Chapter 4
CLV61x
Electrical installation
8015592/ZNI9/2017-06-13 © SICK AG · Germany · All rights reserved · Subject to change without notice 39
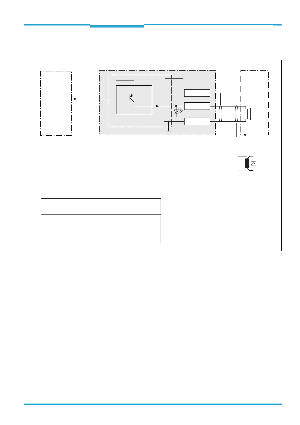
4.7.12 Wiring the "External output 2" Switching Output in the CDB620-001 connection
module
Load (e.g. PLC)
GND
Quenching circuit:
Install an anti-surge
diode directly at the
load!
For inductive load:
V
out
Ratings for "External output 2" ("Out 2“ switching output)
PNP switching against the supply voltage U
IN
*
(default setting: no function/disabled,
logic: not inverted [active high])
Short-circuit proof + temperature protected
Galvanically not separate from U
IN
*
0 V ≤ V
out
≤ U
IN
*
Guaranteed:
(U
IN
* −1.5 V) ≤ V
out
≤ U
IN
* with I
out
≤ 100 mA
Switching
behavior
Features
Electrical
values
CLV61x
Serial Aux
(RS-232)
CDB620
U
IN
* = DC 10 V to 30 V
CMC600
U
IN
*
The CLV61x indicates the switching status of its
logical "external output 2" via the serial Aux data
interface.
Software-controlled, the status is automatically
taken over by the CMC600 via the cable and
converted to the physical "Out 2" output in the
CDB620.
"External
output 2"
24Out 2
22
GND
6Shield

Other manuals for SICK CLV61 Series

Related product manuals