EasyManua.ls Logo

Siemens milltronics MFA 4P - Page 10

Siemens milltronics MFA 4P
36 pages
Print Icon
To Next Page IconTo Next Page
To Next Page IconTo Next Page
To Previous Page IconTo Previous Page
To Previous Page IconTo Previous Page
Loading...
Page 6 MFA 4p - INSTRUCTION MANUAL 7ML19985FM01
mmmmm
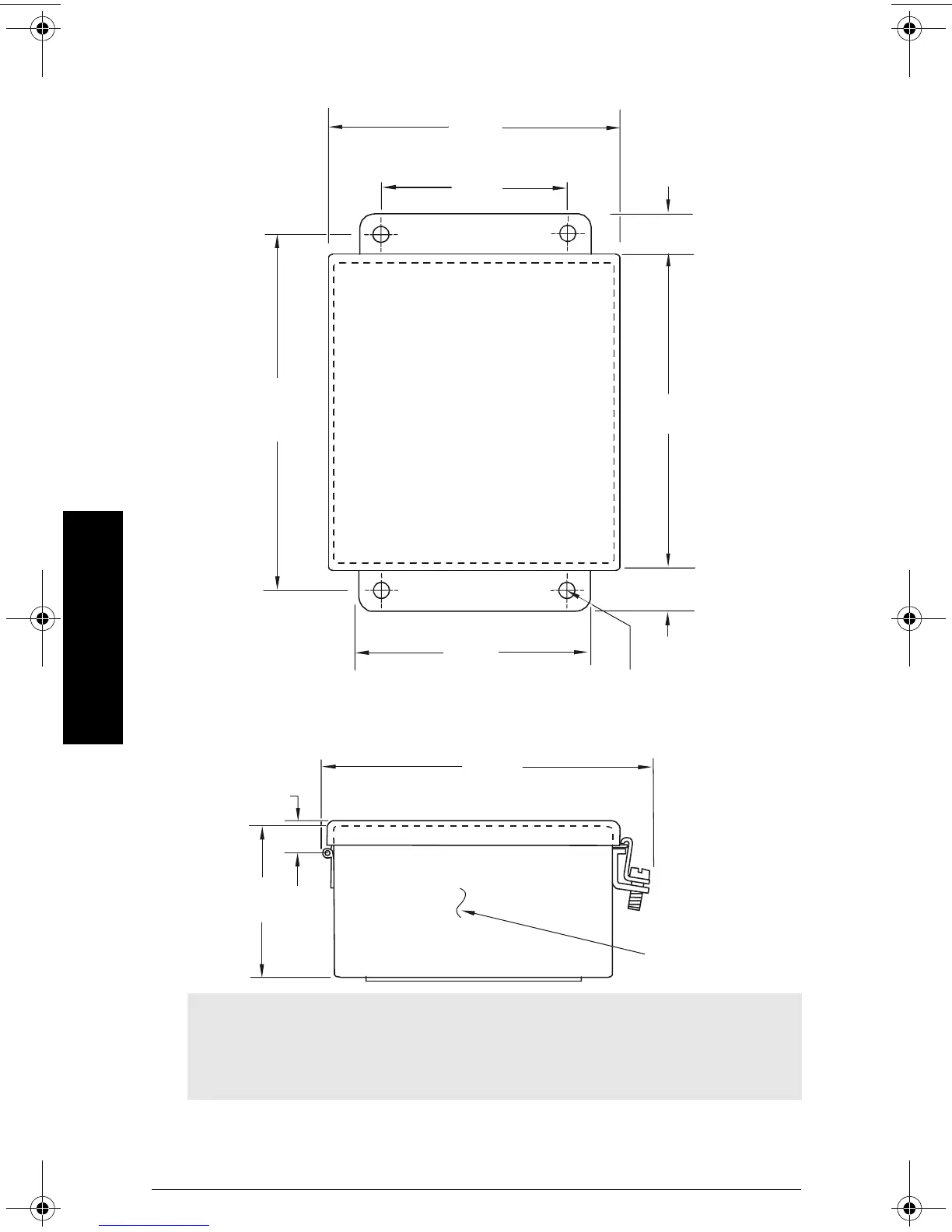
Installation
Type 4 / NEMA 4 / IP65 Painted Steel Enclosure &
Type 4X / NEMA 4X / IP65 Stainless Steel Enclosure
Notes:
Painted steel enclosure does not provide grounding between conduit
connections: use grounding type bushings and jumpers.
Use only approved, suitable size hubs for watertight application.
203 mm
(8.0”)
152 mm
(6.0”)
19 mm
(0.75”)
273 mm
(10.75”)
254 mm
(10.0”)
178 mm
(7.0”)
8 mm
(0.31”)
19 mm
(0.75”)
227 mm
(8.94”)
102 mm
(4.0”)
21 mm
(0.83”)
suitable location for
Conduit Entrance
(customer specified)
7ML19985FM01.book Page 6 Wednesday, May 21, 2008 2:17 PM

Other manuals for Siemens milltronics MFA 4P

Related product manuals