EasyManua.ls Logo

Siemens milltronics MFA 4P - Milltronics MFA 4 p Overview

Siemens milltronics MFA 4P
36 pages
Print Icon
To Next Page IconTo Next Page
To Next Page IconTo Next Page
To Previous Page IconTo Previous Page
To Previous Page IconTo Previous Page
Loading...
7ML19985FM01 MFA 4p - INSTRUCTION MANUAL Page 5
mmmmm
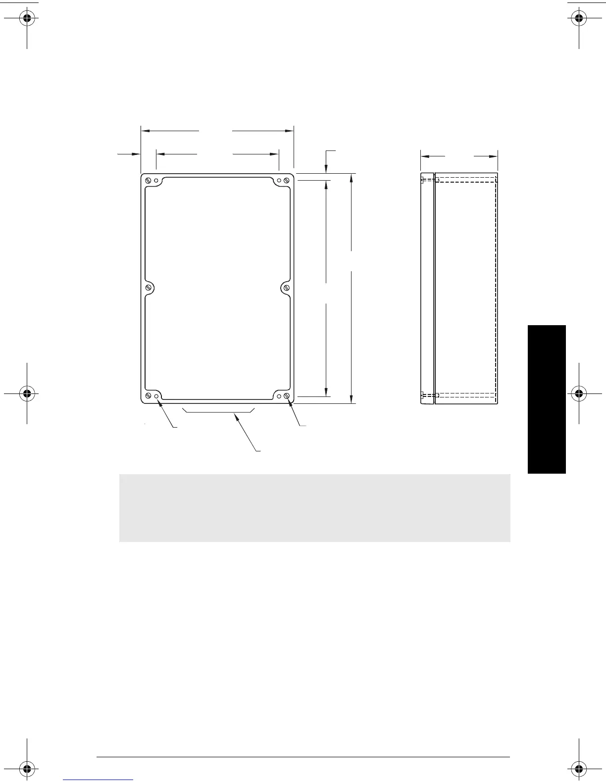
Installation
Dimensions
MFA 4p
Type 4X / NEMA 4X / IP65 Polycarbonate Enclosure
Notes:
Non-metallic enclosure does not provide grounding between conduit
connections: use grounding type bushings and jumpers.
Use only approved, suitable size hubs for watertight application.
160 mm
(6.325")
131 mm
(5.138")
15mm
(0.59")
6 mm
(0.25")
82 mm
(3.225")
240 mm
(9.455")
228 mm
(8.975")
lid screws
mounting holes
4.3 mm (0.170")
dia. 4 places
Suitable location for conduit entrance
7ML19985FM01.book Page 5 Wednesday, May 21, 2008 2:17 PM

Other manuals for Siemens milltronics MFA 4P

Related product manuals