EasyManua.ls Logo

Siemens SIRIUS 3RA

Siemens SIRIUS 3RA
166 pages
To Next Page IconTo Next Page
To Next Page IconTo Next Page
To Previous Page IconTo Previous Page
To Previous Page IconTo Previous Page
Loading...
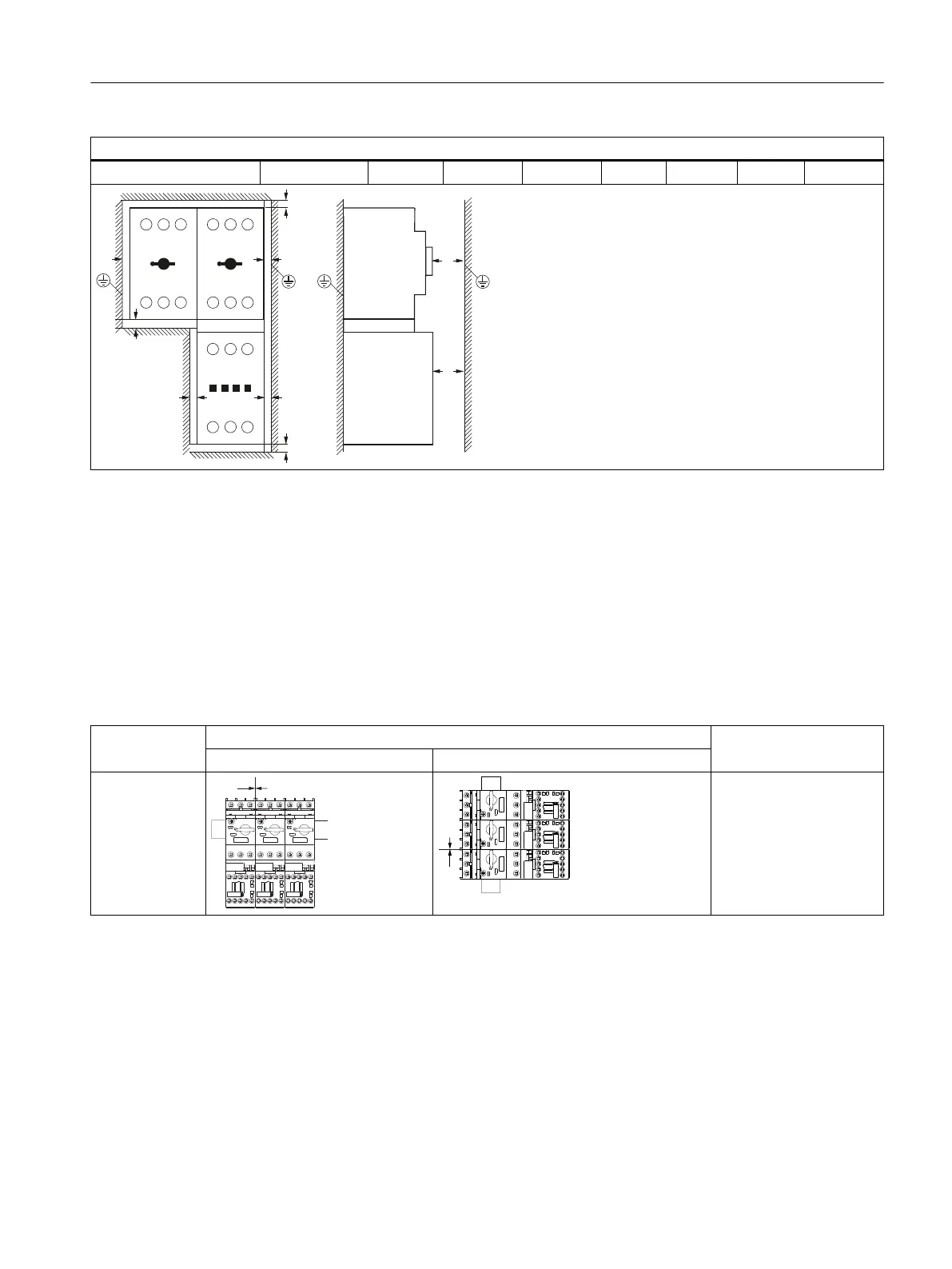
Clearance from grounded or live parts as well as cable ducts made from insulation material according to IEC 60947-4-1
Limiter + 3RV2.4
2)
3RT204
3)
220 30 30 30 0 40 220
3RV2..
3RT20..
1/L1 3/L2 5/L3
2/T1 4/T2 6/T3
1/L1 3/L2 5/L3
2/T1 4/T2 6/T3
3RV2..
3RT20..
B
3RV2..
Limiter
1/L1 3/L2 5/L3
2/T1 4/T2 6/T3
D
D
AE
M
B
K
H
1)
When installing in size S0 with a limiter, the base plate of the complete feeder must be insulated, and a 3RV2928‑1K phase
barrier must be mounted on the 3RV2 motor starter protector.
2)
When installing in size S3 with a limiter, a 3RV2928‑1K phase barrier must be installed on the 3RV2 motor starter protector.
3)
A DIN-rail adapter must be used if installed with a link module.
7.1.2 Mounting variants under di󹪜erent conditions and frequency of use
Direct-on-line starter/reversing starter (size S00, DIN rail or base plate)
I
e
, max Assembly Ambient
temperature T
a
Horizontal Vertical
1)
≤ 14 A
60 ℃
Mounting
7.1 Installation guidelines
SIRIUS 3RA Load Feeders
Equipment Manual, 02/2022, A5E03656507520A/RS-AC/004 35

Table of Contents

Related product manuals