EasyManua.ls Logo

Siemens SIRIUS 3RW30 - Page 179

Siemens SIRIUS 3RW30
204 pages
To Next Page IconTo Next Page
To Next Page IconTo Next Page
To Previous Page IconTo Previous Page
To Previous Page IconTo Previous Page
Loading...
Typical circuit diagrams
16.7 Reversing circuit
SIRIUS 3RW30 / 3RW40
Manual, 10/2018, NEB535199502000/RS-AB/005
179
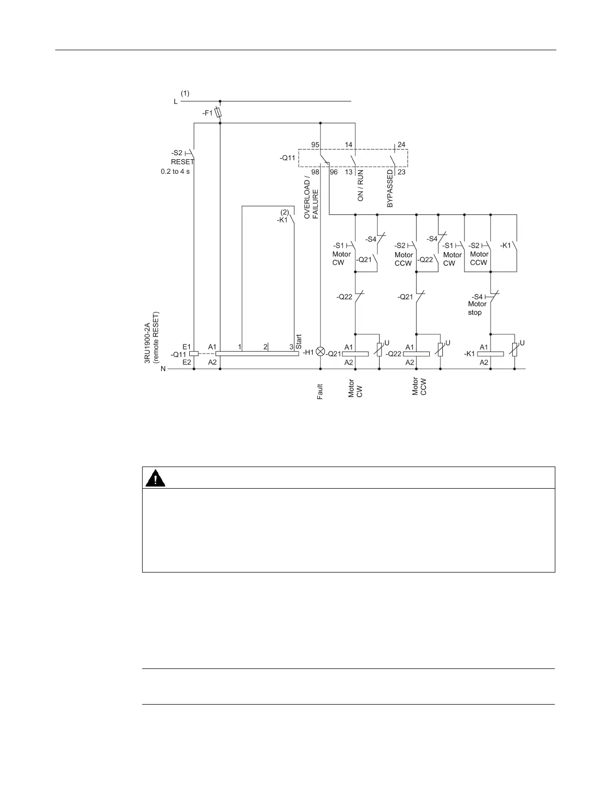
Figure 16-19 Wiring of the control circuit 3RW405 - 3RW407
(1) For permissible main and control voltage values (dependent on article number), refer to
chapter Technical data (Page 127).
WARNING
(2) Automatic restart. Can result in death, serious injury, or property damage.
The start command (e.g. issued by the PLC or switch S1) must be reset prior to issuing a
RESET command because the motor attempts to restart again automatically following this
RESET command if a start command is still present. This particularly applies if the motor
protection has tripped. For safety reasons, you are advised to integrate the group fault
output (terminals 95 and 96) in the controller.
(3) Alternatively, the motor feeder can be assembled as a fuseless or fused version with type
of coordination 1 or 2. For the assignment of fuses and switching devices, refer to chapter
Technical data (Page 127).
For the optional thermistor motor protection evaluation, refer to Typical circuit for the optional
thermistor motor protection evaluation (Page 161).
Note
No soft stop possible. Set the stopping time to 0 s with the potentiometer.

Table of Contents

Other manuals for Siemens SIRIUS 3RW30

Related product manuals