EasyManua.ls Logo

Siemens SIRIUS 3RW30 - 3 RW402 - 3 RW404 and Dahlander Motor Starting

Siemens SIRIUS 3RW30
204 pages
To Next Page IconTo Next Page
To Next Page IconTo Next Page
To Previous Page IconTo Previous Page
To Previous Page IconTo Previous Page
Loading...
Typical circuit diagrams
16.11 Dahlander / multispeed motor
SIRIUS 3RW30 / 3RW40
194 Manual, 10/2018, NEB535199502000/RS-AB/005
16.11.2
3RW402 - 3RW404 and Dahlander motor starting
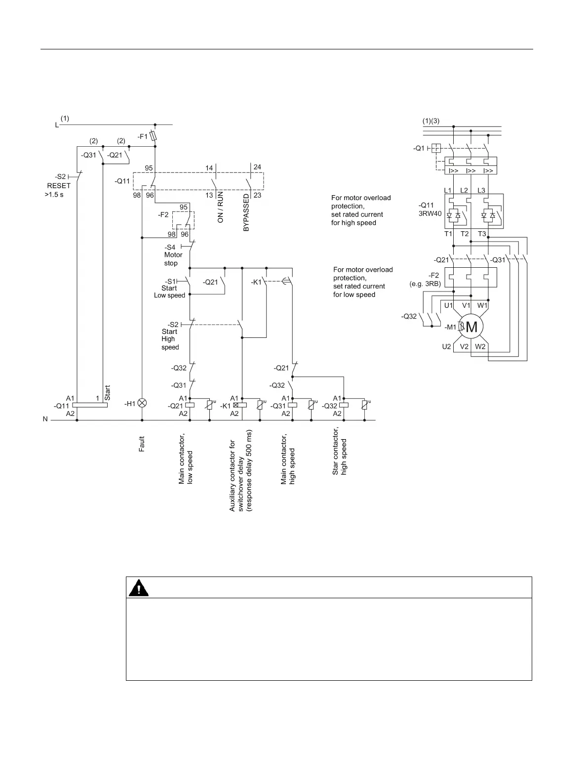
Figure 16-33 Wiring of the 3RW402 - 3RW404 control circuit and 3RW402 - 3RW407 main circuit
(1) For permissible main and control voltage values (dependent on article number), refer to
chapter Technical data (Page 127).
WARNING
(2) Automatic restart. Can result in death, serious injury, or property damage.
The start command (e.g. issued by the PLC or switch S1) must be reset prior to issuing a
RESET command because the motor attempts to restart again automatically following this
RESET command if a start command is still present. This particularly applies if the motor
protection has tripped. For safety reasons, you are advised to integrate the group fault
output (terminals 95 and 96) in the controller.

Table of Contents

Other manuals for Siemens SIRIUS 3RW30

Related product manuals