EasyManua.ls Logo

Smithco 45-204-C - Page 14

Default Icon
160 pages
Print Icon
To Next Page IconTo Next Page
To Next Page IconTo Next Page
To Previous Page IconTo Previous Page
To Previous Page IconTo Previous Page
Loading...
12
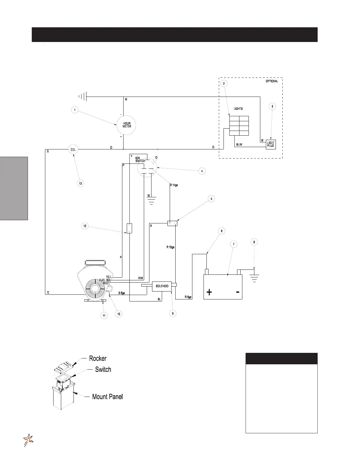
Diagrams
Color Code Chart
Bl Blue
Br Brown
Y Yellow
Grn Green
O Orange
R Red
B Black
P Purple
W White
WIRING DRAWING

Other manuals for Smithco 45-204-C

Related product manuals