EasyManua.ls Logo

Sony MXD-D3 - Printed Wiring Board - SW Board; Schematic Diagram - SW Board; Schematic Diagram - TRANS Board

Sony MXD-D3
88 pages
Print Icon
To Next Page IconTo Next Page
To Next Page IconTo Next Page
To Previous Page IconTo Previous Page
To Previous Page IconTo Previous Page
Loading...
5555
MXD-D3
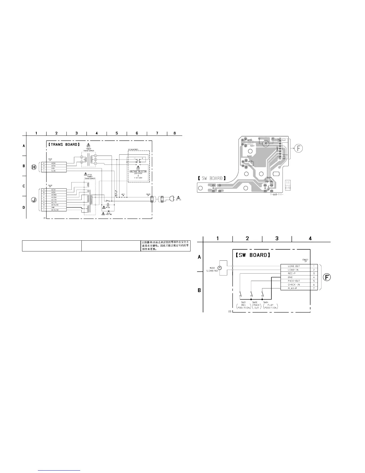
6-15. SCHEMATIC DIAGRAM – TRANS Board – 6-16. PRINTED WIRING BOARD – SW Board – See page 41 for Circuit Boards Location.
6-17. SCHEMATIC DIAGRAM – SW Board –
MXD-D3 SW
05
M203
(LOADING)
(PACK OUT)
(REC POSITION)
PLAY
The components identified by mark 0 or dotted
line with mark 0 are critical for safety.
Replace only with part number specified.
Les composants identifiés par une marque 0 sont
critiques pour la sécurité. Ne les remplacer que
par une pièce portant le numéro spécifié.
Note on Schematic Diagram:
Voltages and waveforms are dc with respect to ground
under no-signal conditions.
no mark : MD PLAY
(Page 47)
(Page 47)
(Page 51)
(Page 48)

Other manuals for Sony MXD-D3

Related product manuals