EasyManua.ls Logo

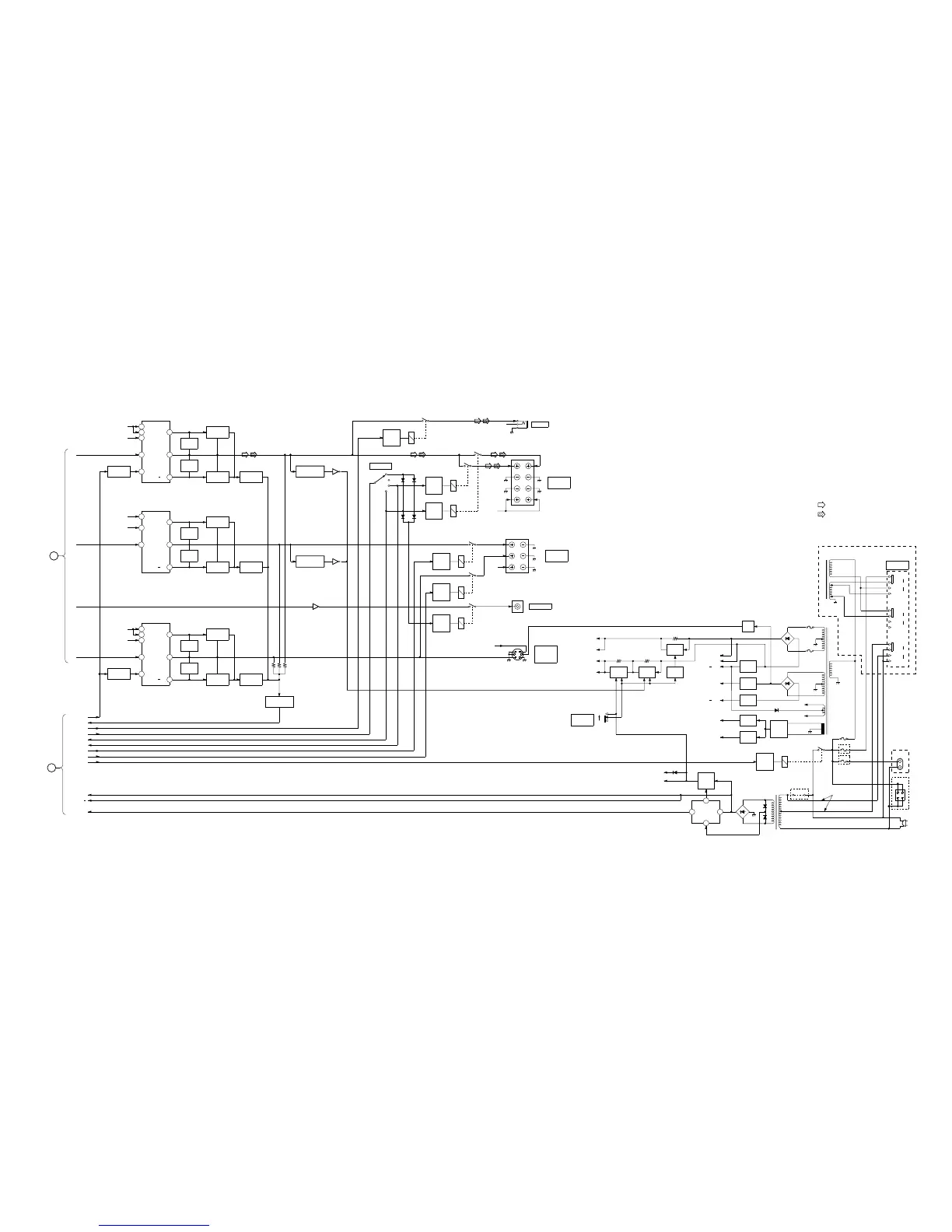
Sony STR-DE915 - Block Diagram - Power Section; Power Section Block Diagram

Sony STR-DE915
56 pages
Print Icon
To Next Page IconTo Next Page
To Next Page IconTo Next Page
To Previous Page IconTo Previous Page
To Previous Page IconTo Previous Page
Loading...
STR-DE915/TA-V909/VE910
2-4. BLOCK DIAGRAM POWER SECTION
13 14 15
RELAY
DRIVE
Q410
PROTECT
REG
Q801
LIMITER
Q504
MUTE
Q503,504
14
5
15
6
1
2
3
VEE
VCC
IN
MUT
+VE
NF
VE
13 VCC
POWER AMP
IC501
FL
+VDD
-VDD
LIMITER
Q505
BOOSTER
Q506
BOOSTER
Q507
CUR DET
Q508
PROTECTOR
Q509,510
Q511
LIMITER
Q604
2
7
6
5
VEE
IN
+VE
NF
VE
9 VCC
POWER AMP
IC601
C
+VDD
-VDD
LIMITER
Q605
BOOSTER
Q606
BOOSTER
Q607
CUR DET
Q608
PROTECTOR
Q609,610
Q611
LIMITER
Q704
MUTE
Q701,703
14
5
15
6
1
2
3
VEE
VCC
IN
MUT
+VE
NF
VE
13 VCC
POWER AMP
IC701
SL
AVCC
AVEE
LIMITER
Q705
BOOSTER
Q706
BOOSTER
Q706
CUR DET
Q708
1
RY602
RELAY
DRIVE
Q546
RY501
RELAY
DRIVE
Q596
RY502
B
A
A+B
OFF
S155
SPEAKERS
RELAY
DRIVE
Q645
RY601
RELAY
DRIVE
Q745
RY701
RELAY
DRIVE
Q544
RY503
RELAY
DRIVE
Q901
RY901
SW
WOOFER AMP
IC602
3
1
J501
C
S(L)
S(R)
R CH
R CH
WIRELESS
REAR
SPEAKER
CNJ701
SURROUND
SPEAKER
WOOFER
J701
PHONS
TM701
FRONT
SPEAKER
TM501
R CH
R CH
POWER
CONT
IC901
58
3
6
DELAY
+B SW
Q902
REG
IC801
REG
IC803
REG
Q748
D801,851
REG
IC401
REG
IC402
RECT
D402
SWITCH
Q614,618
INV SW
Q617
SWITCH
Q613,616
SWITCH
Q612,615
PROTECTOR
Q547-549
RY H
RY F
SP B
SP A
RY C
RY S
RY PW
PY RY +
PW RY
STOP
E
TO
(1/3)
F
TO
(1/3)
VCC
VEE
35V
+12V
12V
5V/A
5V/D
D806 F2
F1
+5V
+5.6V
D142
F950
F951
D802-805
+VDD
AVCC
VDD
AVEE
IMPEDANCE
SELECTOR
8
4
S501
T901
T901
120V
0V
100V
120V
0V
120V
240V
220V
120V
240V
220V
120V
240V
220V
F901
F903
F902
E, PX MODEL
JW901
EXCEPT
E, PX MODEL
T902
D901-904
E, PX
MODEL
CNJ909
CNJ901
CNP901
AC IN
AC MUTE
L
R
EXCEPT
US, Canadian, PX,
Chinese MODEL
EXCEPT
US, Canadian,
PX, Chinese MODEL
US, Canadian,
PX, Chinese MODEL
VOLTAGE
SELECTOR
E, PX MODEL
S902
Signal path
: FM
: CD(ANALOG)

Other manuals for Sony STR-DE915

Related product manuals