EasyManua.ls Logo

Supermicro PDSBA - Page 33

Supermicro PDSBA
86 pages
Print Icon
To Next Page IconTo Next Page
To Next Page IconTo Next Page
To Previous Page IconTo Previous Page
To Previous Page IconTo Previous Page
Loading...
Chapter 2: Installation
2-13
S
UPER PDSBA+
®
Processor
JPWAKE
4-PinPWR
KB/MS
USB3/4/5/6
USB1/2
LAN
Fan3
Clock
Intel
North Bridge
PCI-E x1
PCI-E x16
PCI-E x4
PCI-33MHz
LAN
CTRL
JPL1
COM2
FWH
JL1
JWOR
I-SATA0
I-SATA1
F
P CT
RL
F
a
n
2
Buzzer
2
4-Pin
ATX PWR
Supe
r IO
Fan1/CPU Fan
Intel
J44
DIMM#1A (Blue)
DIMM#2A (Black)
DIMM#1B (Blue)
DIMM#2B (Black)
Floppy
Audio
WOL
JBT1
South Bridge
J12
Battery
J
PUSB1
J
PUSB2
COM1
JFSB1
JFSB2
Slot7
Slot6
Slot5
Slot4
JI
2
C1
JI
2
C2
PCI-33MHz
Slot3
PCI-33MHz
Slot2
Slot1
PCI-33MHz
J9
I-SATA4
I-SATA5
RAIDLED
USB7/8
J45
USB9/10
LE1
JLED
JWD
CD1
Parallel Port
VGA
HDA
IDE#2
IDE#1
ITE
J
P2
JP3
Fan Headers
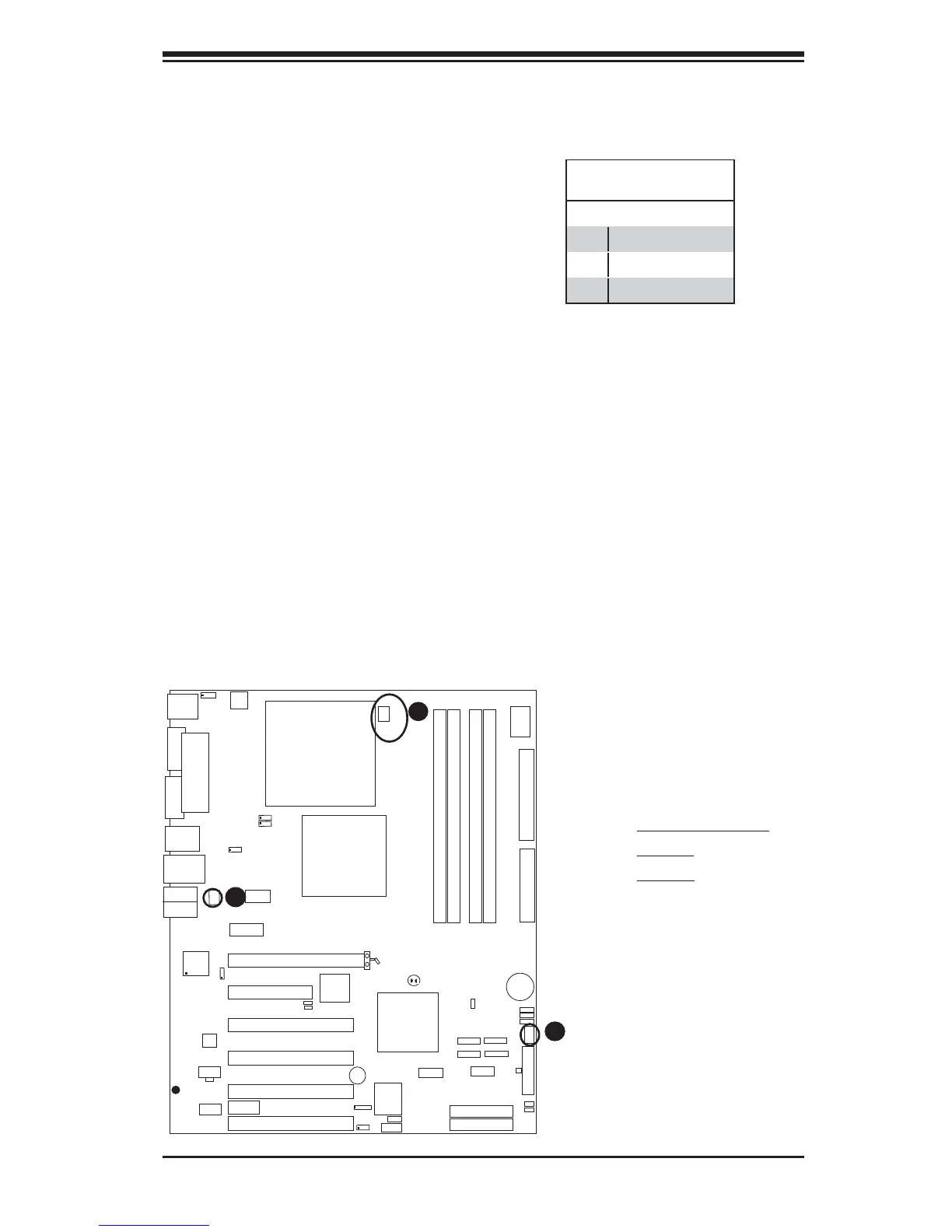
The PDSBA-Q+/PDSBA+/PDSBA/PDSBE
has three chassis fan headers (Fan1 to
Fan3). Fan 1 is the CPU Fan. Fan 2 and
Fan 3 are system/chassis fans. (Note: all
these fans are 4-pin fans. However, Pins
1-3 of these fan headers are backward
compatible with the traditional 3-pin fans.
For proper cooling, please use all 3-pin fans
on the motherboard.) See the table on the
right for pin defi nitions.
Fan Header
Pin Defi nitions
Pin# Defi nition
1 Ground
2 +12V
3 Tachometer
B
C
A
A. Fan 1 (CPU Fan)
B. Fan 2
C. Fan 3

Table of Contents

Related product manuals