EasyManua.ls Logo

Supermicro SuperServer E403-9P-FN2T - Motherboard Layout

Supermicro SuperServer E403-9P-FN2T
144 pages
To Next Page IconTo Next Page
To Next Page IconTo Next Page
To Previous Page IconTo Previous Page
To Previous Page IconTo Previous Page
Loading...
13
Chapter 1: Introduction
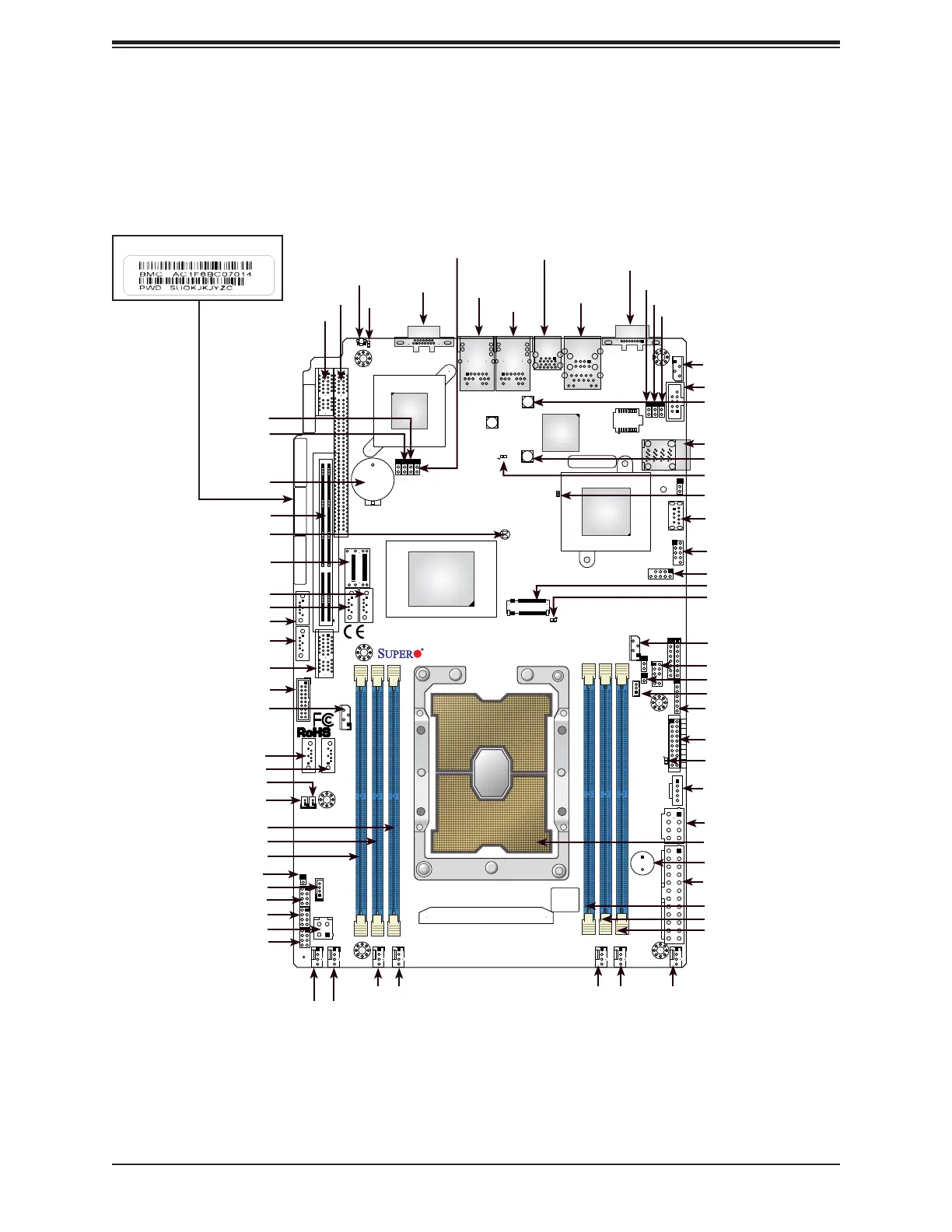
Figure 1-4. Motherboard Layout
1.5 Motherboard Layout

the table on the following page for descriptions. For detailed descriptions, pinout information

JTPM1
SAN MAC
SAS CODE
PRESS FIT
JPWR3
JSD2
JSD1
JBT1
JNVI2C1
JRK1
MH11
MH10
JSTBY1
BT1
+
LEDS1
JD1
JP2
JP3
I-SGPIO1
S-SGPIO1
I-SGPIO2
I-SATA3
I-SATA2
I-SATA1
I-SATA0
S-SATA1
S-SATA0
JPWR2
JPWR1
SXB2
IPMI CODE
FAN6
FAN7
FAN5
FAN3
FAN4
FAN2
FAN1
LE2
LEDM1
LE3
LE1
JP4
JPSAS1
JPS1
JP1
JPG1
JWD1
JPME2
JPTG1
JOH1
JF1
JPI2C1
BIOS LICENSE
DESIGNED IN USA
MAC CODE
X11SPW-CTF/-TF
REV: 1.02
BAR CODE
M.2 PCI-E 3.0 X4
USB6
USB4/5
SXB1C
SXB1B
SXB1A
USB10/11(3.0)
JIPMB1
USB7/8(3.0)
USB9(3.0)
USB2/3
COM2
I-SATA 4-7
LAN2
VGA
CPU
LAN1
DIMMB1
LEDLED12LEDFAIL
ON
DIMMA1
NMIXPWRHDDNICNICUIDPSRSTPWR
DIMMF1
DIMME1
DIMMD1
DIMMC1
IPMI_LAN
USB0/1
COM1
SP1
LSI3008
(-CTF only)
Intel
C622
ASpeed
AST2500
Intel
X557
JUIDB1
JL1
L-SAS0-3
IPMI_LAN
USB0/1
LAN1
USB7/8 (3.0)
LAN2
COM1
VGA
JUIDB1
LE1
JPTG1
JTPM1
COM2
JPWR2
JPWR1
JF1
JPI
2
C1
FAN2 FAN1
LE3
FAN5 FAN4
USB10/11 (3.0)
USB4/5
USB6
FAN6
DIMMA1
DIMMD1
DIMMC1
DIMMB1
SP1
JWD1
JSTBY1
BT1
JBT1
S-SATA0
S-SATA1
JSD1
I-SGPIO1
I-SGPIO2
JPWR3
JIMPB1
MH11
JPG1
LEDM1
I-SATA3
SXB1C
JL1
FAN3
LE2
JD1
JOH1
FAN7
S-SGPIO1
JRK1
JSD2
I-SATA2
I-SATA0
I-SATA1
I-SATA4-7
USB2/3
JPS1
JPSAS1
L-SAS0-3
MH10
LEDS1
USB9 (3.0)
SXB1B
SXB1A
SXB2
DIMME1
DIMMF1
M.2
JNVI
2
C1
JPME2
CPU
BMC Password Label

Table of Contents

Related product manuals