EasyManua.ls Logo

THOMSON 510059 - E - Uso con Automatismos de Otras Marcas

THOMSON 510059
Print Icon
To Next Page IconTo Next Page
To Next Page IconTo Next Page
To Previous Page IconTo Previous Page
To Previous Page IconTo Previous Page
Loading...
KIT SOLAR UNIVERSAL DE 12-24 V
ES
10
www.mythomson.com
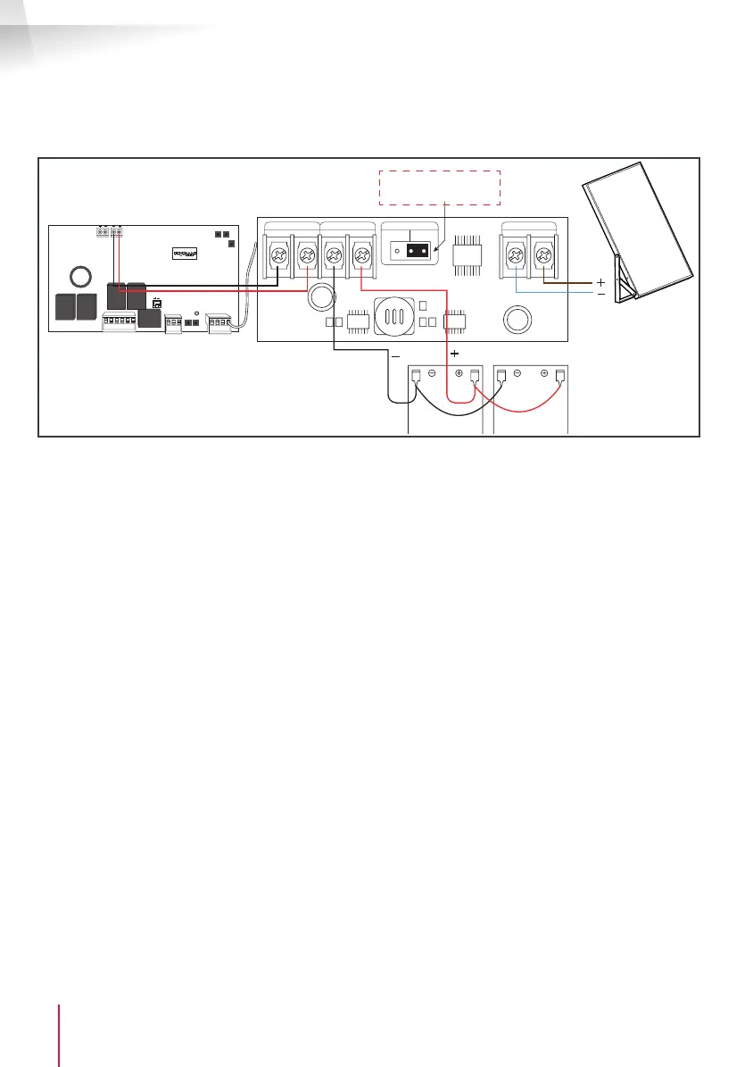
D - CONEXIÓN GENERAL
E - USO CON AUTOMATISMOS DE OTRAS MARCAS
12 VSW200D2S Conexión en paralelo de las baterías
No conectar nada a SOL - /+ de la tarjeta
OC1
LD1
ON
12345678
DP
OC2
-M2+ -M1+ -Warm+
RF1
RF2 AUTO
+12V
NC
COM
GND
O/C1 O/C2
GND ANT
SOLAR
PANEL
BAT
COM4
MOTORISATION BATTERYVOLTA GE
24V 12V
SOLAR IN
PONER EL
CONMUTADOR EN 12 V
de las baterías
Este kit de alimentación puede usarse con automatismos de cancela de marcas competidoras de la
empresa Avidsen compatibles con un panel solar.
Los automatismos deben funcionar obligatoriamente con una tensión exclusiva de 12 V CC o 24 V CC.
Cualquier otra tensión no permitirá el uso de este kit solar.
Asegúrese de que la tarjeta electrónica disponga de una entrada prevista para una batería de emergencia.
CUIDADO CON LA POLARIDAD DE LA CONEXIÓN.
Consulte estas instrucciones en cualquier circunstancia para el cablear el kit solar.
Es preferible que la tarjeta electrónica se ponga en suspensión al cabo de un tiempo especíco para limitar
el consumo de corriente (consultar los datos técnicos de la tarjeta electrónica para más información).
Es posible que la motorización limite ciertas funciones en caso de una alimentación con batería. En caso
de pérdida de accesorios o de otras funciones, asegúrese de que la causa no sea esta.
En caso de descarga prematura de las baterías, asegúrese de que ningún accesorio externo use la tarjeta
como medio de alimentación (módulo de control, placa externa del videoportero, etc.). Si se diera el
caso, sería necesario conectarlos a la tarjeta electrónica.

Table of Contents