EasyManua.ls Logo

THOMSON 510059 - Using with Other Automatic Opener Brands

THOMSON 510059
Print Icon
To Next Page IconTo Next Page
To Next Page IconTo Next Page
To Previous Page IconTo Previous Page
To Previous Page IconTo Previous Page
Loading...
12-24V UNIVERSAL SOLAR KIT
EN
10
www.mythomson.com
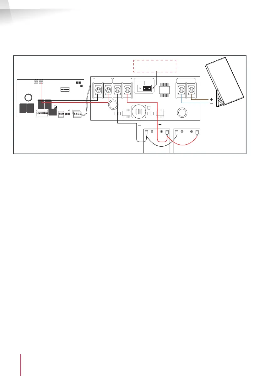
D - GENERAL CONNECTION
E - USING WITH OTHER AUTOMATIC OPENER BRANDS
12V SW200D2S Parallel battery connection
Do not connect anything to card’s GROUND - /+
OC1
LD1
ON
12345678
DP
OC2
-M2+ -M1+ -Warm+
RF1
RF2 AUTO
+12V
NC
COM
GND
O/C1 O/C2
GND ANT
SOLAR
PANEL
BAT
COM4
MOTORISATION BATTERYVOLTA GE
24V 12V
SOLAR IN
SET THE SWITCH
TO 12V
batteries
This power kit can be used with solar-compatible automatic gate openers from brands other than
Avidsen.
Automatic openers must operate exclusively on 12VDC or 24VDC voltage.
This solar kit cannot be used with any other voltage.
Make sure that the circuit board has a backup battery input.
PAY ATTENTION TO THE CONNECTION POLARITY.
Please refer to this manual at all times for wiring the solar kit.
It is best if the circuit board goes into standby mode after a certain amount of time in order to limit power
consumption (refer to the circuit board’s technical specications for more details).
The motor drive may restrict some functionality when running on battery power. If some accessories or
other functions stop working, make sure this is not the cause.
If batteries discharge faster than expected, make sure that no external accessory is using the board for
power (control module, intercom panel, videophone, etc.). If this is the case, you will need to disconnect
them from the circuit board.

Table of Contents