EasyManua.ls Logo

THOMSON 510059 - Utilização Com Automatismos de Outras Marcas

THOMSON 510059
Print Icon
To Next Page IconTo Next Page
To Next Page IconTo Next Page
To Previous Page IconTo Previous Page
To Previous Page IconTo Previous Page
Loading...
KIT SOLAR UNIVERSAL 12-24 V
PT
10
www.mythomson.com
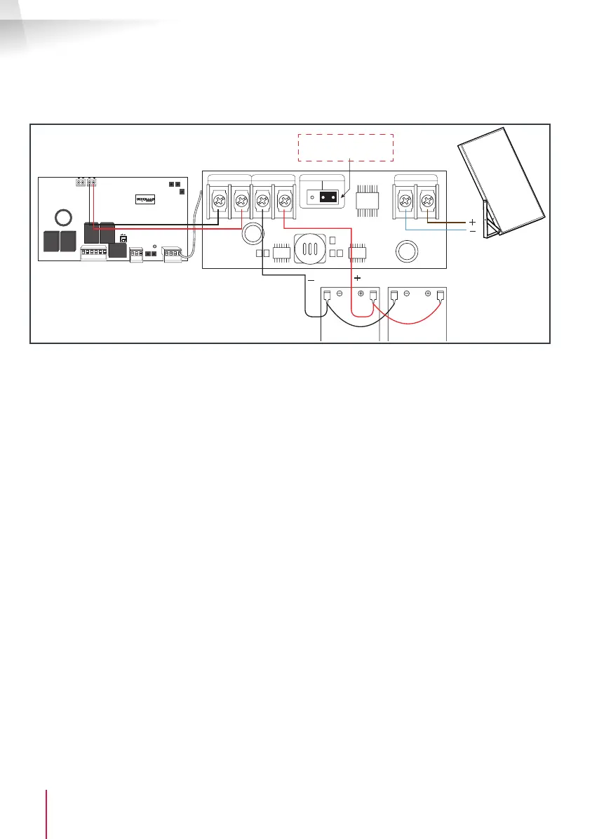
D - LIGAÇÕES GERAIS
E - UTILIZAÇÃO COM AUTOMATISMOS DE OUTRAS MARCAS
12 V SW200D2S Ligação em paralelo das baterias
Não ligar nada à saída SOL -/+ da placa
OC1
LD1
ON
12345678
DP
OC2
-M2+ -M1+ -Warm+
RF1
RF2 AUTO
+12V
NC
COM
GND
O/C1 O/C2
GND ANT
SOLAR
PANEL
BAT
COM4
MOTORISATION BATTERYVOLTA GE
24V 12V
SOLAR IN
COLOCAR O
INTERRUPTOR EM 12 V
baterias
Este kit de alimentação pode ser utilizado com automatismos de portão de marcas concorrentes da
empresa Avidsen compatíveis com energia solar.
Os automatismos devem funcionar imperativamente a uma tensão exclusiva de 12 V CC ou 24 V CC.
Qualquer outra tensão não permitirá a utilização deste kit solar.
Assegure-se de que a placa de circuitos possui uma entrada preparada para uma bateria de socorro.
ATENÇÃO À POLARIDADE DAS LIGAÇÕES.
Consulte sempre o presente manual para manusear a cablagem do kit solar.
É preferível que a placa de circuitos entre em modo de espera após um determinado tempo, a m de
limitar o consumo de energia (para mais detalhes, consultar os dados técnicos da placa de circuitos em
questão).
É possível que a motorização possa limitar algumas das suas funcionalidades em caso de alimentação
por bateria. Em caso de perda de acessórios ou outras funções, assegure-se de que tal não é resultado
desse facto.
Em caso de descarga prematura das baterias, certique-se de que nenhum acessório externo utiliza a
placa como fonte de alimentação (módulo de comando, painel da rua para videofone, etc.). Se for esse o
caso, será necessário desligá-los da placa de circuitos.

Table of Contents