EasyManua.ls Logo

Trane Precedent TSK036 Series - Piping Diagrams

Trane Precedent TSK036 Series
92 pages
Print Icon
To Next Page IconTo Next Page
To Next Page IconTo Next Page
To Previous Page IconTo Previous Page
To Previous Page IconTo Previous Page
Loading...
80
RT-SVX092A-EN
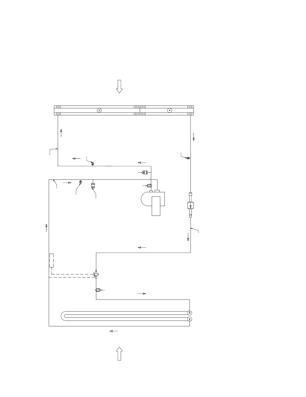
Piping Diagrams
Figure 90. Piping diagram 3 to 5 tons standard efficiency (T/YSK036-060) and 3 to 5 ton high efficiency (T/YHK036-
060)
INDOOR COIL
AIR
SERVICE
VALVE
NOITCUS
LINE
LIQUID LINE
FITER DRIER
TXV
TXV BULB
EQUALIZING LINE
SERVICE
VALVE
AIR
OUTDOOR COIL
LOW
PRESSURE
CONTROL
DISCHARGE
LINE
COMPRESSOR
FROSTAT
D
DISCHARGE
LINE
THERMOSTAT
HIGH
PRESSURE
CONTROL
S
SERVICE
VALVE

Table of Contents

Related product manuals