EasyManua.ls Logo

Trane Precedent TSK036 Series - Page 81

Trane Precedent TSK036 Series
92 pages
Print Icon
To Next Page IconTo Next Page
To Next Page IconTo Next Page
To Previous Page IconTo Previous Page
To Previous Page IconTo Previous Page
Loading...
RT-SVX092A-EN
81
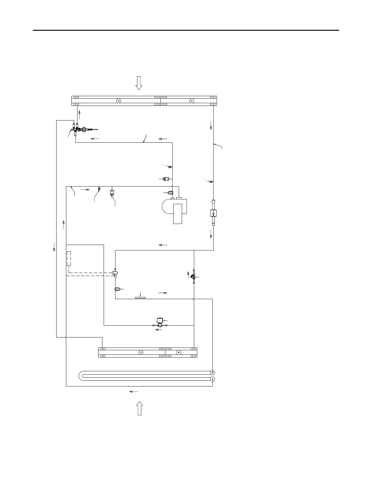
Figure 91. Piping diagram 3 to 5 tons standard efficiency (T/YSK036-060) and 3 to 5 ton high efficiency (T/YHK036-
060) - hot gas reheat
SOLENOID
VALVE
BLEED TUBE
M
odulating 3 Way Valve
A
B
INDOOR COIL
AIR
SERVICE
VALVE
N
OITCUS
LINE
LIQUID LINE
FILTER DRIER
TXV
TXV BULB
EQUALIZING LINE
AIR
OUTDOOR COIL
LOW
PRESSURE
CONTROL
COMPRESSOR
FROSTAT
D
DISCHARGE
LINE
THERMOSTAT
HIGH
PRESSURE
CONTROL
S
REHEAT
COIL
THERMISTOR
CHECK
VALVE
SERVICE
VALVE
DISCHARGE LINE
SERVICE
VALVE
Piping Diagrams

Table of Contents

Related product manuals