EasyManua.ls Logo

Tunaylar Load Line 2 - Page 44

Tunaylar Load Line 2
55 pages
Print Icon
To Next Page IconTo Next Page
To Next Page IconTo Next Page
To Previous Page IconTo Previous Page
To Previous Page IconTo Previous Page
Loading...
KM.LL2E.002
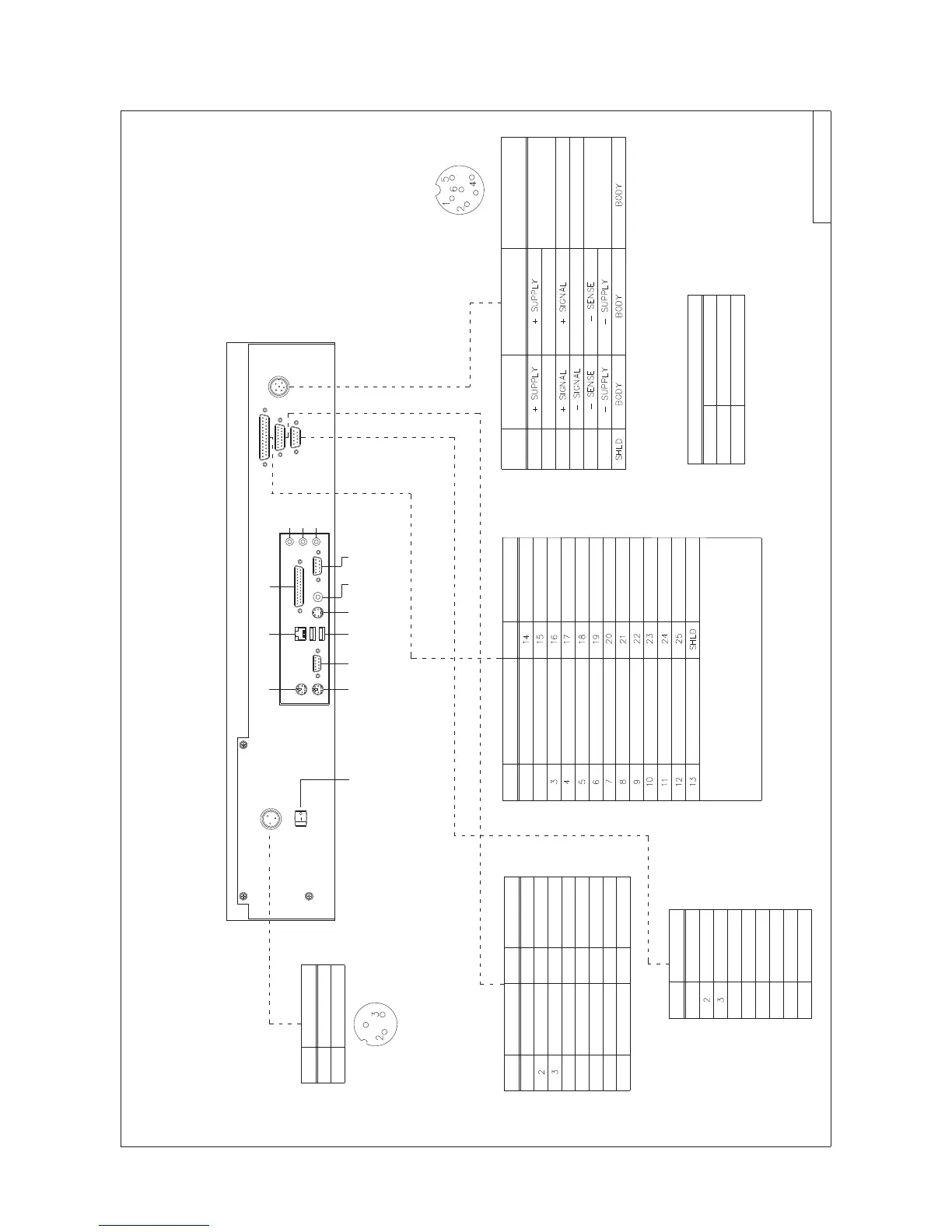
10. CABLE CONNECTIONS (TYPE WT, WT-S)
TYPE . LL2 WT-WTS
INPUT 4 D
OUT3 B OPTIC/RELAIS
MAX LIMIT FOR OPTIC OUTPUT ................... 300 mA
MAX LIMIT FOR RELAIS OUTPUT ..................... 1 A
MAX CURRENT FOR INPUT ........................... 5 mA
IPUT VOLTAGE FOR INPUT ............................. C + 5 VDC
OUT4 B OPTIC/RELAIS
OUT4 A OPTIC/RELAIS
+12 VDC
COM
D 0 VDCD 0 VDC
BODY
-
-
-
OUT1 B OPTIC/RELAIS
OUT2 A OPTIC/RELAIS
OUT2 B OPTIC/RELAIS
OUT3 A OPTIC/RELAIS
OUT1 A OPTIC/RELAIS
2
1
PIN
COM
COM
COM
MEANING MEANING
INPUT 2 C
INPUT 1 C
INPUT 1 D
INPUT 2 D
INPUT 3 C
INPUT 3 D
INPUT 4 C
PIN
0 VDC
+ SUPPLY / + SENSE
CABLE CONNECTOR(4WIRE)
+ SIGNAL
- SUPPLY / - SENSE
LOAD-CELL
CABLE CONNECTION(6WIRE)
5
6
3
4
2
1
PIN NO
+ SENS
MEANING
LOAD-CELL
+ SENS
- SIGNAL - SIGNAL
PIN
MEANING
3
9
NC
NC
1
TX1 OUT
NC
GND
RX1 IN
TX2 OUT/ RTS
RX2 IN / CTS
NC
6
8
7
4
5
COM 1/2
( DB9 MALE )
COM 3
( DB15 MALE )
I / O
( DB25 MALE )
LOAD-CELL
( MIC 6 )
COM3
SERIAL PORT / RS 422 / 485 - RS 232
ANOLOG OUTPUT
COM1/2
SERIAL PORT / RS 232
LOAD-CELL
I / O
J7 and J8
CLOSED - NETWORK
OPEN - FULL DUBLEX
CLOSED - HALF DUBLEX
RS 485 JUMPER SETTING
J7 and J8
J10 and J11
POWER
SWITCH
PS2_KB
PS2_MS
LAN RJ45
Parellel (LPT1)
VGA Out
USB
S-Video
RCA/SPDIF
COM1
Line-In
Line-Out
Microphone
SUPPLY
( MIC 3 )
NC
1
TX OUT / RS485 TX+
NC
GND
RX IN/ RS485 TX-
RTS / RS485 RX+
CTS / RS485 RX-
NC
6
8
7
4
5
PIN PIN
11
13
12
10
15
14
ANALOG OUT
RS485 RX-
GND
9
A GND OUT
RS485 RX+
RS485 TX-
RS485 TX+
MEANING MEANING
43
1
2
0 VDC
+12 VDC
1
PIN
MEANING
SUPPLY