EasyManua.ls Logo

TYM ET350 ECONO - Lifter Hydraulic Tube System

TYM ET350 ECONO
175 pages
Print Icon
To Next Page IconTo Next Page
To Next Page IconTo Next Page
To Previous Page IconTo Previous Page
To Previous Page IconTo Previous Page
Loading...
40
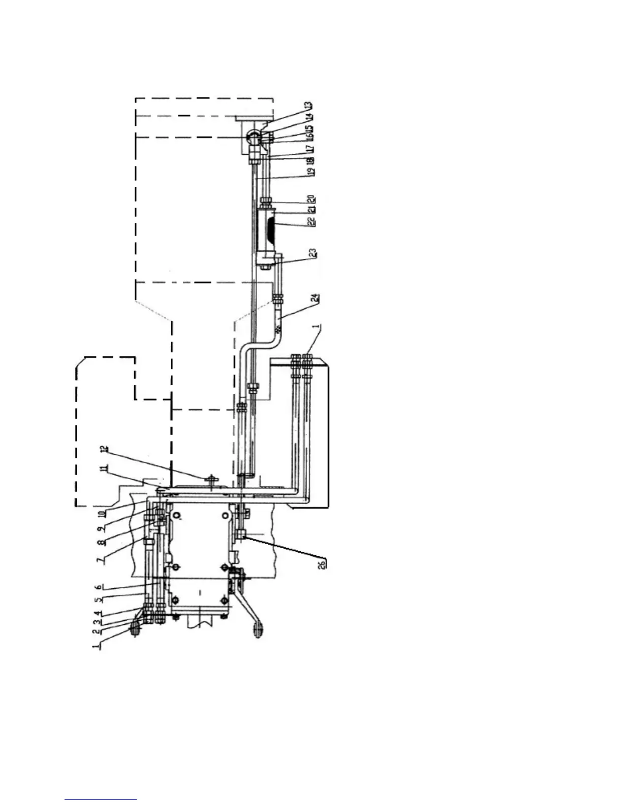
5-7 Lifter hydraulic tube line system (Fig. 5-9)
Fig. 5-9 Lifter hydraulic pipeline system
1.Plug M22X1.5 2. Multi-washer 22
3. Straight joint M18X1.5-M22X1.5
4. O-ring 16X2.4
5. Hydraulic PTO pipe assy I
6. Hydraulic PTO pipe assy II
7. Hydraulic PTO joint assy I
8. Cut-off valve
9. Hydraulic PTO joint assy II
10. Hydraulic PTO joint assy III
11. Hydraulic PTO joint assy IV
12. Implement lowering speed control valve
13. Gear pump
14. Union
15. Oil outlet joint
16. Hollow bolt M24X1.5X48
17. Hollow bolt M24X1.5X48
18. O-ring 28X2.4
19. Lifter front pressure oil tube assy
20. O-ring 24X2.4
21. Filter housing assy
22. Filter element assy
23. O-ring 55X3.1
24. Low pressure rubber hose assy
25. Quick joint
26. Lifter high pressure oil tube assy

Table of Contents

Related product manuals