EasyManua.ls Logo

Universal Radial 8 - Insertion Machine Assemblies

Universal Radial 8
27 pages
Print Icon
To Next Page IconTo Next Page
To Next Page IconTo Next Page
To Previous Page IconTo Previous Page
To Previous Page IconTo Previous Page
Loading...
Page 4
49379902 Rev. G Radial 8 & 88 Operation Reference Manual
This Document Supports IM-UPS 5.0 and Higher
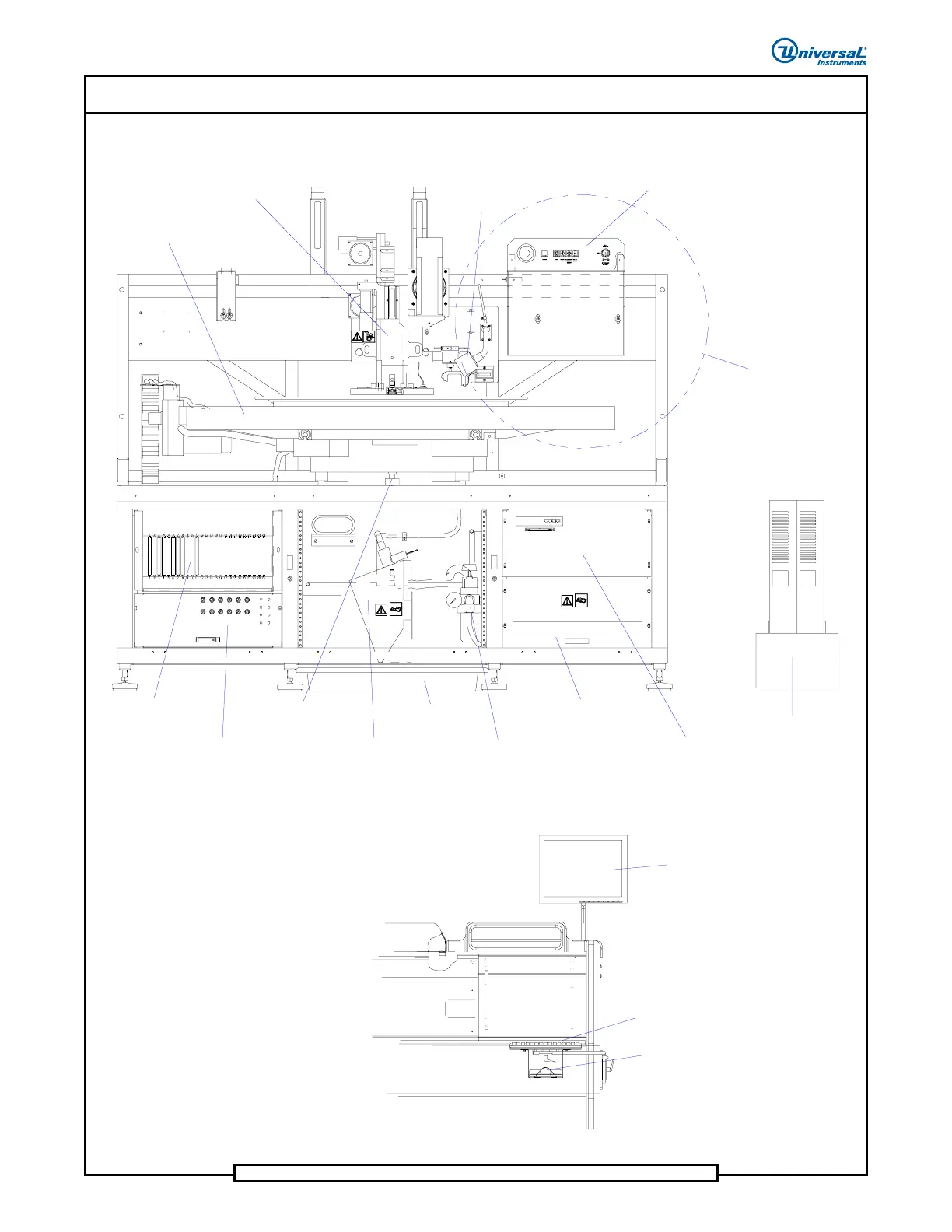
Insertion Machine Assemblies
VIEW A
Monitor
Keyboard
Trackball
Power Chassis
Assembly
Clinch Base/
Cutter Head
Scrap Tower
Assembly
Scrap Pan
Pneumatic Panel
Assembly
Expanded Range
Verifier Assembly
(optional)
VME/ATX Chassis
Assembly
UPS
Assembly
Positioning
System
Insertion Head
Assembly
Work Lamp
Push Button Panel
Assembly
I/O Box
Assembly
VIEW A
FRONT VIEW