EasyManua.ls Logo

Upright AB46 I - Page 71

Upright AB46 I
148 pages
Print Icon
To Next Page IconTo Next Page
To Next Page IconTo Next Page
To Previous Page IconTo Previous Page
To Previous Page IconTo Previous Page
Loading...
Schematics
Section
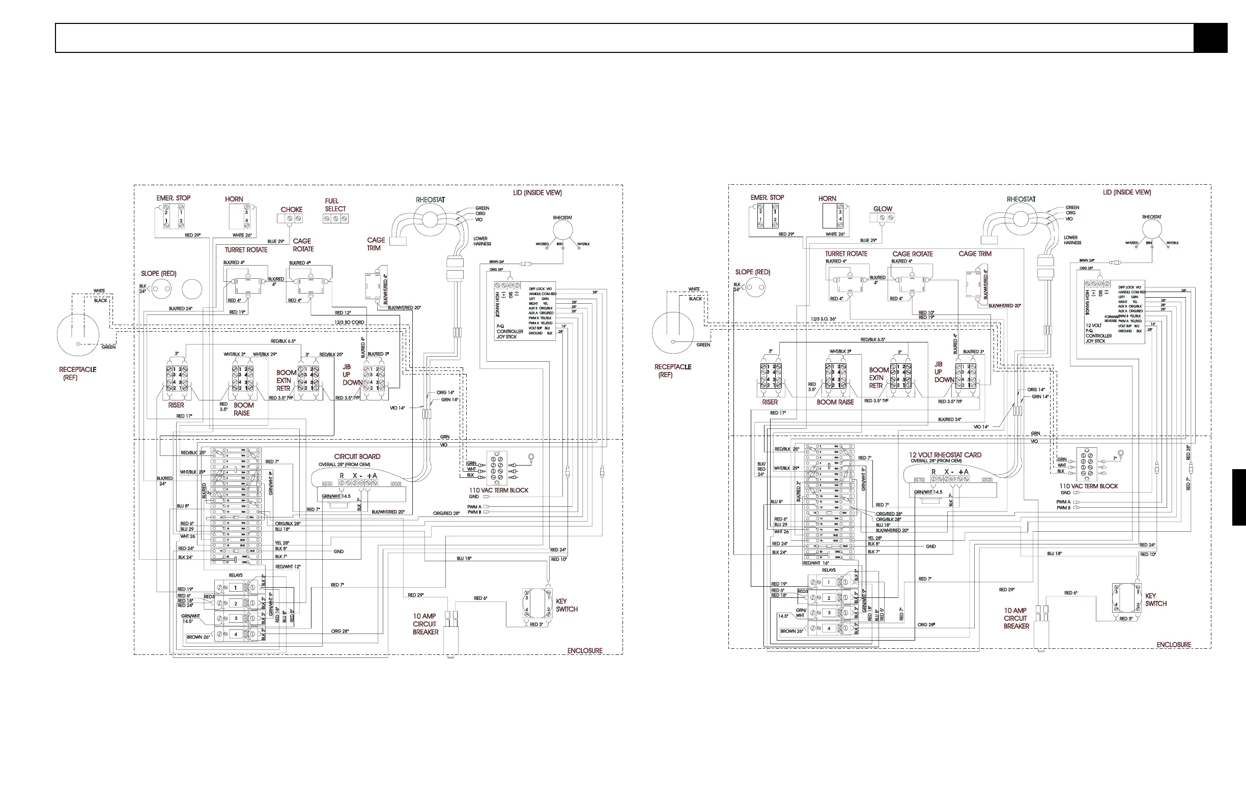
AB46 Work Platform 5-15
5.5
Figure 5-10: Electrical Diagram Upper Control Box - Gasoline Model
Figure 5-11: Electrical Diagram Upper Control Box - Diesel Model

Table of Contents

Related product manuals