EasyManua.ls Logo

Ventis HE250 - Page 10

Ventis HE250
91 pages
Print Icon
To Next Page IconTo Next Page
To Next Page IconTo Next Page
To Previous Page IconTo Previous Page
To Previous Page IconTo Previous Page
Loading...
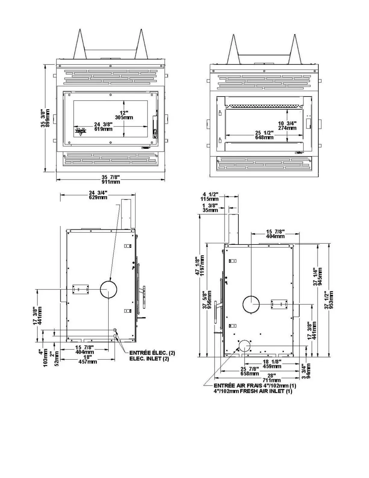
10 HE250 - Installation and Operation Manual
6”/142mm FORCED AIR
DISTRIBUTION KIT (3)

Table of Contents

Related product manuals