EasyManua.ls Logo

Vertiv Liebert DME22 - Refrigeration Piping and Refrigerant Charging

Vertiv Liebert DME22
134 pages
Print Icon
To Next Page IconTo Next Page
To Next Page IconTo Next Page
To Previous Page IconTo Previous Page
To Previous Page IconTo Previous Page
Loading...
Vertiv | Liebert® DM | User Manual 29
Mechanical Installation
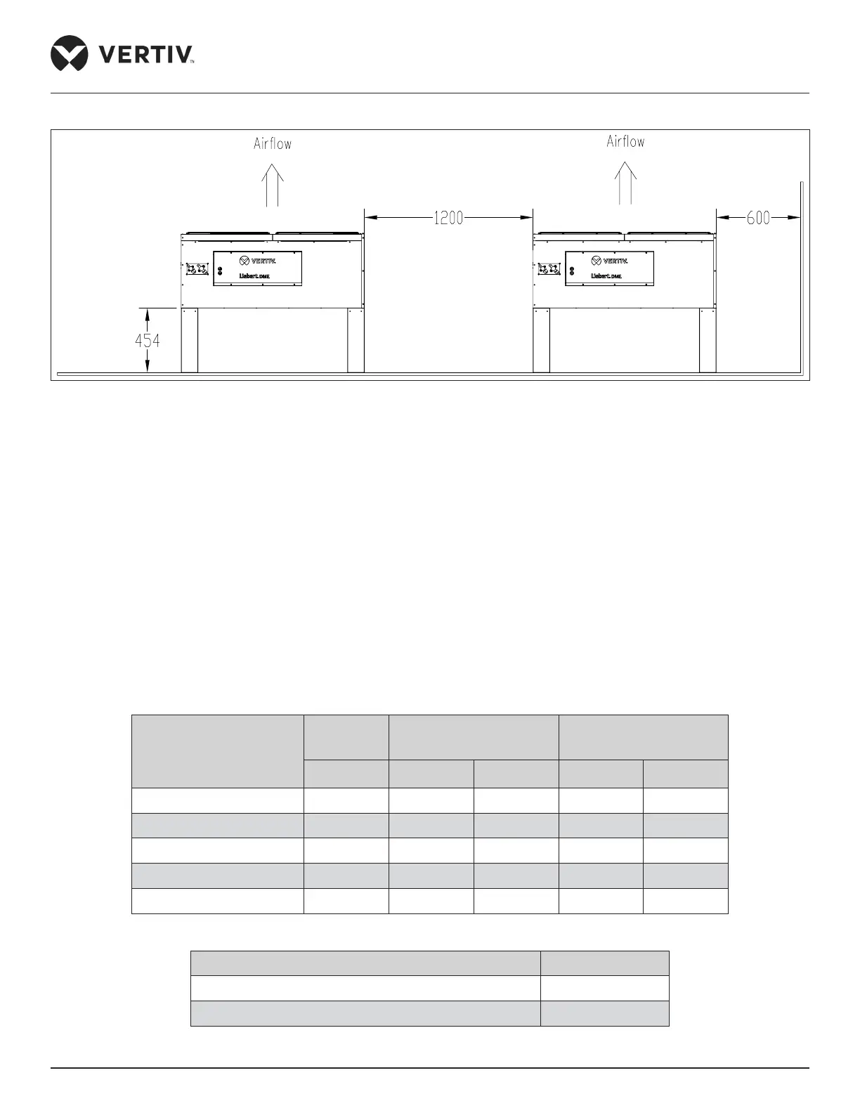
Figure 2-17 shows the horizontal installation of the multiple outdoor units (only for 22 kW and 27 kW).
Figure 2-17 Horizontal Installation of Multiple Outdoor Units
2.6.3. Refrigeration Piping Connection General Principles
1. Copper pipes with flare nut are used to connect the indoor and the outdoor units. If the pipe length exceeds the standard
pipe length given in Table 2-5 and straight copper pipe is used, then each joint of the piping must be brazed properly. Set
flow to the copper piping with nitrogen gas during the brazing process to prevent it from oxidation.
2. The selection, placement and fixation of piping, evacuation of the system and refrigerant charging are required to
operate according to industry standards.
3. The parameters such as pipeline pressure drop, compressor return oil, noise reduction, and vibration should be
considered in the design and construction process.
4. If the equivalent length exceeds 30 m, or the vertical height dierence between the indoor and the outdoor units exceeds
the values given in Table 2-6, consult Vertiv representative for technical support in installation design phase.
5. The equivalent lengths of the components are shown in Table 2-7. Consult Vertiv representative to confirm the suitability
as per the site conditions.
Table 2-5 Standard Copper Piping Size
Model
Pipe
Length
Discharge Pipe
OD
Liquid Pipe
OD
m inch mm inch mm
DME07M**UA1 5.0 1/2 12.7 3/8 9.5
DME12M**UA1 5.0 5/8 16 1/2 12.7
DME17M*0UA1 5.0 5/8 16 1/2 12.7
DME22M*0*A1 7.5 3/4 19 5/8 16.0
DME27M*0*A1 7.5 3/4 19 5/8 16.0
Table 2-6 Vertical Distance between the Indoor and the Outdoor Units
Relative Position Distance
Outdoor unit installed higher than indoor unit Maximum: 20 m
Outdoor unit installed lower than indoor unit Maximum: 5 m

Table of Contents

Related product manuals