EasyManua.ls Logo

Vertiv Liebert MCV330 - DPN005138, Page 2

Vertiv Liebert MCV330
140 pages
Print Icon
To Next Page IconTo Next Page
To Next Page IconTo Next Page
To Previous Page IconTo Previous Page
To Previous Page IconTo Previous Page
Loading...
REV : 3
REV DATE : 06/17/2021
DPN005138
Page :2 /2
Form No.: DPN001040_REV4
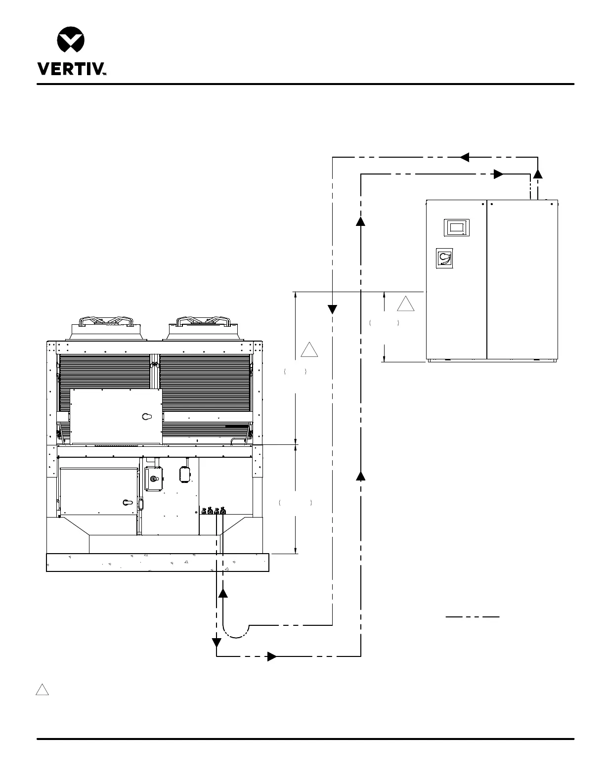
AIR COOLED PIPING SCHEMATIC
LIEBERT® XDM
Liebert® MCV Condenser
Unit
Liebert® EconoPhase
Unit
Field Piping
Liquid
Return
Liquid
Return
Liquid
Return
Hot Gas
Discharge
Hot Gas Discharge
Hot Gas
Discharge
CIRCUIT 1
CIRCUIT 2
Liebert® XDM
XDM200
2
Notes:
1. Single refrigerant circuit shown for clarity, for XDM400 units refrigerant connections are typical.
2. The bottom of the condenser coil cannot be more than 15' (4.6m) below the elevation of the EEVs inside the indoor unit.
3. Unit must be trapped at bottom of riser with any rise over 5 feet (1.5m) high. If rise exceeds 25 feet (7.5m), then a trap is required in 20 foot (6.1m) increments or evenly divided.
4. Pitch horizontal hot gas piping at a minimum of ½ inch per 10 feet (42mm per 10m) so that gravity will aid in moving oil in the direction of the refrigeration flow.
5. All indoor and outdoor field refrigerant piping must be insulated, ½ inch minimum. All outdoor insulation must be UV and ozone resistant.
6. Consult factory for any exceptions to the above guidelines.
2
Hot Gas
Discharge
54 7/8"
1393mm
Ref.
33 1/16"
840mm
Internal EEV
Height
15'
4.6m
Maximum Vertical
Rise
LIEBERT® MCV WITHOUT RECEIVER MOUNTED BELOW LIEBERT® XDM

Table of Contents

Related product manuals