EasyManua.ls Logo

Vertiv Liebert MCV330 - DPN005207

Vertiv Liebert MCV330
140 pages
Print Icon
To Next Page IconTo Next Page
To Next Page IconTo Next Page
To Previous Page IconTo Previous Page
To Previous Page IconTo Previous Page
Loading...
REV : 3
REV DATE : 5/22
DPN005207
Page :1 /2
Form No.: DPN001040_REV4
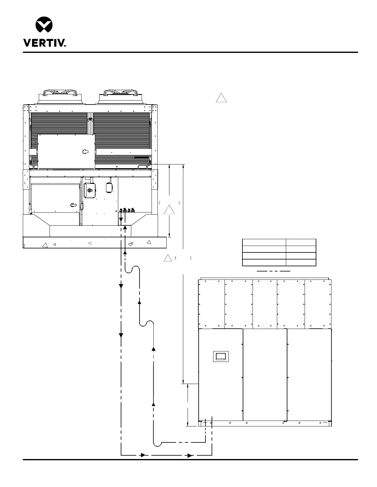
AIR COOLED PIPING SCHEMATIC
LIEBERT
®
DSE
CIRCUIT 1
CIRCUIT 2
Field Piping
Maximum Vertical
Rise
Notes:
1. The bottom of the condenser coil must be no greater
than 60 ft (18.3m) higher than the elevation of the EEV
inside the indoor unit.
2. Unit must be trapped at bottom of riser with any rise
over 5 feet (1.5m) high. If rise exceeds 25 feet (7.5m),
then a trap is required in 20 foot (6.1m) increments or
evenly divided. DA265 with horizontal discharge has
internally installed traps on the hot gas discharge line.
3. Pitch horizontal hot gas piping at a minimum of
½ inch per 10 feet (42mm per 10m) so that gravity will
aid in moving oil in the direction of the refrigeration
flow.
4.
Unit piping entrance varies by unit and may be through
the top of the unit.
5. All indoor field refrigerant piping must be insulated, 1/2"
minimum thickness. All outdoor field refrigeration piping
does not need to be insulated. The installing contractor is
responsible for the insulating, securing, protecting and the
proper installation of all field refrigerant piping, observing
the details outlined by the Engineer of Record.
6. Consult factory for any exceptions to the above
guidelines.
7. DA265 with horizontal discharge should be piped out
the top of unit.
1
Liquid
Return
Hot Gas
Discharge
Hot Gas
Discharge
Hot Gas
Discharge
Liquid
Return
Liquid
Return
Liquid
Return
1
Internal EEV Height H inch ( mm)
DA125-DA165 43 (1092)
DA250 56 (1422)
DA265 56 (1422)
60ft
18.3m
H
54 7/8"
1393mm
Liebert
®
MCV WITHOUT RECEIVERS MOUNTED ABOVE DA125-265
Liebert
®
MCV Condenser
Unit
Liebert
®
EconoPhase
Unit

Table of Contents

Related product manuals