EasyManua.ls Logo

Vertiv Liebert MCV330 - DPN003965

Vertiv Liebert MCV330
140 pages
Print Icon
To Next Page IconTo Next Page
To Next Page IconTo Next Page
To Previous Page IconTo Previous Page
To Previous Page IconTo Previous Page
Loading...
REV : 9
REV DATE : 5/22
DPN003965
Page :1 /2
Form No.: DPN001040_REV4
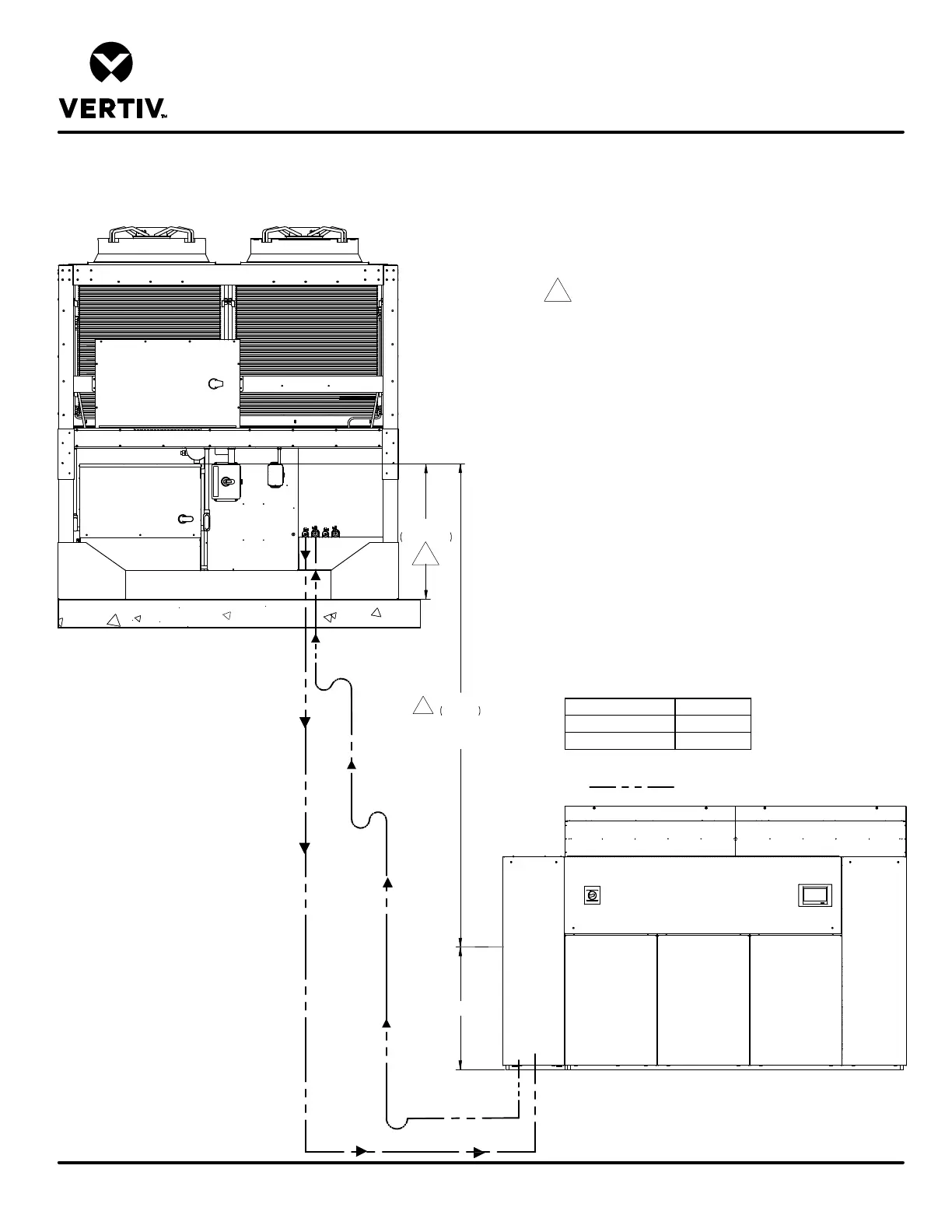
AIR COOLED PIPING SCHEMATIC
LIEBERT
®
DSE
CIRCUIT 1
CIRCUIT 2
44 1/2inch
1130mm
Field Piping
Maximum Vertical
Rise
Notes:
1. The outlet of the receiver must be higher than the
elevation of the EEV inside the indoor unit. T
he vertical
height must not be greater than 60 ft (18.3 m).
2. Unit must be trapped at bottom of riser with any rise
over 5 feet (1.5m) high. If rise exceeds 25 feet (7.5m),
then a trap is required in 20 foot (6.1m) increments or
evenly divided. DA250 with horizontal discharge has
internally installed traps on the hot gas discharge line.
3. Pitch horizontal hot gas piping at a minimum of
½ inch per 10 feet (42mm per 10m) so that gravity will
aid in moving oil in the direction of the refrigeration
flow.
4.
Unit piping entrance varies by unit and may be through
the top of the unit.
5. All indoor field refrigerant piping must be insulated,
1/2" minimum thickness. All outdoor field refrigerant
piping does not need to be insulated. The installing
contractor is responsible for the insulating, securing,
protecting and the proper installation of all field
refrigerant piping, observing the details outlined by the
Engineer of Record
.
6. Consult factory for any exceptions to the above
guidelines.
1
Liquid
Return
Hot Gas
Discharge
Hot Gas
Discharge
Hot Gas
Discharge
Liquid
Return
Liquid
Return
Liquid
Return
1
Internal EEV Height H inch ( mm)
DA125-DA165 43 (1092)
DA250 56 (1422)
60ft
18.3m
H
Notes:
DA250 with horizontal discharge should be piped out
the top of unit.
Liebert
®
MCV Condenser
Unit
Liebert
®
EconoPhase
Unit
Liebert
®
DSE
LIEBERT® MCV WITH RECEIVERS MOUNTED ABOVE DA125-250

Table of Contents

Related product manuals